查看完整案例

收藏

下载
为“大堂咖啡吧”注入新的篇章
Introducing a Fresh Narrative to a Lobby Cafe
由香港丰富的咖啡文化孕育而成的品牌 Nodi,在上海繁忙的静安嘉里中心呈现了其最新创意。Nodi 这个名字源自拉丁语:“结”,象征着人与人、地点与地点之间的连接,以及对咖啡的热情。
在上海繁华的静安区中心,Nodi,这个源自香港丰富咖啡文化的品牌,揭开了它的最新创作。Nodi,其名字源于拉丁语中的“结”,体现了人与人、地点与地点之间的联系,以及对咖啡的热情。
这个年轻的精品咖啡品牌通过享用咖啡的简单行为,转化为促进人际互动和创造力的渠道,为自己在市场上创造了一席之地。
这个年轻的手工咖啡品牌通过将喝咖啡的简单行为转化为促进人际互动和创造力的渠道,为自己在市场上创造了一个独特的空间。
▼项目概览,project overview©Wen Studio
随着它在大中华区的首次亮相,Nodi 的首家店铺坐落在高端的静安嘉里中心办公楼内,这里常有时尚编辑、银行家和各界专业人士光顾。在 Blue Bottle、%Arabica、Fuel 和 Starbucks Reserve 等巨头的包围下,Nodi 为咖啡体验引入了一种全新的见解。
As it makes its debut in the greater China region with its inaugural shop nestled within the iconic Jing’an Kerry Centre—just steps away from Vogue China’s headquarter. Surrounded by giants like Blue Bottle, %Arabica, Fuel, and Starbucks Reserve, Nodi introduces a fresh narrative to the coffee experience.
▼位于办公大堂,located in the lobby of the office building
Nodi 店铺占据嘉里中心办公楼 12 米高的大堂一角,并精心划分出三个区域:咖啡吧台、室内座位区和一个向南的室外庭院。这个户外座位区远离了繁忙的街道,也带领人们通往嘉里中心的商场入口。
Nodi’s new venue occupies a grand 12-meter high lobby space in the Kerry Centre’s office tower, and is made up of three meticulously designed zones: the coffee bar, indoor seating, and a recessed south-facing outdoor patio sheltered from the bustling street while leading into Kerry Centre’s mall entrance.
▼室内座位区,indoor seating
反映 Nodi 品牌价值观——灵感赋予、多样性、活力表达和成熟的规划,Office AIO 以一个亭式结构的方式,在开敞的大堂里体现了有趣且充满细节的呈现。
Reflecting Nodi’s core values of inspiration, variety, vitality and thoughtful curation, Office AIO has devised a striking pavilion-like structure with a permeable ceiling to command presence in the expansive lobby.
▼咖啡吧台, the coffee bar
实现高效与品牌信仰的完美结合
Ensuring Efficiency and Tribute to Brand Beliefs
The coffee bar is further divided into two sections, the front and back of the house, to ensure an elegant and immaculate coffee-making area while achieving efficient operation. Between these two sections, the team drew inspiration from traditional Chinese screens and created a partition that provides privacy while maintaining transparency. A grid-like timber partition, at a glance, portrays a motif formed by the brand’s letter "n", adding richness and subtlety. Working alongside the motif partition, the backdrop within the back of the house acts as a light box, dimly lit in warm hues, animating glimpses of the busy silhouettes of baristas at work.
▼咖啡吧台前场,
the coffee barfront©Wen Studio
▼字母“n”所构成的图案, motif formed by the brand’s letter “n”©Wen Studio
考虑到大堂咖啡吧日常的接待量,前吧台采用了经典的 L 形配置,同时期望为它注入独特的风格和体验。吧台内的每个功能都以独立的模块表现,每个模块有着自己的形状与细节,丰富了传统的单一造型吧台,展现出活力和趣味,强化了品牌的俏皮而精致的理念。
Considering the daily capacity of a lobby coffee bar, the front bar is arranged in a tried and true L shape configuration, optimised to accommodate flows from multiple directions.However, the design challenges to be seen and experienced with its own flair. Each function within the bar is expressed as individual blocks, each with its own form and detailing, enriching the traditionally singular bar and portrays a sense of vitality and quirkiness, reinforcing the brand’s playful yet sophisticated ethos.
▼展现出活力和趣味的吧台造型, bar portrays a sense of vitality and quirkiness ©Wen Studio
定制单品塑造场景一体化
Bespoke Pieces for an Integrated Identity
座位安排提供了多样化的选择,包括 HAY 品牌的座椅和由 Office AIO 为此项目定制的桌椅,可容纳不同形式的聚集。通过纹理丰富的绿色大理石 (Persian Green Marble) 和深绿色木饰面与吧台区的材料组合产生互动,尽管地板的材料不容许更改,也达到了统一品牌空间感的目的。
Seating arrangements offer a diverse mix, including pieces from HAY and custom-designed tables and benches, accommodating groups of varying sizes. This area seamlessly connects with the bar through a shared palette of green marble and dark timber veneer, unifying the space despite the immutable floor material.
▼绿色大理石桌,green marble desk©Office AIO
一个特别有创意的动作是商场入口处的超大尺寸结绳装置,兼作室外座位,以俏皮的方式回应 Nodi 的品牌含义。由 Office AIO 精心打造,使用真实的绳子捕捉结的自然形态,然后按照符合人体工学的尺寸进行放大调整。携手比利时品牌 Sixinch – 以其独特弹力涂层技术的泡绵产品而知名 – 打造这一套室外座椅。这个结绳装置不仅在视觉上引人注目,而且耐用兼多功能,完美封装了 Nodi 的根源和其促进交流的承诺。
A particularly inventive touch is the super-sized knotted rope installation at the mall’s entrance, doubling as outdoor seating. This playful nod to Nodi’s namesake was meticulously prototyped by Office AIO, using real ropes to capture the essence of a knot’s natural form before scaling it to ergonomic dimensions. In collaboration with the Belgian brand Sixinch, known for their foam coating technology, the knot was crafted to be not only visually striking but also durable and versatile, encapsulating Nodi’s roots and its commitment to fostering connections.
▼室外座位,outdoor seating©Office AIO
▼室外座位细部,outdoor seating detail©Office AIO
随着 Nodi 在上海扎根,它带着成为不仅仅是一个咖啡品牌的雄心壮志。它是灵感的避风港、创意的熔炉,也是 Nodi 通过咖啡这一普遍语言连接人们旅程的新篇章。
As Nodi plants its flag in Shanghai, it does so with the ambition of being more than just a coffee shop. It is a haven for inspiration, a crucible for creativity, and a new chapter in Nodi’s journey of connecting people through the universal language of coffee.
▼室外夜景,night view©Office AIO
▼大理石细部,marble detail©Office AIO
▼家具细部, furniture detail©Wen Studio
▼字母“n”所构成的图案细部,motif formed by the brand’s letter “n” ©Wen Studio
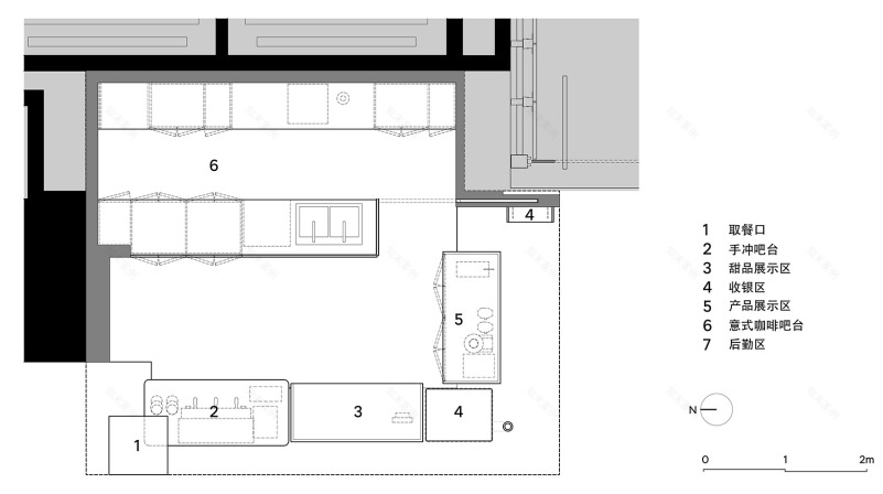
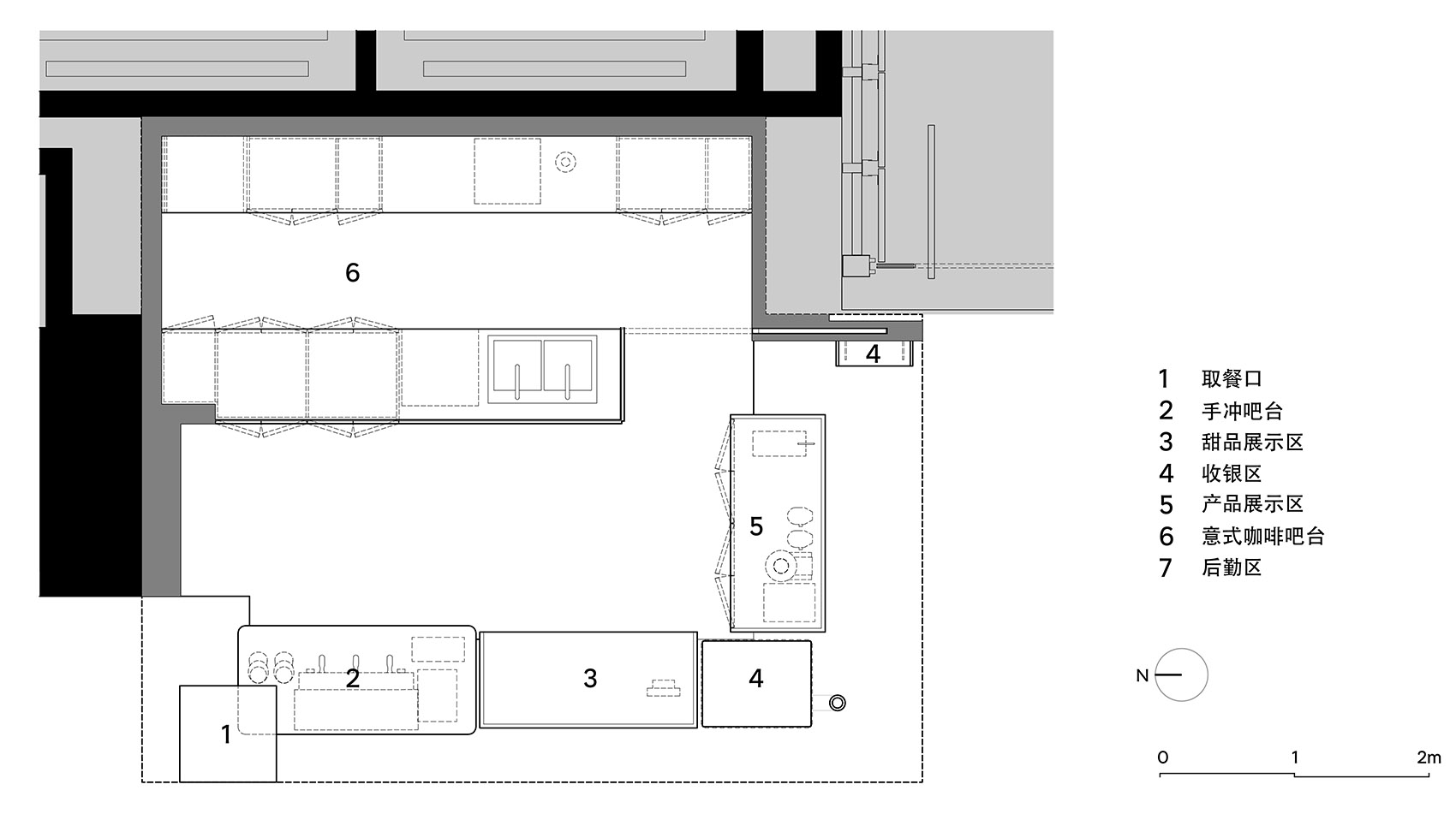
▼平面图,plan©Office AIO
客户: Nodi
项目地址: 中国上海
面积: 121㎡
设计任务: 室内设计 、产品设计
主创设计师: 关穗棋
设计师: 杨霄、赵雪、孙运萱、解估渔
项目委任: 2023
项目完成: 2024
摄影: Wen Studio
灯光设计: Office AIO & 乔燕莎
工程公司: 北京亿达和信装饰工程有限公司
Client: Nodi Location: Shanghai, China Area: 121㎡ Commission: Interior Design, Object Design Principal: Tim Kwan Team: Xiao YANG、Xue ZHAO、Isabelle SUN、Steven Tse Appointment: 2023 Completion: 2024 Photos: Wen Studio Lighting Design: Office AIO & Sarah QIAO Construction: Beijing Million Partner Construction Company Limited
客服
消息
收藏
下载
最近


























