查看完整案例

收藏

下载
项目名称:昆明望月精品酒店
位置:云南 昆明
设计公司:智星空间设计机构
设计师:龙 武
项目位于昆明东西寺塔步行街北廊1号院,原本是一座有两个小院的单进四合院。此次设计的目的是将这处传统小院,转变为昆明内城一处可以静思、冥想、享受一切安然的宁静与美好的精品酒店。院子是“四合院”这种建筑类型生活乐趣的核心所在。而我们就是在维持已有房屋结构不变的条件下,通过局部关系的微调改变院落空间的气质并满足多样功能的使用,让传统小院能够与时俱进的融入到当代城市生活之中。一花一叶,一器一皿,一枝一语。岁月悠然,以花为引,以心相结,闲静无昧。时光的流逝在恬静的空间氛围中涟漪游叙。酒店公区每个景致都是精心设计,陶瓷、玉器、盆景、山石韵语出浅许的书香气息!客房布局更注重空间的延伸、渗透与分隔。每间客房均设计独立洗手间与步入式衣帽间,卧室睡眠区、书写工作区与会客区按照功能关系划分,配以新中式家具、黑漆屏风、白色肌理涂料、亚麻等元素,丰富空间层次感,营造客房空间的灵动格局。
昆明望月精品酒店室内实景图
昆明望月精品酒店室内实景图
昆明望月精品酒店室内实景图
昆明望月精品酒店室内实景图
昆明望月精品酒店室内实景图
昆明望月精品酒店室内实景图
昆明望月精品酒店室内实景图
昆明望月精品酒店室内实景图
昆明望月精品酒店室内实景图
昆明望月精品酒店外部实景图
昆明望月精品酒店外部实景图
昆明望月精品酒店外部实景图
昆明望月精品酒店外部实景图
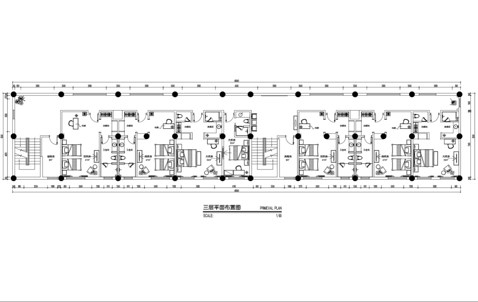
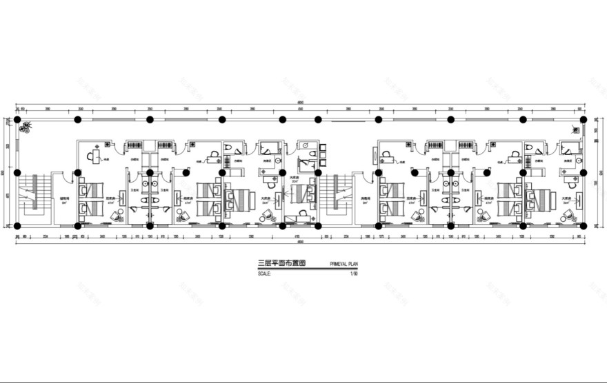
昆明望月精品酒店平面图
昆明望月精品酒店平面图
昆明望月精品酒店平面图
客服
消息
收藏
下载
最近



















