查看完整案例

收藏

下载
©DAVID HIEPLER、St ep han Falk、KSP ENGEL 在不同的建筑语境下,材料除其本身的色彩、质感等基础属性外,同时也被赋予了相应的情感氛围。作为当代建筑中使用最为频繁的材料之一,混凝土的表达不仅落脚于承重的结构体系,隐藏在粗粝表面中的情感也是塑造氛围的一环,于空间而言有着不可忽视的重要作用。
01 Gedenkstätte Bergen-Belsen Ksp engel 德国·洛海德
©DAVID HIEPLER、Stephan Falk、KSP ENGEL
1945 年 3 月,撰写《安妮日记》的犹太作家 Anne Frank 在 Bergen-Belsen 集中营内去世,这片埋葬了 50000 多个灵魂和残酷历史的土地成为和平年代的纪念丰碑。建筑事务所 Ksp engel 通过与纪念馆的密切合作,使历史成为了可观可感的空间。
©DAVID HIEPLER、Stephan Falk、KSP ENGEL
高大的松树和桦树环绕着这座完全由混凝土构建的展馆,绵延约 200m 长的体块以一条封闭两侧视野的狭长小径为起点,提供了两种不同的参观方向。其中一条道路通向二战时期的露营地,室内的序列则展示了战俘营和集中营的历史视图,借助纯粹且厚重的混凝土表达当代人民的反思与纪念之意。
©DAVID HIEPLER,Stephan Falk,KSP ENGEL
02
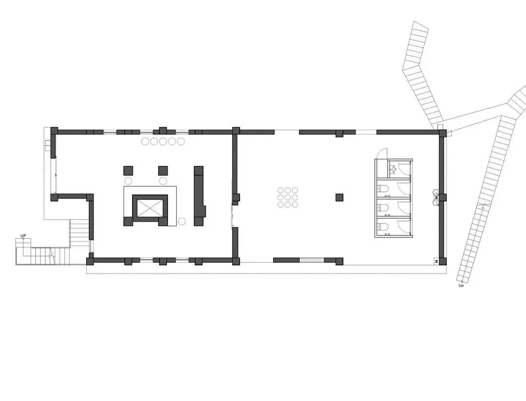
House C
Celoria Architects
瑞士·门德里西奥
©Celoria Architects
位于门德里西奥的 House C 由 Celoria Architects 的创始人 Aldo Celoria 为其家人设计,这座自宅风格鲜明,采用混凝土建造,外观设计灵感来源于场地过去的传统地窖空间。建筑师将以前在此聚餐的家庭记忆融入住宅设计,以社交性的厨房和餐厅为中心,确定了住宅的结构序列与氛围。
©Celoria Architects
呈方形的住宅平面内嵌入了四个筒状混凝土结构,这些容纳了基础设施的小空间延续了外结构中的曲面墙体,同时可取代承重立柱,使剩余的活动空间得以通过落地窗饱览四周的风景。此外,Aldo Celoria 还将卧室等私密空间转移至深入土坡的半地下层,使空间布局适应于场地本身的地形特质。
©Celoria Architects
左右滑动查看更多图片
03
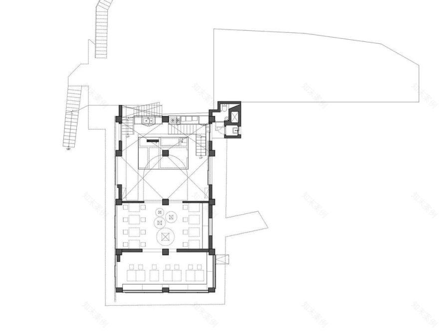
PRISM Inn Ogu Hotel
Hiroyuki Ito Architects
日本·东京
©Masao Nishikawa
PRISM Inn Ogu Hotel 是一家位于东京市中心附近的长期住宿酒店,旨在为来自其他国家的海外游客提供可容纳团体入住的平价空间。考虑到大楼的高度及抗震问题,内部空间的梁柱系统相较低层建筑而言占据了更大的面积。基于此,建筑师以结构框架作为划分空间的参考,并利用交错布置的手法创造了流畅的动态序列。
©Masao Nishikawa 建筑的整体结构奠定了内部划分的基础,与此同时,立面的开窗设计从虚实变化的角度中和了混凝土的冰冷感,通过连续的玻璃幕墙,使光线从三个不同的方向进入室内,充分满足人居环境的采光与通风需求。
©Masao Nishikawa
左右滑动查看更多图片
04
The Mineless Heritage Restoration Project
Divooe Zein Architects
中国·台湾
©Justin Kao
台湾建筑事务所 Divooe Zein Architects 以融入原生环境的理念为出发点,将这组位于台北郊外的煤矿厂废弃建筑改造成被群山和密林环绕的度假胜地。在保留其工业质感的基础上,为游客提供了充满活力且类型丰富的活动空间。
©Justin Kao
茶室、剧场、冥想及展览空间等不同的活动场所分布在三个组合的体块内。建筑本身的混凝土与砖砌结构成为了建筑师的灵感来源。裸露的金属构件、固定装置、家具等新增元素以中性的粗糙饰面为背景,在纹理质感与色彩上呼应了建筑的原有风格。
©Justin Kao
左右滑动查看更多图片
编辑:Ne
iWai
撰文:YouChuan
编排:NingBai
客服
消息
收藏
下载
最近










































































