查看完整案例

收藏

下载
| 关于 |
刘道华建筑设计事务所
LDH DESIGN 刘道华建筑设计事务所
,生活美学空间建构者;拥有国际化视野和对空间价值特殊视角,以全球化的观念结合体验来创造新的范例。
空间作品遍及全球,近年来在国内、国际设计领域备受专注,先后斩获数项重量级奖项及荣誉。全球范围内上百家媒体对 LDHDESIGN 的设计作品进行广泛报道。LDH DESIGN 以“做有价值的设计”理念,将空间设计完整落地。整合美学、商业、文化、设计与空间之间的逻辑系统,擅长运用建筑空间思维,推动“解构形式”概念化的实践。创造出美学、实用、经济共生的作品。
01
| 北京宴 - 2700㎡ |
曲水流觞,品饮人间盛景
[北京宴]
选址于此,立于历史与文化的交汇之处,以运河之水颂千年,飨盛景。
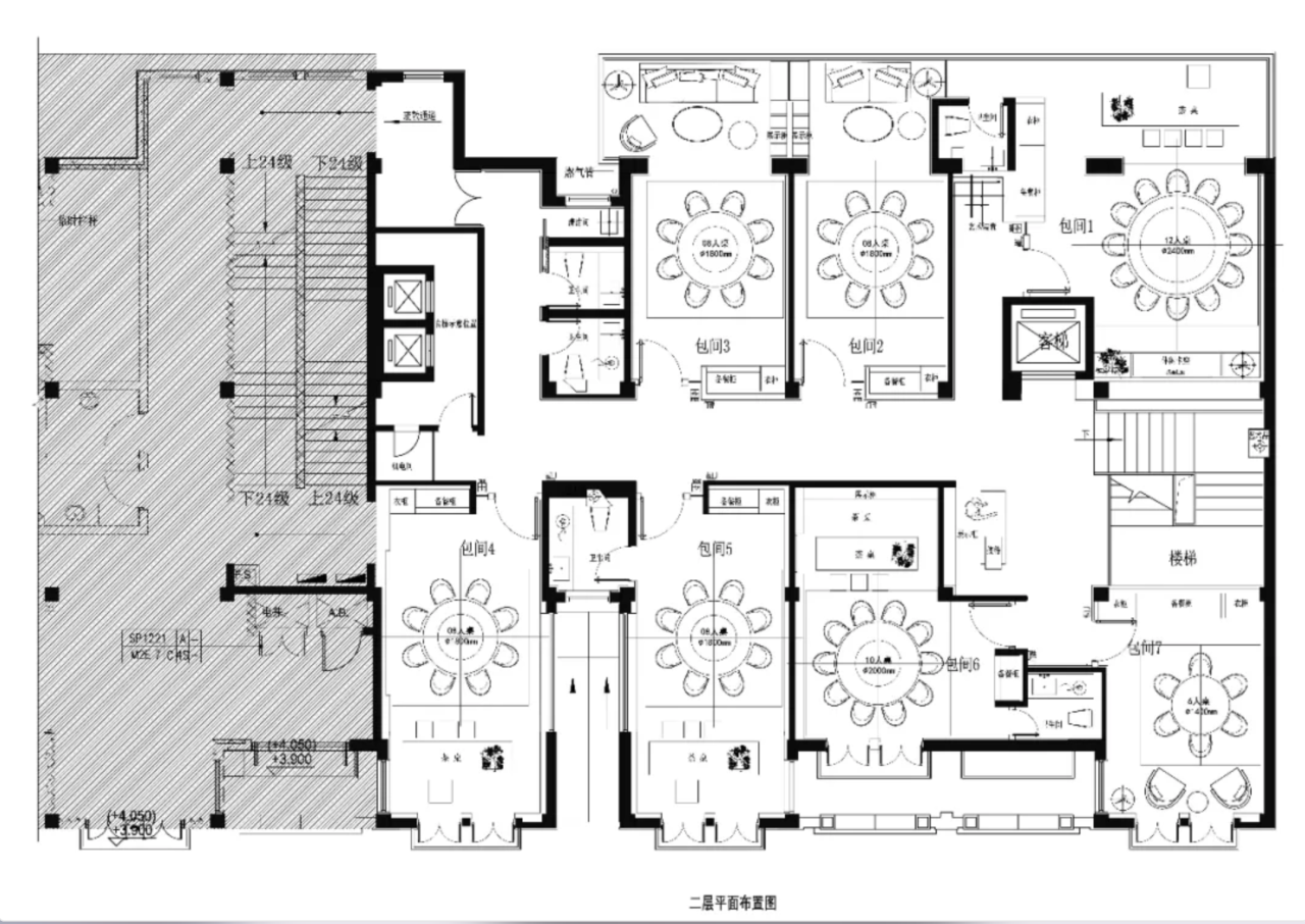
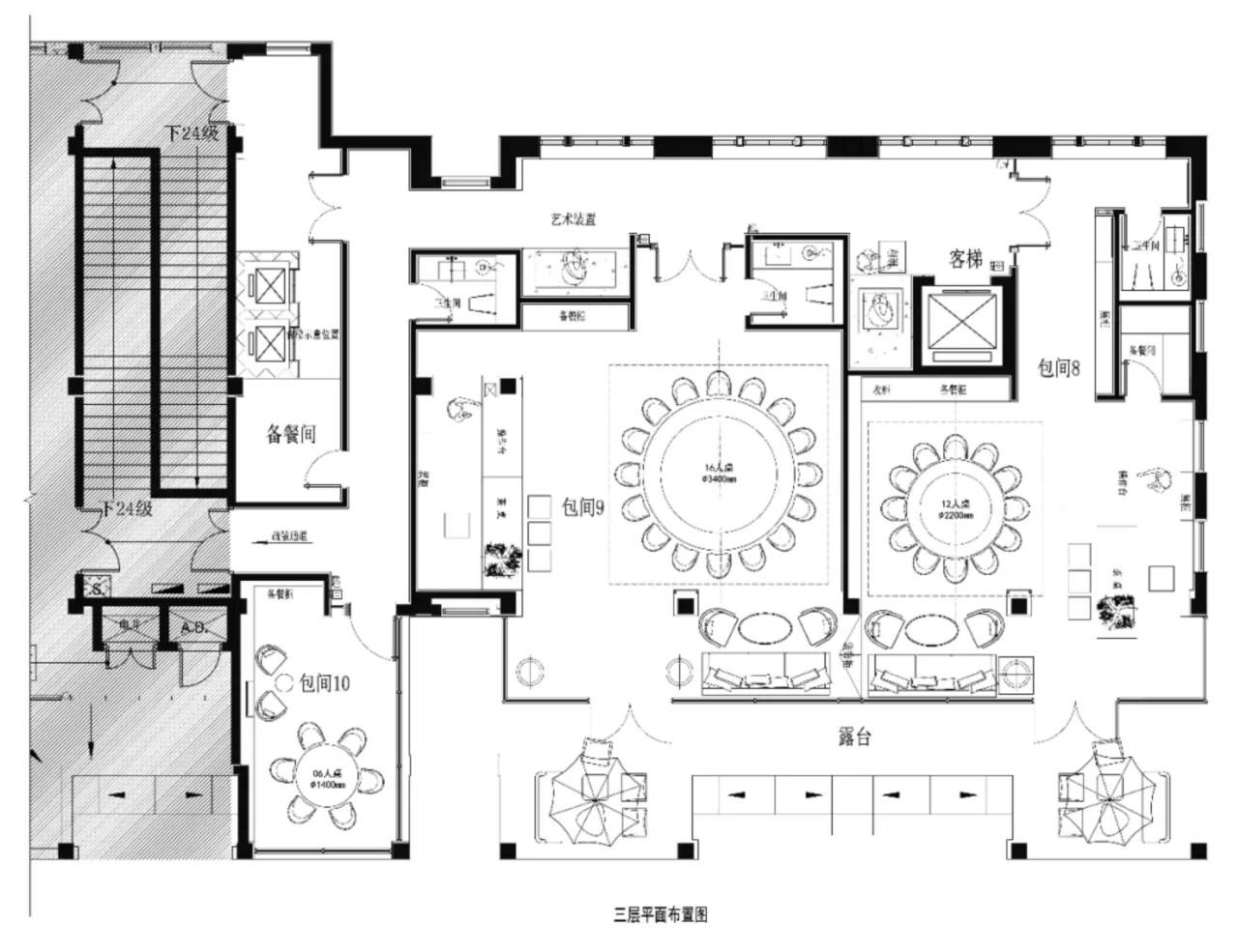
接待厅
进入室内,前台空间的青灰色木纹砖倒映出袅袅竹影,婷立而映。整体一层布局主要由各方包间构成,以环廊形式分布,其选取自乾隆皇帝悠游运河的沿途盛景。
将自然之美、人文之意和艺术情境融汇于空间大观
项目摄影:郑焰
02
| 武汉丹青宴 |
书画入席,丹青行
仿古坡屋顶尽显古韵,与好友端坐于台前,透过窗明几净的大面积玻璃,恍如隔世,古今来往,就在这一扇玻璃间,往外是今时的武汉,内里是盛满历史的如画江夏。
一抹丹砂,居于前,形似裙裾,在青灰色的画布中缓缓游行,亦步亦趋,带人入画丹青。赋予动感的几何门脸造型,搭配朱砂的浓郁色彩,是品牌标志性的整体呈现。入口的巧思妙想,长而幽深的走廊,缓缓透露的天光,让人犹入画廊,揭开画匣的瞬间,已入丹青江夏。
从一楼接待处狭长的走廊起笔勾连多处轴线,划分区域,散台,酒吧和茶台,以明晰的开放方式梳理功能区域。空间中,多以矩形或正方的堆叠形式充盈空间,天花的格子造型,立面的矩形延伸,地面的马赛克式样,每一个正方都框出了一隅江夏的历史画样。
散台处的别致造型引导出空间中的点睛留白,大面积的落地窗让天光入画,仿佛那一双打开画册的大手,拂开尘雾,得见往日流光。
三层的布局呈现环绕式,采取了中式园林当中的复廊形式,以长廊连接中心包间区域和露台,移步易景,共联江诗缱绻,画幅绵长。
LDH DESIGN
以丹青的色彩符号解构,延展出对古今武汉的文化存续流传,以当代的“体验感”设计语言传达出本土文化内涵,重写品牌创新和挖掘品牌活力。
在传统与革新中寻求新时代下的突破点,用包容并蓄的结构语言和沉稳典雅的色彩构成打造本土语境下的场景活力与空间魅力;人与人,空间与场景,味蕾与心境的变幻流动中迸发出对新生活和新记忆的描摹想象。
项日摄影|賀川
将中国传统元素和现代时尚融合的国潮,已成为近年的审美风向
在CCTV13采访中,提到了国潮对设计发展的重要性,他说,设计要连接自然,连接周围的环境,国潮肯定是未来很重要的一个环节。
刘道华老师
在项目中也设计了多个国潮相关的餐饮项目,高端餐饮,不是简单的形式和体验,最重要的是文化底蕴的提升。这也是设计的意义所在。
客服
消息
收藏
下载
最近










































































