查看完整案例


收藏

下载

翻译
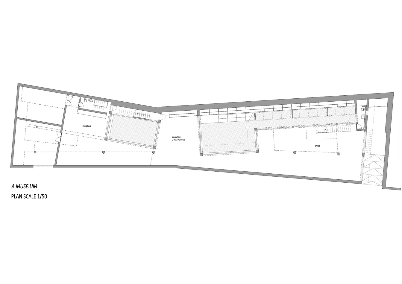
A.MUSE.UM has been conceived and designed by architect/artist Nadim Karam as his atelier, a space for him to reflect, create and experiment. It is located in the village of Daroun, in the mountains of Lebanon. There on the hillsideabove the atelier is Karam’s own family residence, a traditional Lebanese stone house restored by Hapsitus with minimal acupunctural interventions and landscape works.
A.MUSE.UM was initiated several years ago and has undergone a number of alterations until it reached its ultimate concept in reverence of the traditional Lebanese stone house above and the landscape heritage of the terracing system applied within the village. The space has been immersed in the ground in the way of a Rhizome and integrates the landscape into its roof. It has different entry and exit points by way of both ramps and staircases which provokes non-linear pathways, and triggers imagined constructions.
Two separate courtyards aerate and bring light to the project, generating diversity in the spaces and internal vistas. The design articulation is restrained and employs mainly fair-faced concrete, corten steel and the limestone commonly used for terracing in the village. A.MUSE.UM desires to be an innovative alternative to high environmental impact implementations. A.MUSE.UM re-interprets traditional landscape while reverting to an inner monumentality and a new contemporaneity.
客服
消息
收藏
下载
最近






















