查看完整案例


收藏

下载

翻译
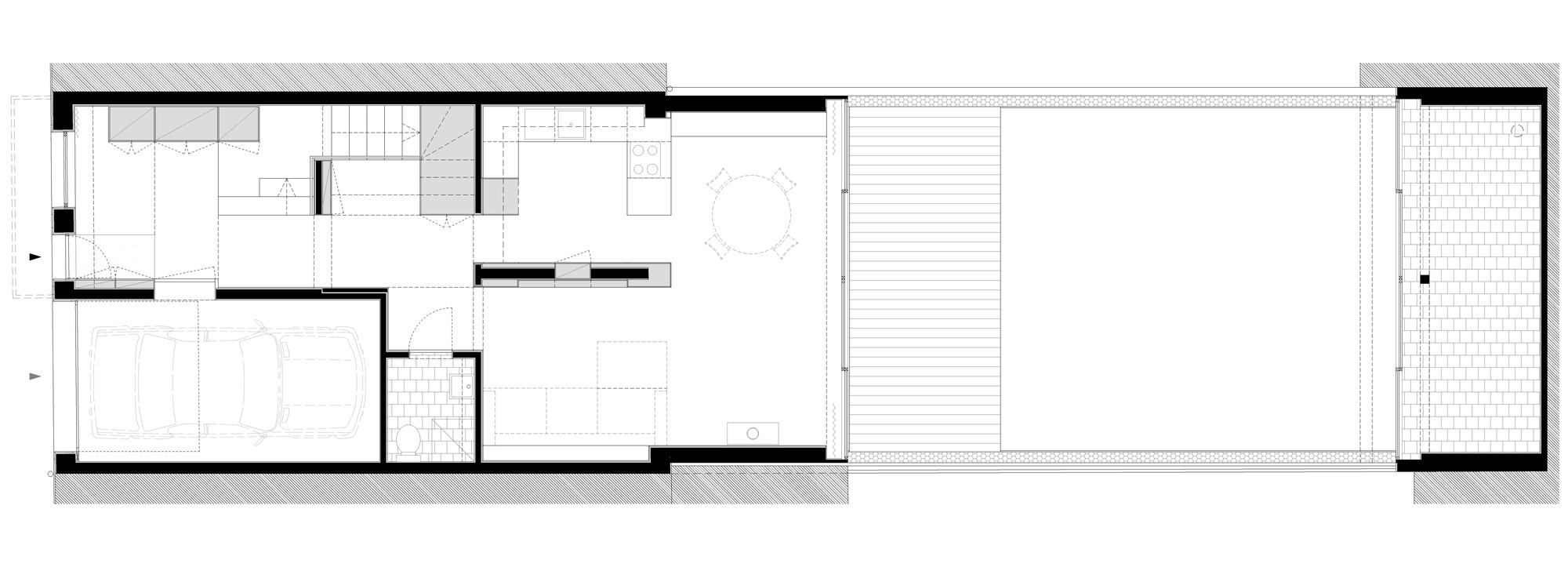
This project consisted in the remodeling and expansion of a townhouse, opening some interior spaces, and bringing more natural light to the interior of the house.
The entire lower floor has been transformed into a continuous space, although with perfectly delimited and hierarchical functions, thus allowing a greater sense of space and brightness.
A new wooden staircase, lit by a generous lantern, connects the two floors and becomes the binding element.
客服
消息
收藏
下载
最近

































