查看完整案例

收藏

下载
项目名称:上海佬太公海鸭料理餐厅
位置:上海
设计公司:香港伟麟室内设计有限公司
坐落于上海浦江镇一个综合商业体内的这家餐厅,以食物自身独特的魅力引领着食客体验极致的感受,是一家以海鸭烹饪为主打的风味餐厅。它有一个形象且朴实的店名“佬太公”。走进餐厅,首先映入眼帘的是木质的结构造型以及鳞次栉比的鱼鳞图案所带出的水岸边物舍瓦宇之感。接待区的空间铺陈顿时给人一种从繁杂世俗进入炊烟袅袅、水岸人家之感。于是带出了我们故事的主题,一个质朴的生态空间的场景再现。进入餐厅,中央的吊顶造型犹如一叶扁舟,一排船桨形成的隔断使就餐位在左右两边交杂展开。鱼船造型的吊顶两侧,藤制箩筐的装饰吊顶此起彼伏,犹如微风中的水面,在空间中诉说着宁静与质朴。原木结构以及鱼鳞图案的青砖构成为空间的两大主角,意欲表现水岸人家。暖灰与香槟木色作为主色,在丰富明暗关系的基础上,添加了舒缓的节奏。带着江南的温婉,朴实低调、安静优雅。水纹图案带出的背景色,运用场景处理的手法所产生出的舞台感,把山水环境的感性和意境很好地融入了空间。
如此淡雅的氛围让空间沉静了许多,所营造出的环境让浮动的心沉淀。置身于这样的空间氛围中,所有的味觉都发挥到了极致。一幅美妙的打鱼归家、饭食之味飘香满屋的生活情景,开启了设计师与“佬太公”的空间对话。在这里我们讲述了一个从西方强调的理性与逻辑性的文化美学角度来看待充满感性的中国美学,一个运用现代建筑特征来表达渔舟唱晚、载歌而还的渔家故事。一面是提炼了的元素所赋予空间纯粹的设计感,是一种含蓄的张力。而另一面传达出米粮炊饭放归船的生动画面感。以此创造不同角度、不同方式的就餐体验,透着自然美学。从设计的角度赋予空间的生命力,唤起与众不同的场域力量。在这样的一个空间里,时而盛筳、时而小酌。一路走来的景观已演变成晚霞中最美的衬托,朴实无华且祥和安逸的气质所带来的无限温暖是我们最真切的索求,也是本案表述的内涵。
上海佬太公海鸭料理餐厅室内实景图
上海佬太公海鸭料理餐厅室内实景图
上海佬太公海鸭料理餐厅室内实景图
上海佬太公海鸭料理餐厅室内实景图
上海佬太公海鸭料理餐厅室内实景图
上海佬太公海鸭料理餐厅室内实景图
上海佬太公海鸭料理餐厅室内实景图
上海佬太公海鸭料理餐厅室内实景图
上海佬太公海鸭料理餐厅室内实景图
上海佬太公海鸭料理餐厅室内实景图
上海佬太公海鸭料理餐厅室内实景图
上海佬太公海鸭料理餐厅室内实景图
上海佬太公海鸭料理餐厅室内实景图
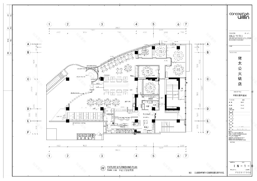
上海佬太公海鸭料理餐厅平面图
客服
消息
收藏
下载
最近

















