查看完整案例

收藏

下载
这栋房子旨在圣塔伦的 Romeira 郊区中塑造一片属于自己的空间。它建构了一个存在主义的、人性化的和具体的居住空间,因为有人居住,所以赋予了空间意义和目的。房屋通过加强视觉上与周边地域的协调性来组织空间,既考虑到城市景观,也考虑到自然景观,同时将自身尽可能设想成一个视觉参照物。▼场地鸟瞰,Aerial view of the site©Ivo Tavares Studio
▼辽阔的景观,Wide landscape©Ivo Tavares Studio
▼顶视图,Topviews©Ivo Tavares Studio
The house wants to model its own place on the outskirts of Romeira, in Santarém. It builds the existential, humanized and concrete place, because it is inhabited, structured with meaning and purpose.
It is organized by enhancing visual alignments over the territory, in an urban and landscape perspective, simultaneously assuming itself as a possible visual reference.
▼远望建筑,Looking the building from distance©Ivo Tavares Studio
建筑概览,Overview of the building©Ivo Tavares Studio
▼建筑特写,Close-up of the building ©Ivo Tavares Studio
▼局部特写 Partial close-up©Ivo Tavares Studio
▼半室外空间,Semi-open spaces©Ivo Tavares Studio
▼优美的景色,Beautiful context©Ivo Tavares Studio
房屋的入口并非直接取自公共道路,而是隐藏起来的。绕过房子所在的小山丘,你会走到一片被完全保留下来的小型橡树林旁。这创造了一个有趣的距离,既为日常使用提供了隐私,又让人们产生接近并探索房子的欲望。在到达入口之前,可以目睹到房屋的全貌。
▼泳池特写,Close-up of the pool©Ivo Tavares Studio
▼舒适的空间,Cozy spaces©Ivo Tavares Studio
▼惬意的氛围,Relaxed atmosphere©Ivo Tavares Studio
▼半室外空间,Semi-open spaces
©Ivo Tavares Studio
▼局部特写,Partial close-up©Ivo Tavares Studio
▼细部,Details©Ivo Tavares Studio
Its access is not direct and immediate from the public road, but hidden. Going around the small hill where the house sits, you go up to the side of a small patch of holm oaks that has been fully preserved. This creates a purposeful distance that provides privacy to everyday use and the obligation to make a journey of approximation. It allows visual apprehension of the building before reaching the entry point.
▼室内,The interior©Ivo Tavares Studio
▼客厅,Living room©Ivo Tavares Studio
▼舒适的氛围,Comfortable atmosphere©Ivo Tavares Studio
▼书房,Study room©Ivo Tavares Studio
▼书架,Shelf©Ivo Tavares Studio
房屋由包含在体块中的多个空间组成,每个空间都有自己的标识和功能程序,由其不同的拓扑属性定义。设计过程中强调了整体的分解概念,将一系列自主或相互连接的空间进行整合,同时融入了当代的美学和结构思考。通过将建筑物总质量分解成不同的小体块,在视觉上似乎减小了体量。
▼餐厅,Dining room©Ivo Tavares Studio
▼走廊,Corridor©Ivo Tavares Studio
▼厨房,Kitchen©Ivo Tavares Studio
The aggregation of multiple spaces contained in volumes is designed. Each with its own identity and programmatic function, defined by its different topological attributes. The idea of fragmentation of the whole is worked on in a sum of autonomous or interconnected spaces, integrating contemporary aesthetic and constructive aspects. The volume obtained seems to be diminished apparently, in the dematerialization of the total mass of the building in different elements of smaller volume.
▼卫生间,Toilet©Ivo Tavares Studio
▼盥洗池,
Sink©Ivo Tavares Studio
▼卫生间,Toilet©Ivo Tavares Studio
▼走廊,Corridor©Ivo Tavares Studio
设计师考虑了一些受葡萄牙乡村景观启发的规范化主题,特别是参考了被称为“montes”的建筑物,这些建筑物通常建于景观的主导位置,由一组非固定位置的体块组成。
▼傍晚,At dusk©Ivo Tavares Studio
▼局部特写,Partial close-up©Ivo Tavares Studio
▼入口,Entrance
©Ivo Tavares Studio
▼室内,Interior©Ivo Tavares Studio
▼走廊,Corridor©Ivo Tavares Studio
The heritage of some formal themes inspired by the Portuguese rural landscape is valued, referring particularly to buildings known as “montes”, erected in dominant places over the landscape and formed by sets of informally positioned volumes.
▼模型,Models©dp arquitectos
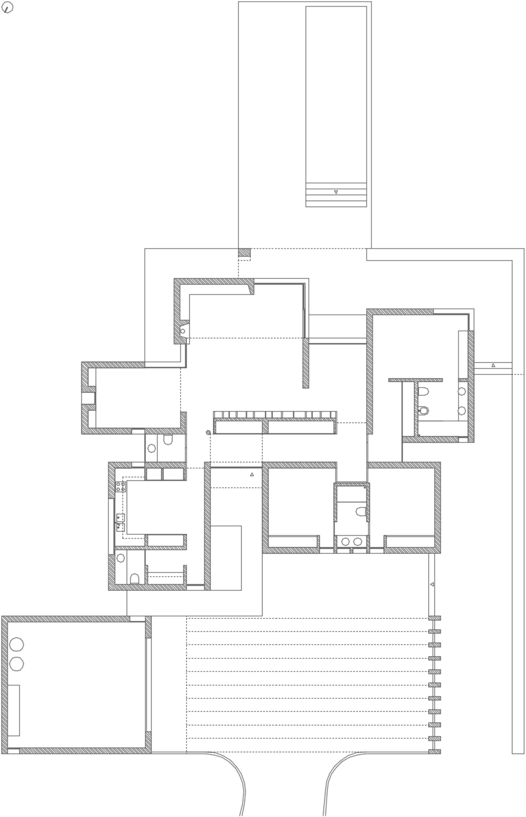
▼平面图,Plan©dp arquitectos
▼东立面,East elevation©dp arquitectos
▼北立面,North elevation©dp arquitectos
▼西立面,West elevation©dp arquitectos
▼南立面,South elevation©dp arquitectos
▼剖面图,Section ©dp arquitectos
Project name: CASA NA ROMEIRA. HOUSE IN ROMEIRA
Architecture Office: dp arquitectos
Main Architect: Diamantino Maia Pinho
mail@dparquitectos.pt
Instagram:
Location: Romeira, Santarém – Portugal
Year of conclusion: 2023
Total area: 263 m2
Builder: Construções Saldanha Alves, Lda
Engineering: Pitta Soares & Partners
Architectural photographer: Ivo Tavares Studio
Website:
Facebook:
Instagram:
客服
消息
收藏
下载
最近


















































































