查看完整案例


收藏

下载
KOKAISTUDIOS
Kokaistudios是由意大利建筑师Filippo Gabbiani和Andrea Destefanis于2000年在威尼斯创立的一家获奖的多学科设计公司,在过去的10年里,总部设在上海。
Kokaistudios is an award winning multi-disciplinary design firm founded in 2000 in Venice by Italian architects Filippo Gabbiani - Andrea Destefanis which for the past 10 years has been headquartered in Shanghai.
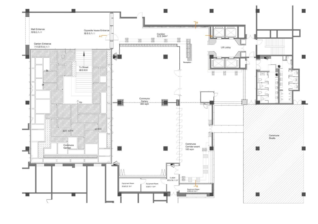
在隈研吾的标志性建筑的基础上,Kokaistudios最近为北京对面的房子重新配置了LG层的活动区域——公社,将传统中国建筑元素与内置的灵活性结合起来。由一个主要空间和连接走廊组成,巧妙隐藏的滑动门意味着较低的一层场地可以以多种方式配置。
Building on Kengo Kuma’s iconic architecture, Kokaistudios’ recently reconfigured events area on LG Floor – Commune – for The Opposite House in Beijing combines elements of traditional Chinese architecture with inbuilt flexibility. Comprising a main space and connecting corridor, cleverly concealed sliding doors mean the lower ground level venue can be configured in multiple ways.
可折叠的门和玻璃隔断,756平方米的面积,包括周围的走廊,可以以多种方式配置各种类型和大小的活动,为这个最负盛名的酒店开辟了新的可能性。
Adaptable thanks to folding doors and glass partition walls, the 756 sqm area, which includes a surrounding corridor, can be configured in multiple ways for events of all types and sizes, opening up new possibilities for this most prestigious of hotels.
作为各种活动的中性背景,一个明显的花园主题贯穿整个空间,与酒店著名的设计遗产以及附近的下沉庭院花园联系在一起。
A neutral backdrop for events of all kinds, a palpable garden motif nonetheless runs throughout the space, drawing connections with the hotel’s celebrated design legacy as well as the sunken courtyard garden in its immediate vicinity.
在北京,Kokaistudios对对面的低层空间进行了大修,形成了完全灵活的多功能活动空间公社。为了保持传统中式四合院住宅的原始设计语言,并从邻近的下沉花园汲取灵感,团队扩展了这些既定的主题,创造了独特的区域。
In Beijing, Kokaistudios’ overhaul of The Opposite House lower ground-level space has resulted in fully flexible multifunctional event space, Commune. In keeping with the property’s original design language of a traditional Chinese courtyard home, and taking inspiration from the adjoining sunken garden, the team extended these established motifs to create distinctive areas throughout.
对面的房子邀请Kokaistudios将底层的餐厅和走廊改造成公社,作为举办活动和画廊的多功能活动空间。为了达到最大的适应性,主要空间可以划分为两个不同的功能房间,通过滑动门连接,允许不同的配置。
The Opposite House invited Kokaistudios to transform a lower ground level restaurant area and corridor into Commune, a multifunctional events space for eventsand gallery alike.For maximum adaptability, the main space can be divided into two distinct function rooms, linked by sliding doors to allow for various configurations.
客服
消息
收藏
下载
最近




















