查看完整案例

收藏

下载
小宅设计
因此
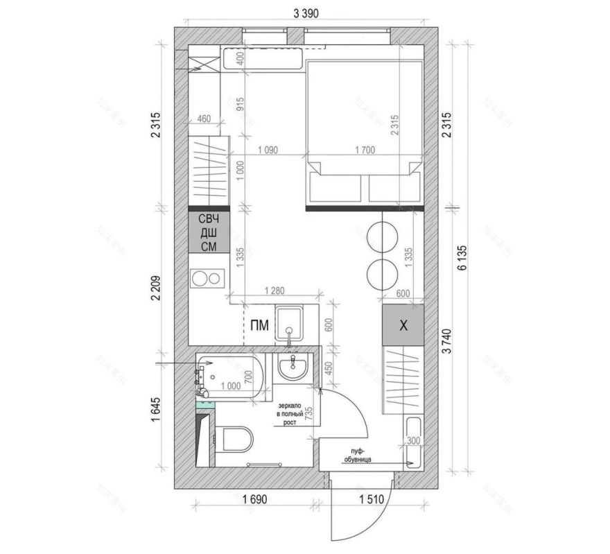
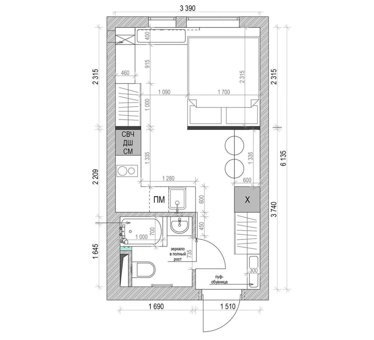
将公寓空间组织如下:
从走廊进入带有吧台的厨房区域;
公寓的公共空间采用玻璃块制成的轻质隔断进行分区,从而分隔卧室区域;
平台上的床变成了窗台上舒适的休息区
在紧凑的浴室中,业主
的重要愿望是放置一个浴缸,至少是最小的一个。
明亮、丰富的色彩运用在室内,与更沉稳的木质纹理相结合,用越来越多的绿色植物“稀释”。
厨房外墙和内置家具结合了浓郁的翠绿和浓郁的深红色。
卧室区和浴室均采用带有花卉图案的壁纸,
天花板采用
赤土色涂料和延续座位窗台区域的木质墙板,
而黑色和金色的细节和装饰,让室内增添了一种特殊的魅力,让它更加“优雅”
空间布局
13535331549
‘星标’
第一时间接收精选内容
近期热文
一个中年女人的83㎡,任性!
22㎡,小夫妻的一居室,美极了!
35㎡装出杂志里的小家,太厉害了!
一个很不错的设计号
↓↓↓
客服
消息
收藏
下载
最近





















