查看完整案例

收藏

下载
业主是主案设计师的一个老朋友,长期在外地工作,偶尔休假回武汉来陪伴家人。似乎8090后的独生子女,为了方便照顾老人与老人同住是现在社会的普遍现象。
从室内设计的角度出发,这个现象背后其实是有一些值得探讨的问题,比如说如何在一套房子里满足两代人的审美需求,更需要兼顾不同年龄段家庭成员的需求和偏好,综合考虑每个人的生活方式、使用习惯以及未来的变化等等。
(客厅实景)
#原始框架图
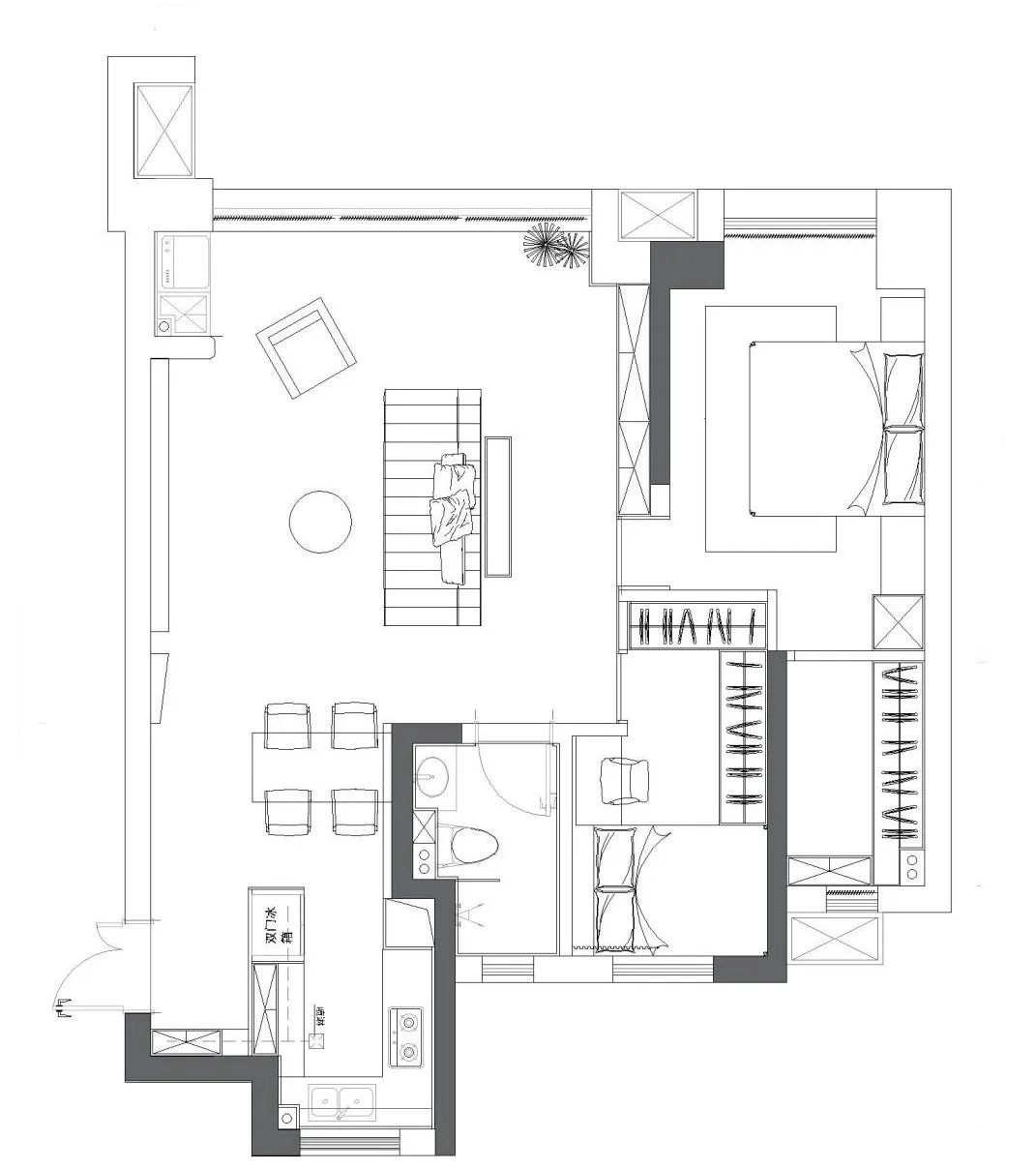
#平面布置图
■本案户型最大的优势是高楼层且临江的位置,视野开阔采光优越。缺点是公摊面积大,导致每个独立空间的尺度非常有限。
■于是在平面阶段我们打掉了一个房间,适当增加了卫生间的面积,同时让客厅和阳台连通,形成了一个特别宽敞的公区,让整体空间看上去更加通透和流畅。
■随之产生的问题就是所有的门都对着客厅,门是链接不同区域的过渡,由于空间的局限性,它既要起承接作用,又不能太突兀,于是处理这些门成了首要工作,我们用了隐形门将门和柜体、墙板做成了一个整体,卫生间则采用了隐框门来弱化它的存在。
大横厅
活动不受限
01#
选择一种审美
因为客厅和门的关系,整体的风格走向趋于现代和极简。可是这种审美更贴合年轻人的取向。于是我们在选用大面积木饰面的前提下,穿插了一些石皮和植物,让整个空间更富有禅意。
单纯从造型上去
迎合两代人
似乎比较
困难
我们希望在精神层面上的审美
能具备更大的包容性
他并不是一个极简空间,
也不是一个单纯的现代空间,
而是一个宁静,舒适,有温度的家。
02#
选择一种生活方式
我们父辈那代人,普遍东西都很多,而我们这代人,更能接受定期的“断舍离”。这栋房子以满足老人的生活方式为主,所以我们尽可能在家里做更多的收纳,甚至牺牲了一个卫生间做成了收纳,柜内采用了大量的可调节承板,以适应不同的收纳需求。
#主卧空间
#次卧空间
再多东西也有了去处,
确保所有物品都能井井有条,
而不是随意地堆放在家里各个角落。
03#
选择改变一些使用习惯
我们很多的使用习惯,往往是环境带给我们的,比如办公习惯,烹饪习惯,晾晒习惯等等。时间久了,很多人就会觉得本应如此。但是我们忘记了重要的一点,也有可能是空间、设备、家具,这些居住条件迫使我们不得不这样。
#餐厅空间
每一次家的装修,都是一次让我们可以有更好的家居使用体验的机会。比如烘干机,更智能的厨电设备,更便捷的卫浴,更舒服的看电视的姿势等等。
以上都是我们想要在这套住宅里面去探讨并尽可能实现的内容。可是作为设计师,我也深知我们能提出最符合业主需求和优化生活的构想,最后能否落地,其实还依赖于业主家人之间的磨合。
一套好的作品,绝不是设计师独自完成的。在这个项目的落地过程中,让我感受最深的一直是家人之间的温暖。正是因为家人之间相互的爱和关怀,设计师和业主的彼此信任,才能让很多理念很快地推进下去。
不考虑社交的家,自然要最大限度地考虑生活的日常。对于业主来说,单卫足矣,扩大的卫生间,有更大的操作空间。
隐形门更好的成全了卫生间的私密性,同时与客厅的墙壁、柜门形成整体。
项目详情:
项目名:暖阳
项目类型:住宅
建成时间:2024年5月
项目面积:100㎡
项目地址:汉口1872
设计团队:WUTO吾同设计机构
关 于 吾 同
2023COLOUR年度优秀色彩空间设计奖
2023老宅新生设计奖
2023年PCHOUSE AWARD 私宅设计大奖
2023金航标设计奖
2023in-home award金住奖
2023年40 UNDER 40中国(湖北)设计杰出青年
2023年40 UNDER 40中国(武汉)设计杰出青年
2023年武汉室内设计行业城市推动者品牌
2022年ARISTON国际室内设计大赛年度最佳空间设计先锋奖
2022年有温度的家设计大奖年度最佳空间美学奖
2022年40 UNDER 40中国(湖北)设计杰出青年
2022年40 UNDER 40中国(武汉)设计杰出青年
2022年老宅新生设计奖城市十大改造设计师
2022年金梁设计奖
2022年筑梦家.2022人居空间设计大赛卫浴命题年度杰出设计奖
2022年中国家装设计百强
2021年40 UNDER
40中国(湖北)设计杰出青年
2021年40 UNDER 40中国(武汉)设计杰出青年
2021年G+AWARDS 全球设计精英大赛-中国(城市)TOP10
2021年中国家装设计百强
2021年湖北设计星
2021年商业办公空间设计奖
2021年PCHOUSE AWARD 私宅设计大赛
2021年SIDW年度设计机构风云榜
2021年新锐设计奖
2020年PChouse Award 私宅设计大奖年度人气设计师
2020年 PChouse Award 私宅设计大奖城市榜武汉
BEST10
2020年 正式成为武汉设计联盟学会青年会会员
2020年 40 UNDER 40
中国(武汉)设计杰出青年
客服
消息
收藏
下载
最近























