查看完整案例

收藏

下载
AB Premium Optics侨福芳草地店由W+W Architects团队设计,是一间美术馆级的眼镜店。设计旨在通过艺术的方式呈现精品眼镜。
AB Premium Optics Qiaofu Fangcaodi Store, designed by W+W Architects, is a gallery-level eyewear store. The design aims to create a sense of luxury with low cost, presenting fine eyewear in an artistic way.
▼店铺门头,storefront © 任欣然
▼店铺入口,store entrance © 任欣然
这家90㎡专卖店只销售世界顶级品牌Lindberg和Akoni,其入驻的北京侨福芳草地更素有“北京最艺术的商业中心”之称。将其视为一间展厅而非传统店铺是设计的出发点。以此为基础,简化掉所有装饰和繁复构造,在划分功能和动线的同时塑造空间,通过质感细腻、成本经济的材料赋予空间温度,用准确的灯光设计聚焦展品,配合设计师家具升华品位。
The 90 ㎡ specialty store that only sells world-class brands such as Lindberg and Akoni, located in Qiaofu Fangcaodi, known as “Beijing’s most artistic commercial center” .The design approach was to treat it as an exhibition hall rather than a traditional store. Based on this, all decorations and complex constructions were simplified, Shaping space while arrange functions and traffic, and create warmth using delicate textures and cost-effective materials. Precise lighting design was used to focus on the eyewear products, enhancing the space with designer furniture to elevate the brand’s taste.
▼室内概览,interior overview © 任欣然
流动的空间,简洁大气的陈列和丰富细腻的质感,是整个空间给人的第一感受。建筑师在并不规整的90平米店铺空间里,设计了五道或悬浮于地面,或脱离天花板的陈列墙。雕塑般的墙体带来了强烈的流动感,既划分出了不同的功能区域,也很好地满足了顾客欣赏和挑选眼镜的空间尺度。大面积的实墙外界面营造了内部沉浸式的观展体验,而仅仅将最精彩的眼镜以橱窗的形式对外展示,也使这家眼镜店独具一格。
The fluid space, elegant display, and rich textures give a strong first impression of the entire space. The architects designed five display walls that either float above the ground or detach from the ceiling within the irregular 90-square-meter store. These sculptural walls create a sense of movement, defining different functional areas and providing customers with a space scale for appreciating and selecting eyewear. The solid outer walls create an immersive internal exhibition experience, while showcasing the most exciting eyewear externally as window displays gives the store a unique touch.
▼悬浮墙体,floating walls © 任欣然
除了品牌配套的展柜外,建筑师在悬浮的墙上设计了多层实木陈列板,温润柔和的浅色白橡木纹衬托出每副眼镜的极致工艺;既强化了整面墙的悬浮感,使所有眼镜以一个清晰的整体呈现在客户面前,也呼应了品牌方对木质元素的偏爱。
In addition to brand-compliant display cabinets, the architects designed multi-layer solid wood display shelves on the floating walls, showcasing the exquisite craftsmanship of each pair of glasses with warm, light-colored white oak patterns. This not only strengthens the floating feel of the entire wall, presenting all glasses as a cohesive whole to customers, but also aligns with the brand’s preference for wooden elements.
▼温润柔和的实木陈列板,warmth of the wood display shelves © 任欣然
▼展陈架,display shelve © 任欣然
墙地面材料则通过微水泥以十五道工序呈现细腻肌理,表面如绒布般丝滑,使整个展陈空间浑然一体又富有质感。
The wall and floor materials, presented in delicate textures through a fifteen-step process of microcement, create a soft, velvety surface resembling plush fabric, tying the entire exhibition space together with a rich tactile feel.
▼细腻肌理,delicate textures © 任欣然
由新加坡金牌灯光设计师Toh Yah Li作为顾问,通过巧妙的灯光设计,让顾客自然将视线聚焦在眼镜陈展区。灯光师以展示眼镜为目的,划分了四个照明等级。最亮的一级为眼镜陈列板上方的线性光和展柜的内置灯光,可以清晰展现所有眼镜的细节;次一级是顶部的内嵌射灯,通过带角度的锥形光强化展区轮廓;其余的射灯作为第三级,给整个空间以均匀照明;最后一级是位于吊顶边缝和墙体上下端的灯带,烘托空间的悬浮氛围。验光室灯光达到德国帕斯卡专业验光室标准。
With the guidance of awarded Singaporean lighting consultant Toh Yah Li, clever lighting design focuses customers’ attention naturally on the eyewear display area. The lighting design categorizes four lighting levels for the purpose of displaying glasses. The brightest level is the linear light above the glasses display board and the built-in light of the display cabinet, which can clearly show the details of all glasses. The next level is the recessed spotlights on the top, which enhance the outline of the exhibition area through angled cone light, while other spotlights provide uniform illumination. The last level is the light strips located at the ceiling edges and the upper and lower ends of the walls, which create a suspended atmosphere in the space. The lighting in the optometry room meets the professional standards of Germany’s Pasca optical room.
▼品牌展示区,brand display © 任欣然
▼展示橱窗,display window © 任欣然
▼细节,details © 任欣然
店内的所有陈设,大到家具小到五金配件,均由建筑师团队精心挑选。家具均出自世界顶级设计师之手,样式或者质地都和眼镜有所呼应。包括意大利国宝大师Achille Castiglioni的Frisbi吊灯,密特朗总统御用设计师Philippe Starck的Victoria Ghost座椅,Ludovica & Roberto Palomba的Max-Beam板凳。展厅内的两张原木会客桌由W+W Architects主持建筑师黄养设计—天然原木被精准切割的几何型亚克力托在半空。顾客最终会在这里坐下来,再次感受心仪眼镜的独特魅力。
Every object in the store, from furniture to hardware accessories, was carefully selected by the architect’s team. Furniture from top world designers complements the style and quality of the eyewear. Notable pieces include the Frisbi pendant light by Italian master Achille Castiglioni, the Victoria Ghost chair by Philippe Starck, and the Max-Beam stool by Ludovica & Roberto Palomba. Two solid wood guest tables in the exhibition hall were designed by the lead architect Huang Yang from W+W Architects, featuring natural wood cut precisely into geometric acrylic shapes suspended in mid-air. Customers can sit at these tables and once again experience the unique charm of their preferred eyewear.
▼悬浮桌子,suspended table © 任欣然
▼服务区,service area © 任欣然
我们以人的需求—功能、美学、精神作为设计核心,以成本、运营、建造环境是设计的底层逻辑。在这个基础之上,空间塑造,节点构造,材料质感,灯光设计,软装陈列才能发挥其各自的最大作用,它们彼此关联,形成一个有力的整体。
We take people’s needs – function, aesthetics and spirit as the core of design, with cost, operation, and construction forming the underlying logic of the design. Space shaping, node construction, material textures, lighting design, and interior decoration can only maximize their effects on this foundation, with each element interconnected, forming a powerful whole.
▼从服务台看展柜,view from service table towards display shelves © 任欣然
▼门把手细节,handle detail © 任欣然
▼平面图,plan © 瓦加瓦建筑设计
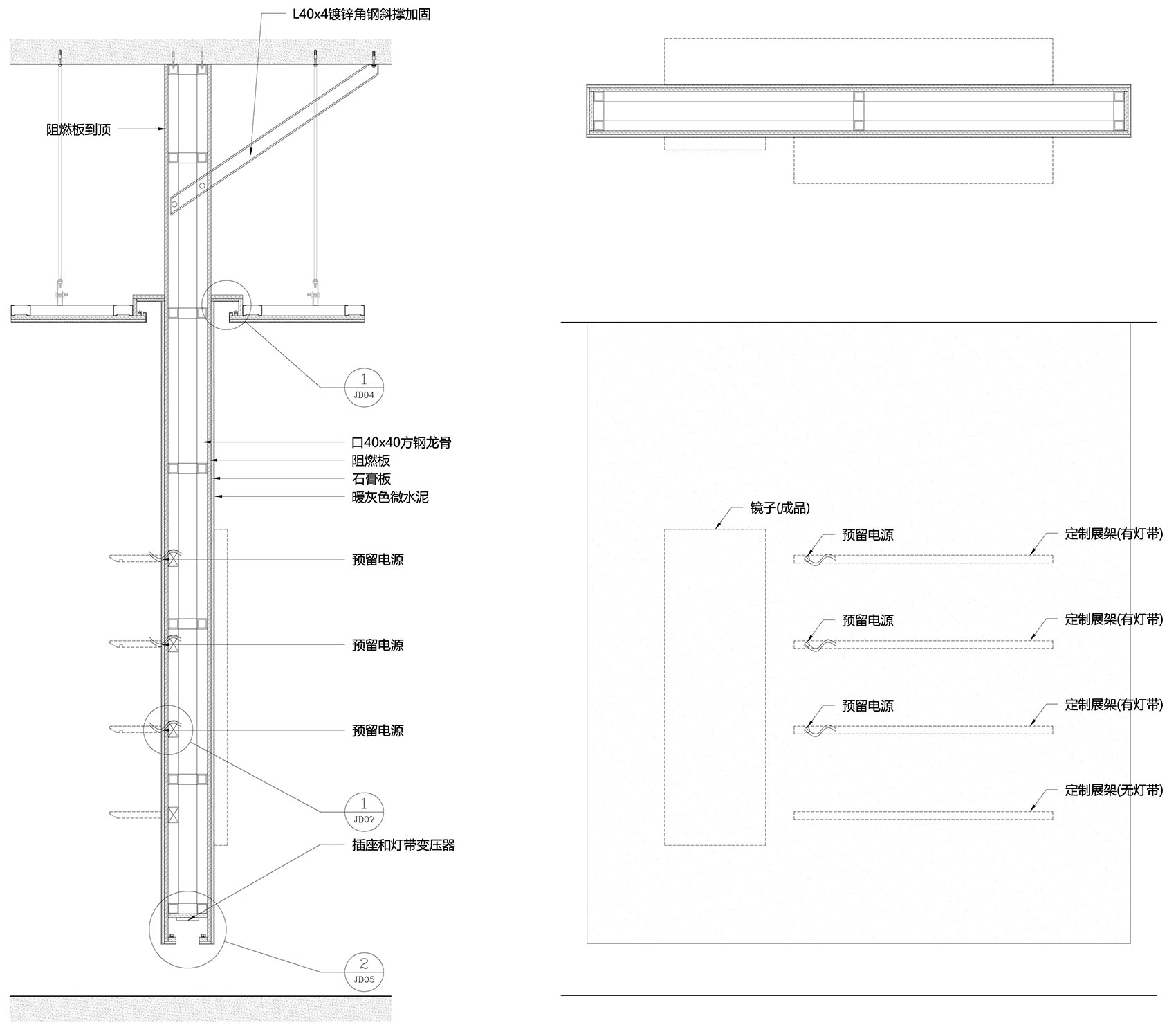
▼大样图,detailed section © 瓦加瓦建筑设计
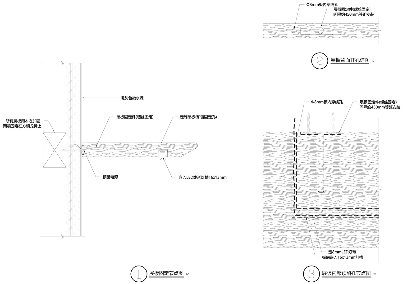
▼节点,details © 瓦加瓦建筑设计
项目名称: AB Premium Optics
建筑事务所/公司/机构/单位: 瓦加瓦建筑设计咨询(上海)有限公司
公司所在地: 上海,中国-
项目完成年份: 2024年3月1日至2024年4月15日
建筑面积: 90㎡
项目地址: 北京市朝阳区侨福芳草地
项目造价:50万
主创建筑师: 黄养
设计团队:任欣然,严爱荣,林秦云,杜云瀚
驻场建筑师:任欣然
灯光顾问:Light Collab (新加坡): Yah Li Du, Hong Yu
施工管理:石研坊(上海)建筑科技有限公司
微水泥施工团队:FUFINI
成品展柜供应商:LINDBERG
委托方: 北京睛澄儿科技有限公司
摄影师: 任欣然
Project Name: AB Premium Optics
Architecture Firm: W+W architects
Firm Location: Shanghai, China
Completion Year: 2024
Gross Built Area: 90㎡
Project location: Qiaofu Fangcaodi Chaoyang District, Beijing
Project Budget: 500,000 RMB
Lead Architect: Yang Huang
Lead Architect: Yang Huang
Design Team: Ace Ren, Airong Yan, Qinyun Lin, Yunhan Du
On-site Architect: Ace Ren
Light Consultant: Light Collab (Singapore): Yah Li Du, Hong Yu
Construction Management: Lab-Shi
Microcement Construction: FUFINI
Display Cabinets: LINDBERG
Clients: Beijing Jingcheng-er Technology Limited Company
Photo credits: Ace Ren
客服
消息
收藏
下载
最近

































