查看完整案例

收藏

下载

附件

翻译
Architect:Didonè Comacchio Architects
Location:Rosà, Vicenza, Italy; | ;View Map
Category:Apartments;Private Houses
Restyling project of a former barn in a farmhouse from the early 1900s in the Venetian countryside.
What was once a barn located above the stable now becomes a private residence, trying to maintain some characteristic elements of the rural warehouse.
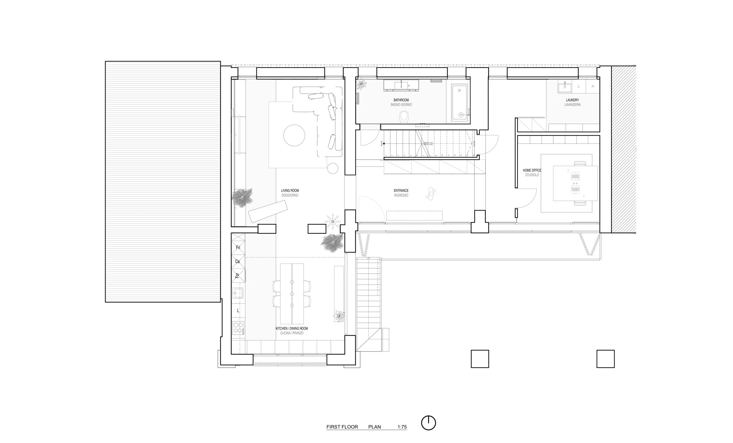
The access to the residence is via the steel staircase from the large south-facing porch. The arrival gallery opens onto the large window protected by a membrane of slatted larch wood, the same essence of the roofing. This large double-height membrane opens at the entrance and at the study room.
The external stair and the gallery recall the typology of the farmhouse in the Venetian countryside.
The interior rhythm of the tripartite plan is underline by large walls made of stones and bricks, restored with original materials as for the beams that make up the roofing, enhance the passage of time on their surfaces.
The distribution between the first and second floors takes place via an internal staircase. On the first floor there is the entrance, the living area, a study room and some service areas. On the second floor there is the master bedroom, a second bedroom, the bathroom and a storage all connected by a large corridor. All rooms on the second floor have exposed wooden roofing.
The interior spaces have a contemporary flavor that enhances the pre-existing through the contrast between the new surfaces and the rough, almost raw, existing ones. The artificial lighting also works in this direction, alternating hidden light sources with lighting fixtures with a simple design, following up with the minimal concept that guides the entire project.
▼项目更多图片
客服
消息
收藏
下载
最近

















