查看完整案例

收藏

下载

翻译
Architects:Mário Martins Atelier
Year:2023
Photographer:Fernando Guerra | FG+SG
Architect:Mário Martins
Design Team:Rita Rocha; Sónia Fialho; Susana Caetano; Susana Jóia; Ana Graça
Engineering:Nuno Grave Engenharia
Construction:Marques Antunes Engenharia Lda
City:Lagos
Country:Portugal
Text description provided by the architects. The project focuses on a building located at the corner of the block, which was the site of a previous demolition of an old 2-story building formerly used for housing. The building is an integral part of the urban fabric within the city walls of Lagos, opposite the Church of S. Sebastião.
The building was built from the ground up to be a home for a couple with children living in a dense but calm area of the city's historic center. With the objective of contemporizing the intervention, the scale and design of the building are sought in the surroundings and pre-existence. The biggest challenge is maintaining dialogue with the Church opposite, a building of greater size and exceptional character, a national monument.
It's therefore important to design a building to accompany and complete the block, sober and solid, with rhythmic metrics, whose new design conveys an identity, with the weight and scent of the times, of a city that has existed for many centuries.
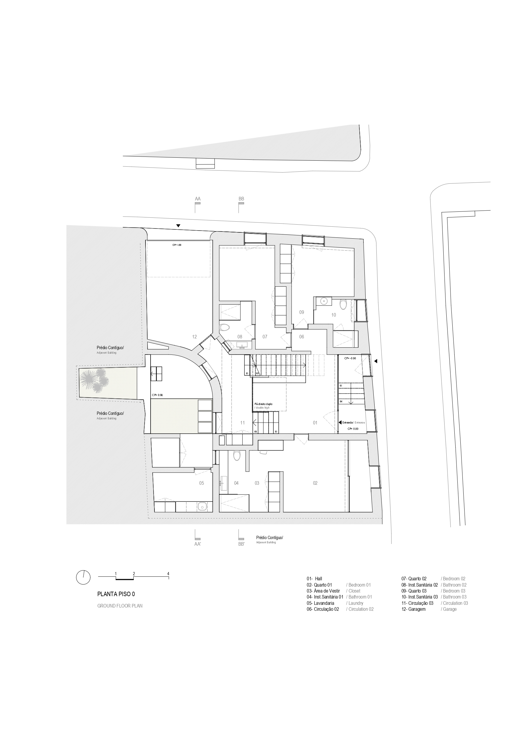
The unevenness of the two street fronts and the intended spatial relationship between the house and the small courtyard determine the spatial organization and the fluid relationship between floors. Entry is on the ground floor, in front of the church. Some steps and an outside atrium establish the transition between the street and the house.
The entrance floor is dominated by the open hall, which gives us a view of the upper floors and the stairs, the second flight of which appears loose and suspended. Three bedrooms with support sanitary facilities are organized from this hall, and there is access to a small non-residential basement for technical services. On a half floor, there is the entrance to the garage, the laundry room, and the outdoor patio, where a more intimate experience, so typical of southern lands, is restored.
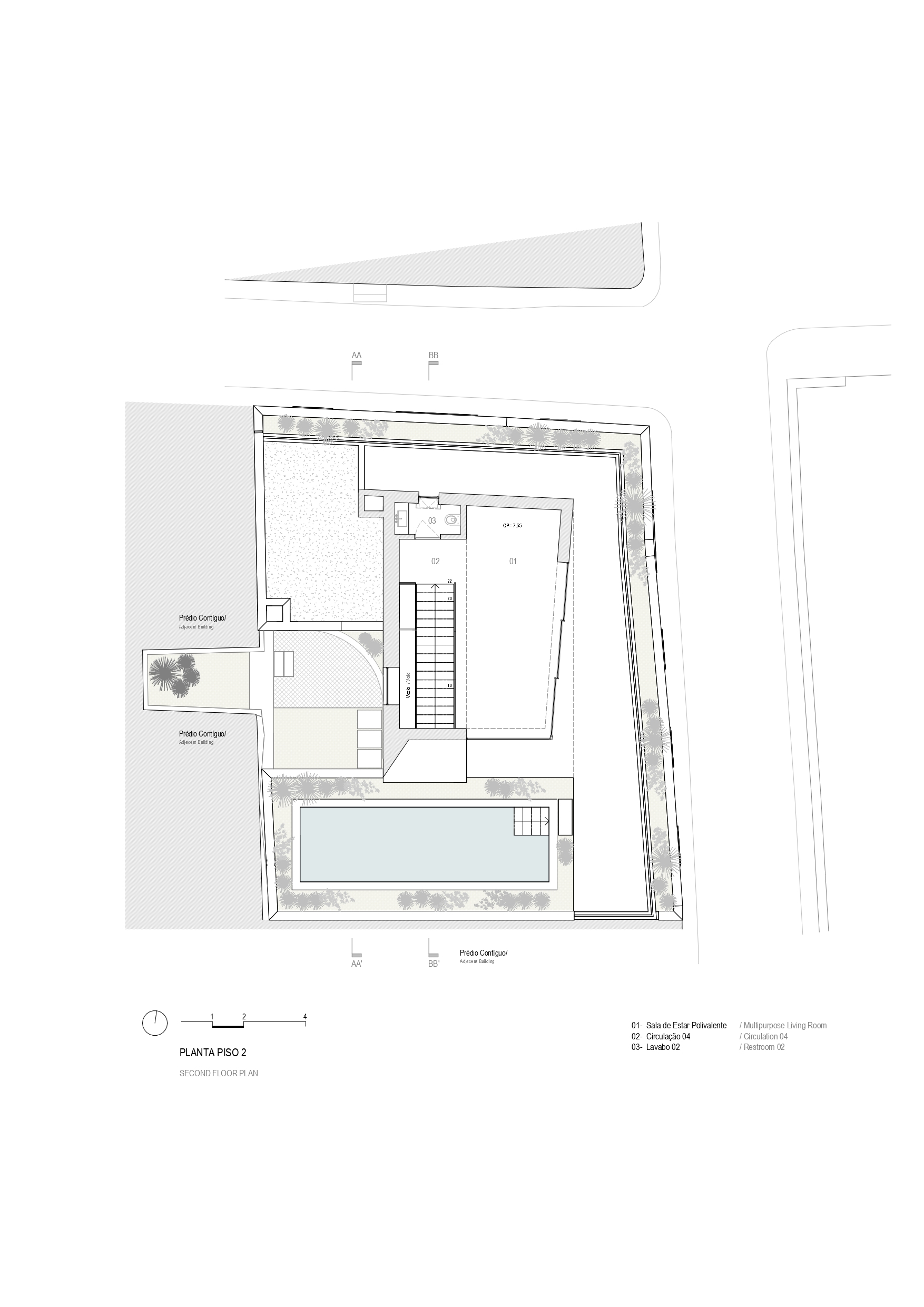
The 1st floor is an open space where, around the central opening, the living and dining area, the kitchen, a bathroom, and the master bedroom are developed. At the roof level, a recessed floor appears discreetly, giving access to a panoramic terrace where the swimming pool and leisure areas are located, open to the sun and views.
The architectural and technical solutions also presuppose the search for high levels of sustainability, with particular relevance for:. High thermal comfort, determined by the design and construction techniques;. Solar control;. Using solar energy;. Solutions that reduce the need for water resources;. Prioritize proximity when choosing raw materials and suppliers.
The result of an analysis of the morphological and architectural structure of the surroundings is that the answer is a sober but rigorous language of the architecture of this place.
White painted plaster covers the building, interspersed with deep moldings in light limestone from the region. The generous thickness of the exterior walls is restored, highlighting the shadows, volume, verticality, rhythm, metric of the spans, and covering materials, which accentuate the weight and character of the building. From a compromise between the past and the present, the space and urban experience are revitalized in an area so sensitive due to its proximity to the Church of S. Sebastião.
Project gallery
客服
消息
收藏
下载
最近
































