查看完整案例

收藏

下载
项目名称:
天府惠串串香敦煌店
项目地点:
新疆
项目面积:
200㎡
创作时间:
2024年
设计公司:
坤薪整装
合作内容:
空间设计
品牌介绍:
天府惠串串香,源自四川的美味传奇。以其独特的口味和优质的食材,深受广大食客喜爱。 这里精选各种新鲜食材,串串品类丰富多样,让您尽情挑选。锅底麻辣鲜香,味道醇厚浓郁,带给您地道的四川风味体验。店内环境舒适整洁,服务热情周到,让您在享受美食的同时,也能感受到贴心的服务。天府惠串串香致力于为每一位顾客带来美味与满足,无论是与朋友小聚还是家庭聚餐,都是绝佳的选择。快来天府惠串串香,开启一场舌尖上的麻辣狂欢之旅吧!
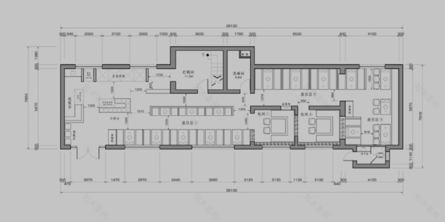
平面图:
入口处设计宽敞,方便顾客进入,不会造成拥堵。顾客进入后,能快速且流畅地到达选菜区,选菜区的位置显眼且通道宽敞,便于顾客挑选串串。接着前往就餐区的路线清晰,保证顾客行走顺畅。 在使用上,就餐区的分布较为集中,方便服务员提供高效服务。厨房与选菜区紧密相连,确保食材能够及时供应且保持新鲜。收银台设置在较为显眼的位置,方便顾客结账。同时,店内还合理规划了过道空间,确保顾客在店内走动时不会相互干扰。座位的安排也充分考虑到不同人数顾客的需求,有单人座、多人座等多种形式。整体平面布局既满足了顾客在就餐过程中的便捷需求,又实现了餐厅运营的高效性,为顾客提供了舒适的用餐环境和流畅的体验。
设计亮点:
从色彩搭配角度来看,整体色调热烈而富有活力,以红色为主色调,营造出热情洋溢的氛围,契合串串香这一美食所带来的火辣体验,同时搭配一些暖色调的辅助色彩,使空间既充满激情又不失和谐。灯光设计上也别具匠心。温暖柔和的灯光均匀分布在各个区域,照亮了菜品展示区,让串串的色泽更加诱人,激发顾客的食欲;而就餐区的灯光则营造出温馨舒适的氛围,让顾客能够放松享受用餐过程。重点区域还采用了局部照明,突出了特色装饰或重要元素,增强了视觉焦点。
效果图展示:
在空间布局方面,巧妙地划分出不同功能区域。开放式的选菜区宽敞明亮,顾客可以自由挑选自己喜爱的串串,增强了互动性和参与感;就餐区则根据不同需求划分成不同大小的区域,有适合情侣的私密双人座,也有适合多人聚会的大桌,满足了多样化的顾客群体。
材料选择上,注重质感与耐用性的结合。地面采用防滑材质,确保顾客行走安全;桌椅选择舒适且坚固的材料,给顾客提供良好的就座体验。天花板的设计简洁大方,避免了压抑感,让空间更显通透。
装饰元素的运用也为空间增添了丰富的层次感。墙上悬挂着具有四川特色的艺术画作和民俗照片,展示了四川的地域文化,让顾客在享受美食的同时,也能感受到浓厚的文化氛围。还有一些精致的串串造型装饰,既点明了餐厅的主题,又增加了趣味性。
通风系统的良好设计保证了室内空气清新,避免了串串香的味道过于浓烈而影响顾客体验。同时,合理的声学处理减少了噪音,让顾客能够在相对安静的环境中交流。
主要材质介绍:
水磨石的运用给人一种朴实而坚固的感觉,营造出安稳的就餐氛围;木饰面则增添了自然与温暖的气息,让顾客感受到舒适与放松。红色铝板带来强烈的视觉冲击,展现出热情与活力,与串串香的火辣风味相呼应,使整个空间充满激情。定制木格既起到了装饰作用,又增加了空间的层次感与精致感。灰色皮革的座椅柔软舒适,为顾客提供了良好的就座体验,让他们可以惬意地享受美食。 整体上,这些材料的组合打造了一个既时尚又温馨,既充满活力又不失雅致的就餐环境。顾客在这里仿佛置身于一个独特的美食天地,能尽情沉浸在美味的串串香中,享受一场视觉、触觉与味觉的盛宴,留下深刻而愉悦的用餐记忆。
设计总结:
天府惠串串香的空间设计在色彩、灯光、布局、装饰、材料等多个角度都展现出独特的亮点,共同营造出一个既充满活力又舒适宜人的用餐环境,让顾客在享受美味串串的同时,也能获得视觉、听觉等多方面的愉悦体验。
坤薪整装服务范围介绍:
设计模块-管理模块-施工模块-材料模块-设备模块-家具模块-广告模块-软装模块/八大模块一站式服务餐饮企业
· END ·
客服
消息
收藏
下载
最近













