查看完整案例

收藏

下载
缘起·阳明在绍
Origin
王阳明故居与纪念馆位于绍兴西小河历史文化街区,南面为明嘉靖年间礼部尚书吕本的府邸,西小河历史文化街区与场地东西相望,东面为规划的阳明故里核心区越城坊商业区,西临西小河,北靠上大路。市级文物保护单位王阳明故居遗址位于用地范围内,保护对象包括石门框、饮酒亭、王衙池(碧霞池)、观象台、伯府大埠头(遗址)及大有弄石坊残基。
▼纪念馆鸟瞰,Bird’s-eye view of Yangming Memorial Hall ©吴清山
Wang Yangming’s Former Residence and Memorial Hall is located in Shaoxing West River Historical and Cultural Block, to which south is the residence of Lv Ben, the Director of the Board of Rites during the Ming Dynasty Jiajing period, and which faces the site from east to west, to which east is the planned Shaoxing Memorial Archway Commercial District at the core area of Wang Yangming’s Hometown, to which west is West River and to which north is Shangda Road. The site of Wang Yangming’s Former Residence, a municipal-level cultural relics protection unit, is located within the scope of land use, and the protected objects include Stone Gate Frame, Drinking Pavilion, Wangya Pond (Bixia Pond), Observatory, Bo Mansion Quay (Site) and Dayou Lane Stone Residues.
▼总体区位图,Site location ©UAD
集结·情景叠合
Situational congruence
基于史料考证与实地勘察,结合已有的考古调查报告,首先确定保护修缮好四处遗址和两处遗迹等文物保护单位,对王阳明故居进行复原研究,据此恢复王阳明故居建筑格局,实现研学、会议、展示功能。讨论确定将王阳明纪念馆设置于碧霞池的东侧,主出入口面向碧霞池敞开,以确保整个项目格局中王阳明故居复原呈现的主角地位。
Based on historical research and field investigation, and combined with the existing archaeological investigation reports, the first step is to determine the protection and repair of four cultural relics, two other cultural ruins and other protection units, and to conduct restoration research on Wang Yangming’s Former Residence. In this regard, the architectural layout of Wang Yangming’s Former Residence is restored, achieving research, conference and exhibition functions. It is decided to set Wang Yangming Memorial Hall on the east side of Bixia Pond, with the main entrance and exit open to Bixia Pond so as to ensure the leading role of Wang Yangming’s Former Residence as restoring in the whole project pattern.
▼基地内历史遗迹照片,Historical relics photos within the site ©浙江省古建院
新建王阳明纪念馆,旨在从当代的角度,重新审视和瞻仰阳明心学的发展历程与成就,并展陈有关物证佐料、阳明纪录片以及有关文旅产品。西起大埠头,东至碧霞池的场地宜规划形成室外活态展示区,形成新的阳明广场。
The newly-built Wang Yangming Memorial Hall aims to re-examine and pay tribute to the development process and achievements of Wang Yangming’s heart-mind theory from a contemporary perspective, and to display relevant material evidence, documentaries on Wang Yangming and related cultural and tourism products. The site, which starts from Big Quay in the west and ends at Bixia Pond in the east, should be planned to form an outdoor exhibition area, developing into a new Yangming Square.
▼设计前后的场地鸟瞰对比,Bird’s-eye view comparison between before and after design ©赵强
空间·秩序关联
Space and order relevance
面临那么多需要展现和表达的场景内容,我们通过时间和边界这两个构建元素进行归纳与区分;依据秩序感,方向性和中心点,这三个建构逻辑进行总图布局,或叫场景关联设计。
因此,本项目的展示或统领场地空间的主轴线,定义为自西向东的主轴线——即以伯府大埠头(遗址)为起点,以碧霞池(遗址)为中心,轴线北侧为自南向北由石门框展开的王阳明故居,轴线中间是饮酒亭南侧的碧霞池,两处遗址保留皆较完整。继续向东,我们将拟建的王阳明纪念馆放在轴线东端,并以置于阳明广场的王阳明雕像和衬于期后的王阳明纪念馆核心体量——心厅,作为轴线的收头。整个王阳明纪念馆以 U 型院落式围合中央圆形心厅,突显在心厅展示的心学成就作为纪念秩序的高潮点。
据此,完成了项目展示或统领场地空间的主轴线。
Faced with so many scene contents that need to be displayed and expressed, we summarize and distinguish them through two building elements: time and boundary. Based on the sense of order, directionality and centrality, these three construction logics are used for general layout or scene association design.
Therefore, the main axis of this project, which displays or dominates the space of the site, is defined as the main axis from west to east, i.e. starting from Bo Mansion Quay (Site) and centering on Bixia Pond (Site), while with Wang Yangming’s Former Residence spreading from south to north by the stone door frame to the north side of the axis, and Bixia Pond situating on the south side of the Drinking Pavilion in the middle of the axis, both of which are well preserved. Continuing eastward, we put the proposed Wang Yangming Memorial Hall at the eastern end of the axis, and take Wang Yangming Statue in the Yangming Square and the Heart Hall, the core volume of Wang Yangming Memorial Hall, as the end of the axis. The entire Wang Yangming Memorial Hall is surrounded by a U-shaped courtyard in the central circular heart hall, highlighting the achievements of heart-mind theory displayed in the Heart Hall as the climax point of the commemorative order.
Accordingly, the main axis of the project display or leading site space is completed.
▼项目实景鸟瞰-东西向轴线,Bird’s-eye view of site east-west axis ©赵强
鉴于伯府大埠头已成遗址(无水面),而项目毗邻南侧吕府有一东西向贯穿通道,以西小河东岸河埠头为水路上岸起点,以大有弄石坊(拟遗构恢复)为入口标志,可一路向西,至东面规划的阳明故里文化主题街区。从而形成了项目实际意义上的东西行进流线——沿西小路河埠头,上岸,利用一老宅台门,经修复,作为项目游客中心,经大有弄石牌坊,进入阳明广场。左转往北是阳明故居的入口通道,右侧为“此心光明”的主题照壁,向东沿榆树林前行,北侧分别是碧霞池,王阳明雕塑和王阳明纪念馆的东西主轴线。继续向东可至规划的越城坊及阳明故里文化片区。
In view of the fact that Bo Mansion Quay has become a site (without water surface), and the project is adjacent to Lvfu on the south side, with the quay on the east bank of West River as the starting point of waterway landing, and Dayou Lane Stone Residues (to be restored) as the entrance sign, it can go all the way west to the planned cultural theme block of Wang Yangming’s hometown in the east. Thus, the east-west travel streamline in the practical sense of the project has been formed, going ashore along the quay of West River, using the terrace door of an old house, being restored as a visitor center of the project, and entering Yangming Square via Dayou Lane Stone Archway. Turning left to the north is the entrance passage of Wang Yangming’s Former Residence, on the right is the theme wall of “My Heart Is Bright”, going east along the elm forest, and on the north are the east-west main axes of Bixia Pond, Wang Yangming Sculpture and Wang Yangming Memorial Hall. Continuing eastward leads to the planned Shaoxing Memorial Archway and Yangming’s Hometown Cultural Area.
▼项目实景鸟瞰-南北向轴线,Bird’s-eye view of site north-south axis ©赵强
场所·环境特质
Characteristics of the site
王阳明故居复建建筑遵循伯府原有格局,采用“一轴、四进、六重”的平面布置方式。建筑构造采用与历史遗存和文物推测相吻合的风貌复原;建筑在采用传统形式与构造手法的同时,兼顾现代功能与规范要求,考虑观赏、利用及消防疏散和安全救护等现代需求,源于传统,而优于传统。
▼王阳明故居考古平面和设计推测平面,Archaeological Plan of Wang Yangming’s Former Residence and Design Speculation Plan ©浙江省古建院
The reconstruction of Wang Yangming’s Former Residence follows the original pattern of Bo Mansion, and adopts the plane layout of “one axis, four advances and six overlaps”. The architectural structure adopts the restoration style consistent with the speculation of historical remains and cultural relics. While adopting traditional forms and structural techniques, the building takes into account modern functions and standard requirements, and also considers modern needs such as viewing, utilization, fire evacuation and safety rescue, originating from but being superior to tradition.
▼阳明故居后厅,Back parlor of Wang Yangming’s Former Residence ©赵强
▼阳明故居内庭院,Courtyard of Wang Yangming’s Former Residence ©赵强
▼阳明故居东西中路,Mid-Dongxi Road of Wang Yangming’s Former Residence ©赵强
▼阳明故居室内,Interior of Wang Yangming’s Former Residence ©赵强
纪念馆则是在尊重绍兴历史文化名城建筑风貌格局和形式控制前提下,通过独特的建筑造型(心厅)演绎了地方文化性,并将传统的建筑形式、装饰风格与当地文化、民风民俗有机结合,衔接了历史街区的风貌内涵、提升了项目纪念属性和文化品位。
On the premise of respecting the architectural style pattern and form control of Shaoxing as a renowned historical and cultural city, the Memorial Hall interprets local culture through its unique architectural style (Heart Hall), and organically combines the traditional architectural form and decorative style with local culture and folk customs, connecting the style connotation of historical blocks and enhancing the commemorative attribute and cultural taste of the project. The design scheme highlights the leading role of the Former Residence.
▼故居鸟瞰全景,Bird’s-eye view of the Yangming Memorial Hall ©赵强
▼阳明纪念馆夜景泛光,Night view of the Yangming Memorial Hall ©贾方
▼阳明纪念馆一层入口,1F Entrance of the Yangming Memorial Hall ©赵强
存在·形象价值 Image value 设计方案突显了故居的主角地位,通过下沉庭院,将纪念馆入口引至地下一层,适度弱化了地面建筑的感受,强化遗存构件与复原建筑的场所与神圣感。纪念馆方形广场与圆形冥想厅组成了“合而不闭,虚而不空”的空间,三面白墙与柱廊则限定了围合的空间,留出的一面向碧霞池打开,呼应了场地,同时留给观者以想象的空间。
By sinking the courtyard, the entrance of the Memorial Hall is led to the basement floor, moderately weakening the feeling of the ground buildings and strengthening the place and sacredness of the remaining components and restored buildings. The tetragonum square and the circular meditation hall coming with the Memorial Hall form a “enclosed but not closed, and virtual but not empty” space, while the three white walls and colonnades limit the enclosed space, and the left one side opens to Bixia Pond, echoing the site and leaving viewers with imaginative space.
▼阳明纪念馆景观楼梯,the Landscape Stairs of the Yangming Memorial Hall ©赵强
▼阳明纪念馆下沉水院,Sinking courtyard of the Yangming Memorial Hall ©赵强
▼阳明纪念馆冥想厅,Meditation Hall of the Yangming Memorial Hall ©赵强
▼阳明纪念馆冥想厅室内,Interior Meditation Hall of the Yangming Memorial Hall ©赵强
▼阳明纪念馆冥想厅与阳明像,Meditation Hall of the Yangming Memorial Hall and the sculpture of Yangming Wang ©赵强
▼阳明纪念馆室内,Interior Meditation Hall of the Yangming Memorial Hall ©赵强
意义·诗意力量 Poetic power
项目设计探索了现象集结与空间特性的建立,思考了场所意义与诗意力量的产生;从故居历史格局的追溯,到阳明广场的结构重塑与韵律形成;从圆的心厅的特性加强,到光与时间的永恒表达。试图探究纪念性建筑设计中,方向性与集中性是空间结构重塑的关键。原型的寻找,中心的衍生,场的建立,是在控制场所重建所必须确立的张力和态度。
The project design explores the establishment of phenomenon aggregation and spatial characteristics, and considers the significance of places and the emergence of poetic power, while tracing back the historical pattern of the Former Residence, extending to the structural restructuring and rhythmic formation of Yangming Square, and jumping from the strengthening of the characteristics of the circular central hall to the eternal expression of light and time. This building attempts to explore that direction and concentration are the key to reshape the spatial structure in memorial architectural design. The search for prototype, the derivation of center and the establishment of field are the tension and attitude that must be established in the reconstruction of control places.
▼碧霞池看阳明纪念馆,Yangming Memorial Hall from Bixiachi ©赵强
▼纪念馆下沉庭院,Sinking Courtyard of Yangming Memorial Hall ©吴清山
▼纪念馆下沉庭院,Sinking Courtyard of Yangming Memorial Hall ©赵强
▼纪念馆室内展陈序厅,Exhibition Hall of Yangming Memorial Hall ©吴清山
▼纪念馆心厅室内展陈,Exhibition of Yangming Memorial Hall Xin Hall ©吴清山
▼阳明广场,Yangming Square ©吴清山
▼阳明故居夜景泛光,Night view of the Yangming Memorial Hall ©贾方
▼阳明故居夜景泛光,从门厅看故居正厅,Night view of the Yangming Memorial Hall ©贾方
▼总平面图,General plan ©UAD
▼纪念馆一层平面图,1F plan of Yangming‘s Memorial Hall ©UAD
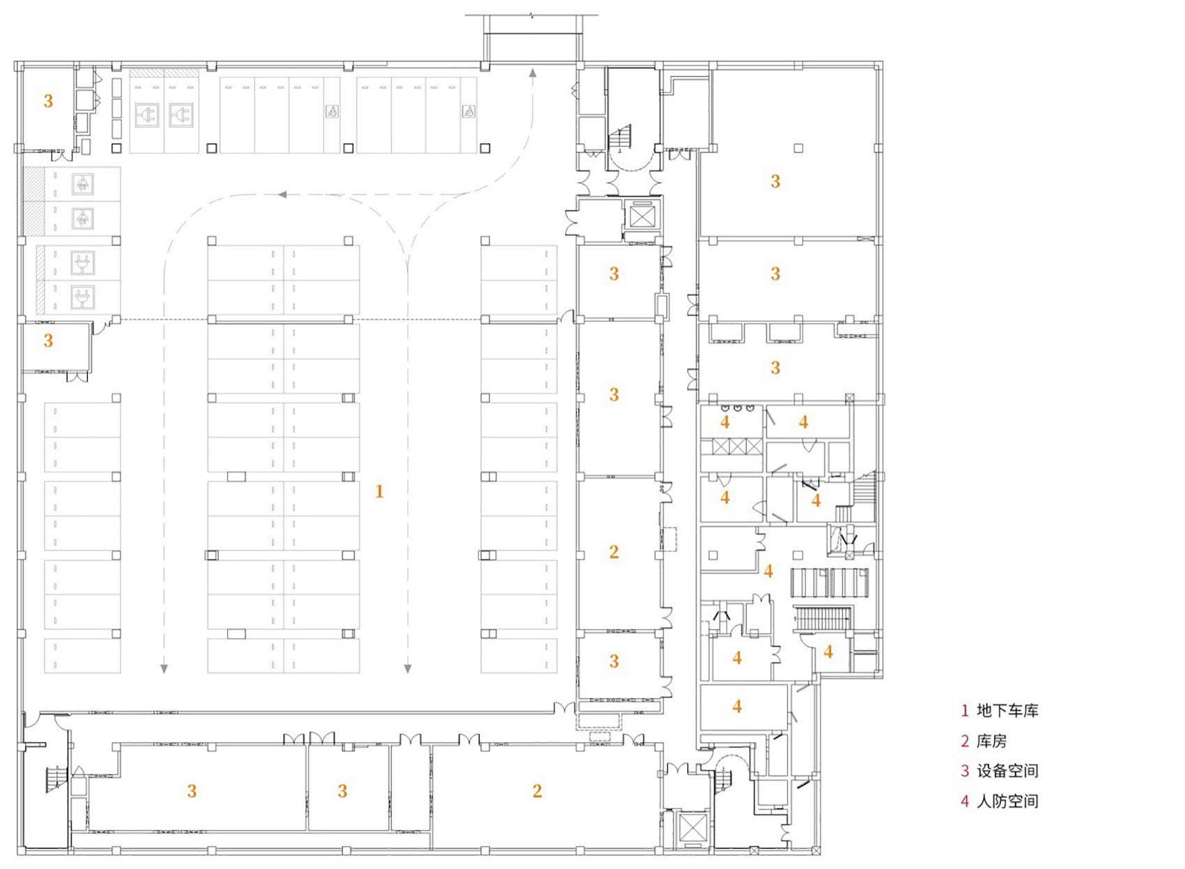
▼纪念馆负一层平面图,-1F plan of Yangming‘s Memorial Hall ©UAD
▼纪念馆负二层平面图,-2F plan of Yangming‘s Memorial Hall ©UAD
▼纪念馆屋顶平面图,Roof plan of Yangming‘s Memorial Hall ©UAD
▼纪念馆立面图,Elevation of Yangming‘s Memorial Hall ©UAD
▼纪念馆剖面图,Section of Yangming‘s Memorial Hall ©UAD
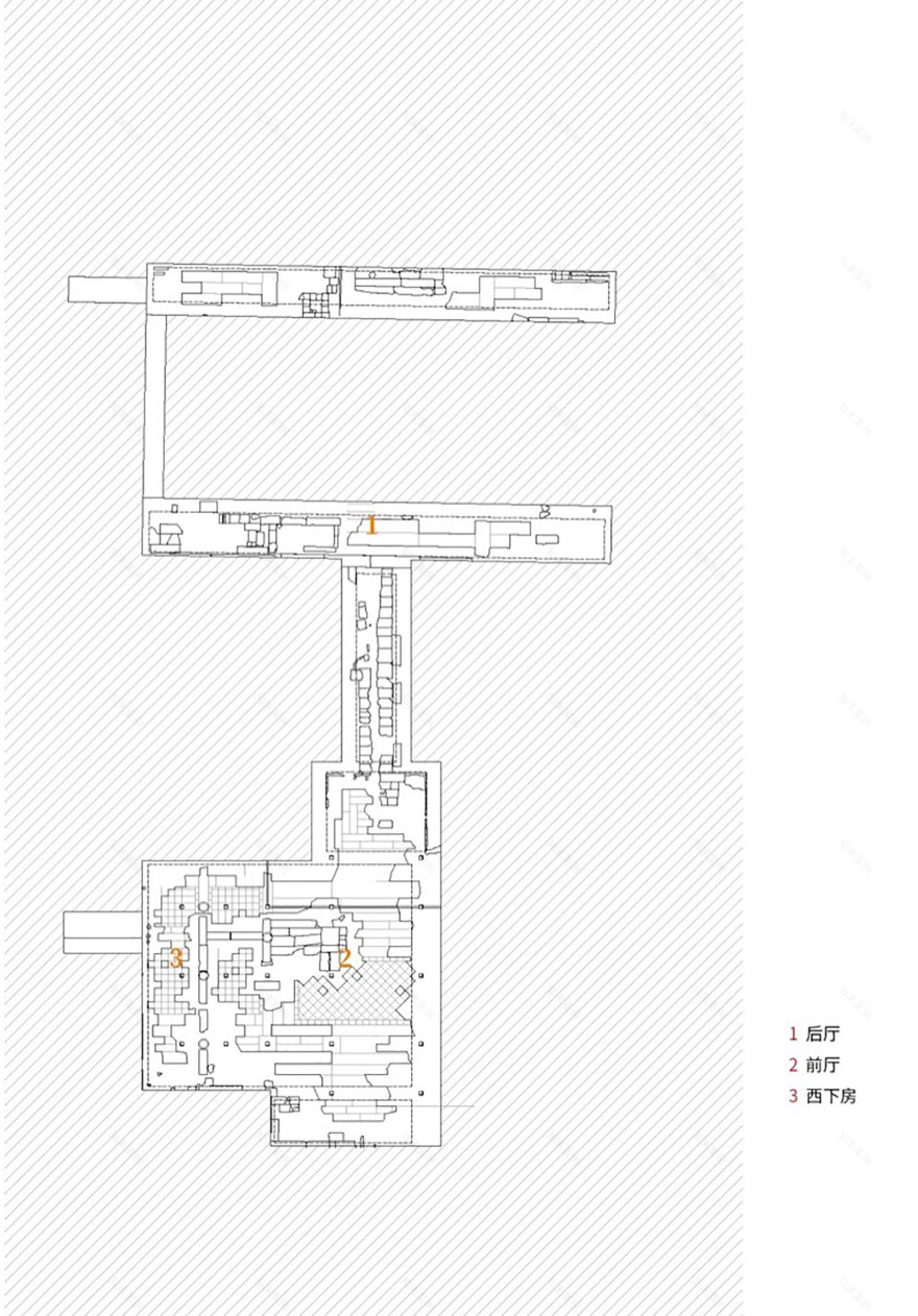
▼故居平面图,plan of Yangming‘s Former Residence ©UAD
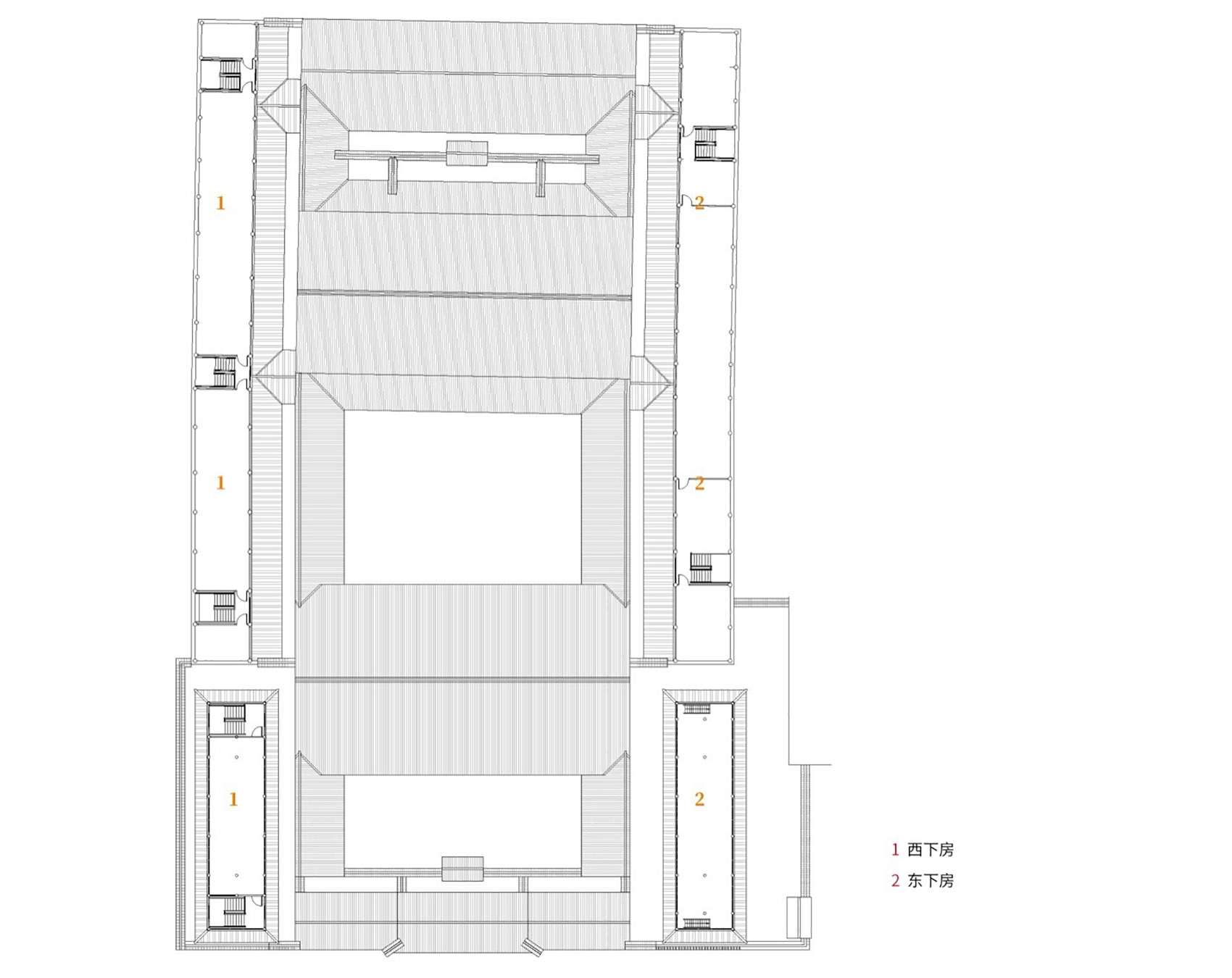
▼故居一层平面图,1F plan of Yangming‘s Former Residence ©UAD
▼故居二层平面图,2F plan of Yangming‘s Former Residence ©UAD
▼故居屋顶平面图,Roof plan of Yangming‘s Former Residence ©UAD
▼故居立面图,Elevation of Yangming‘s Former Residence ©UAD
▼故居剖面图,Section of Yangming‘s Former Residence ©UAD
项目信息:
项目名称:王阳明故居及纪念馆
项目类型:建筑
建筑事务所/公司/机构/单位:浙江大学建筑设计研究院 ACRC+浙江省古建筑设计研究院
公司所在地:浙江,杭州
项目地址:浙江省绍兴市越城区上大路南
建成状态:建成
设计时间(起迄年月):2018.8-2020.9
建设时间(起迄年月):2020.10-2022.10
用地面积(平方米):18504.33
建筑面积(平方米):12909.34
摄影师:赵强
主创建筑师:胡慧峰、黄滋
建筑:胡慧峰、吕宁、蒋兰兰、陈赟强、黄滋、刘杰、曹晖、何川南、曹雪、王涛
结构:张杰、丁子文、何立宏、王忠明、马永华
给排水:易家松、张振宇、席斌、章玉华
暖通:潘大红、王亚林、黄云舟、徐瑞萍
电气:吴旭辉、张薇、钱坤、林立、洪娴
智能化:林华、叶敏捷、尚远卓
景观:吴维凌、章驰、吴敌、敖丹丹、朱靖、徐非同、曹晖、王茹悦
室内:张毅、许晓佳、王欢、葛鲁君、何川南
照明:王小冬、宋洛颖
幕墙:史炯炯、王建忠、苏泽奇
基坑围护:陈赟、韩嘉明、杨勤锋
BIM 设计:任伟、包青青、陈畅、张顺进、王启波、杜李兴、张恒达
EPC:房朝君、涂建锋、陈军、校战旗
展陈设计:南京百会装饰工程有限公司
委托方:绍兴市文化旅游集团
施工方:浙江环宇建工集团有限公司
合作方:浙江省古建筑设计研究院
客服
消息
收藏
下载
最近












































