查看完整案例

收藏

下载
项目名称:
微醺串吧
项目地点:
北京
项目面积:
287㎡
创作时间:
2020年
设计公司:
坤薪整装
合作内容:
空间设计
品牌介绍:
微醺串吧,一家以独特烧烤体验为主的时尚餐吧。秉持传统烧烤的精髓,融入现代创新的烹饪技艺,打造出别具一格的美食佳肴。店内环境优雅舒适,融合了时尚与休闲的元素,为顾客提供轻松愉悦的用餐氛围。微醺串吧精选上等食材,严格控制烧烤过程,确保每一口都鲜美可口、健康安全。同时,还提供丰富的饮品选择,让顾客在品尝美食的同时,享受微醺的愉悦。微醺串吧,是您聚会、休闲、品味生活的理想之选。
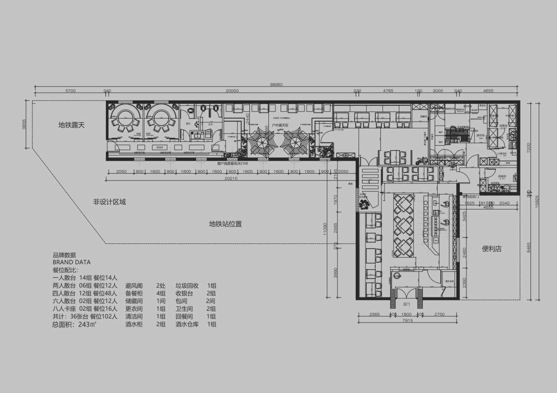
平面图:
采用开放式布局,让空间更显宽敞明亮。吧台设在显眼位置,方便顾客点单交流,同时展示各式美味串品。用餐区则以舒适为主,设置不同大小的桌椅组合,满足顾客多样需求。墙面装饰简洁大方,搭配暖色调灯光,营造出温馨舒适的用餐氛围。此外,还设有独立包间,提供私密用餐空间。整个布置方案既符合烧烤餐吧的定位,又充分考虑了顾客的用餐体验,让人流连忘返。
设计亮点:
开放式吧台与用餐区相互呼应,营造出轻松愉悦的用餐氛围。墙面装饰简约而不失格调,暖色调灯光柔和舒适,为顾客带来温馨舒适的用餐体验。同时,空间布局合理,既保证了顾客之间的私密性,又便于服务员的服务与互动。微醺串吧的空间设计既符合烧烤餐吧的定位,又充分考虑了顾客的用餐感受,为顾客提供了一个品味美食、享受生活的理想场所。
效果图展示:
微醺串吧的室内设计优点显著,美观程度也相当高。首先,其设计巧妙地融合了传统烧烤元素与现代时尚感,使得空间既具有独特的风格,又不失现代感。吧台与用餐区的布局合理,既方便了顾客的点餐与交流,又使得整个空间显得宽敞而有序。
空间布局灵活多变,既有宽敞明亮的公共用餐区,也有私密性良好的包间,满足不同顾客需求。
灯光和色彩的运用也是微醺串吧室内设计的亮点。柔和而温馨的灯光不仅为顾客营造了一个舒适的用餐环境,还使得整个空间显得更加温馨和有格调。同时,色彩搭配也恰到好处,既不过于鲜艳刺眼,也不过于沉闷单调,而是营造出一种轻松愉悦的氛围。
同时,灯光设计巧妙,暖色调灯光营造出舒适惬意的氛围,让人放松心情。
微醺串吧的室内设计还注重细节处理。墙面装饰、家具选择以及餐具摆放等方面都经过精心设计,既美观又实用。这些细节的考虑不仅提升了整个空间的美观程度,也为顾客带来了更好的用餐体验
此外,墙面装饰与空间风格相得益彰,简约而不失格调,凸显品牌特色。微醺串吧的空间设计充分展现了品牌魅力,为顾客提供了优质的就餐体验。
主要材质介绍:
水泥漆的质朴与青砖的复古相结合,营造出一种原始而自然的氛围,让人仿佛置身于一个充满故事的空间中。红色格子砖的点缀,为整个空间增添了一抹亮色,使得就餐环境更加活泼生动。金属板的运用则提升了空间的现代感,与瓦片的古朴形成鲜明对比,营造出一种时尚与传统交融的氛围。
在这样的空间中就餐,不仅可以品尝到美味的烧烤,还能感受到一种独特的文化氛围。就餐者仿佛可以穿越时空,与过去的历史对话,同时又能享受到现代生活的便捷与舒适。这种就餐体验既让人放松愉悦,又让人难以忘怀,成为一次难忘的用餐之旅。
设计总结:
微醺串吧的室内设计在风格、布局、灯光色彩以及细节处理等方面都表现出了较高的水平,既美观又实用,为顾客提供了一个既舒适又愉悦的用餐环境。墙面装饰与空间风格相得益彰,细节之处展现出品牌的精致与用心。这些亮点共同构成了微醺串吧独特而迷人的空间魅力。
本文的设计构思由AI优化处理
坤薪整装服务范围介绍:
设计模块-管理模块-施工模块-材料模块-设备模块-家具模块-广告模块-软装模块/八大模块一站式服务餐饮企业
· END ·
客服
消息
收藏
下载
最近















