查看完整案例

收藏

下载

翻译
Architect:Ateliê Monolito
Location:Asa Sul, Brasilia - Federal District, Brazil; | ;View Map
Project Year:2024
Category:Apartments
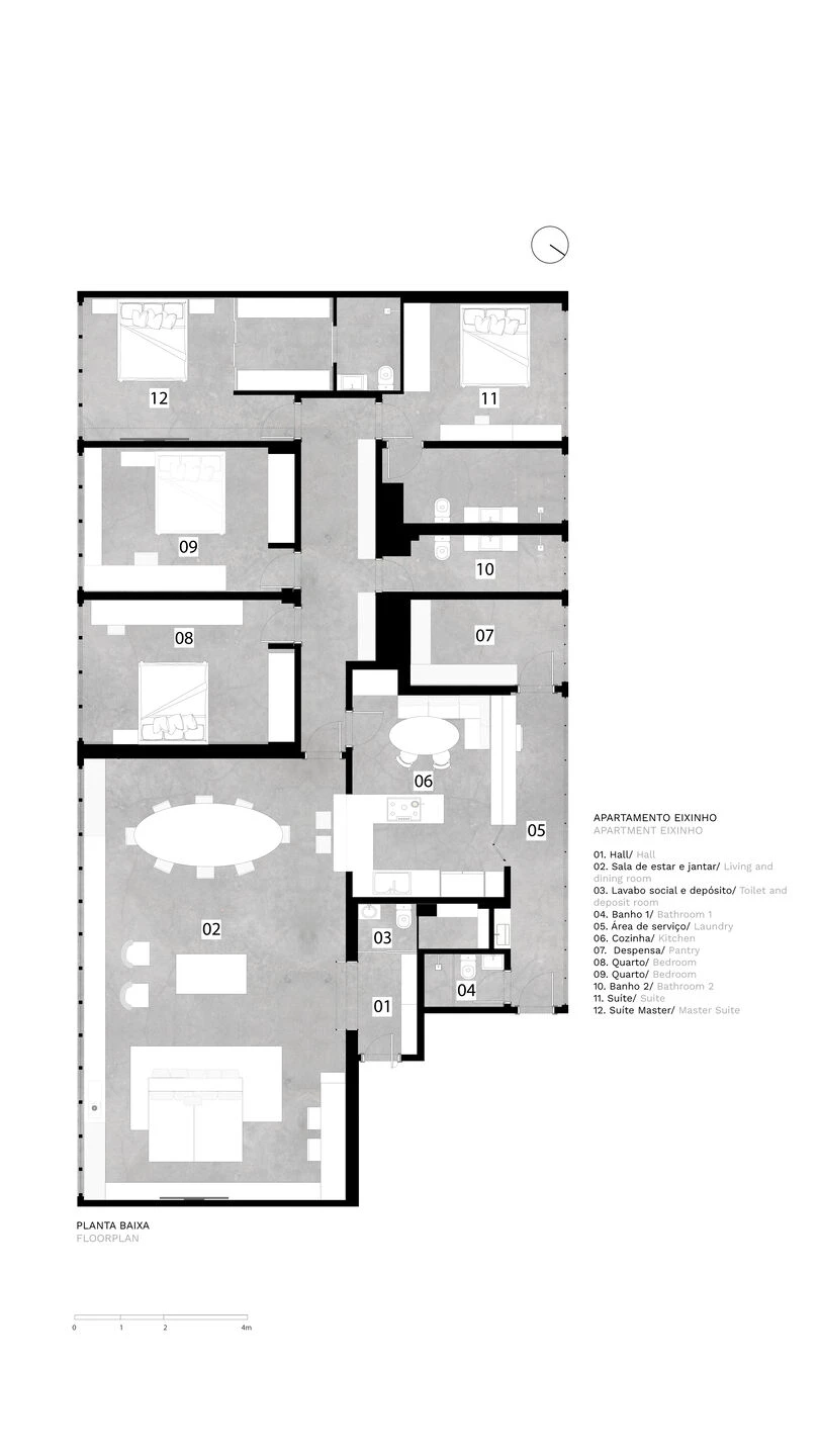
Located facing the Eixinho (a marginal road that connects to the city center of the Pilot Plan) in Asa Sul (Brasília), the apartment, affectionately nicknamed Eixinho, harmonizes the nature of the Brasília savannah with the city's urban life.
A welcoming atmosphere, filled with greenery and natural light, invites residents to integrate the interior space with the exterior view, creating a unique living experience.
To preserve the apartment's original features, the parquet flooring was restored, adding a touch of authenticity and warmth to the environment. In the bedrooms, except for the master suite, the original wardrobes were maintained and restored, with the doors lacquered in white, blending retro charm with contemporary design and creating unique, personalized spaces. In the master bedroom, a closet was created and separated by a metal frame with fluted glass, providing greater privacy when using the closet.
In the entrance hall, hydraulic tiles, with their retro aesthetic, combined with metal elements of the portal, add a touch of nostalgia and modernity, while the minimalist architecture seeks visual and functional harmony. The metal portal echoes the design language of the kitchen, where the metal frame in front of the living room becomes a versatile window that opens or closes as needed, maintaining the kitchen's privacy with fluted glass.
The kitchen, the true heart of the home, is an ode to retro with a contemporary touch. The German corner transports residents to a bistro of bygone times, while the fluted glass frame divides the kitchen and service area, providing practicality and functionality without sacrificing aesthetics.
In the spacious living room, the island sofa offers layout versatility, inviting residents to enjoy moments of relaxation in front of the TV, gather in a social setting, or sit on the bench that extends along the entire room with a view of the Eixinho, which can also function as storage.
Integrating the greenery of plants into the interior space, the Eixinho Apartment becomes a cozy and inviting refuge, ideal for moments of relaxation and socializing. In the apartment, the past intertwines with the present, creating a unique and charming space that celebrates the essence of residential life in the heart of Brasília.
▼项目更多图片
客服
消息
收藏
下载
最近




























