查看完整案例

收藏

下载
项目名称:印度k屋
位置:印度
设计公司:工作室设计N领域
和LLP——一个现存的家庭住宅,位于印度孟买郊区的一个热带村庄,被赋予了一个新的现代形象和适合热带环境的附件。其现代线条和新立面将旧结构无缝转化为新的组合。和LLP-该项目,当它进入工作室,面临的挑战是保留原来的结构梁-柱-板。虽然原始空间在规模和比例方面有潜力,但它们缺乏热带设计的包容性。该结构坐落在场地上,忽略了它的景观,没有创造视觉愉悦或使内外空间更加互动的参与。工作室承担了这个有趣的挑战,在结构允许的情况下,尽可能多地打开这个计划。此外,该设计试图将自然光、通风和自然融入到足迹中,而不是将环境或景观视为只能从室内观察的视觉效果。
新的设计将旧的结构包裹起来,使两者无缝地融合在一起,这样居住者就不会意识到新与旧的区别。ADNDLLP-现有的家庭农舍是非常传统的设计,创建于90年代初。窗户的尺寸比墙壁小得多,栏杆的高度也小得多,室内空间很少甚至没有与外部景观的连接。身处热带,设计就是在阴凉处享受户外。包容性的想法是缺乏的,所以我们在工作室首先开始探索外壳结构。为了保留梁-柱-板结构,我们打开了整个房屋的墙壁。下一个挑战是确保需要与旧程序一起调整的新程序在设计上无缝衔接,以便最终输出看起来集成良好。下层的体量由轮廓石板处理,上层结构由木制的brise soleil包裹。石头中较低的质量被认为是一个种植在大自然母亲和地球上的结构。坐在顶部的轻槽屏幕体积赞扬了较低的质量,反映了该地区所需的热带建筑。大型开放式双阳台向景观和游泳池开放,允许室内到半室外到室外空间的平滑整合和过渡。这成为房子的核心,因为它遮挡了热带的阳光,但从景观中捕捉到了自然的微风,同时允许进入大自然。门廊位于一个巨大的岩石装置上。通向主入口的墙壁也引导人们进入会所的附属建筑。作为设计师,当一个项目被介绍给我们时,我们的第一反应是评估现有的地形、现有的结构以及植被。当我们第一次参观该场地时,我们意识到,尽管现有的结构在设计和包容性方面还有许多不足之处,但从整体来看,这并不坏。作为设计师,我们采取了一种更敏感的方法来保留现有结构的外壳状态,并决定新的设计必须敏感地导航现有的外壳结构,并在其上并列新的设计,这样,总的来说,设计感觉完整和无缝。通过可持续性和包容性的方法,我们解决了客户的需求,并创造了一个与周围景观对话的设计,使室内室外过渡和空间很好地融合在一起。ADNDLLP-设计尊重其原始结构,而不是采用全权委托的设计方法,工作室寻求采取一种更具包容性的方法,保留原始结构,并在周围和内部进行建设。更重要的是,这个设计体现了对所用材料的敏感。天然石头、木鳍、石灰涂料/石膏都是可持续的做法,半径为5公里,这使得该结构具有更可持续的敏感性。
印度k屋外部实景图
印度k屋外部实景图
印度k屋外部实景图
印度k屋外部实景图
印度k屋内部实景图.jpg
印度k屋内部实景图
印度k屋内部实景图
印度k屋内部实景图
印度k屋内部实景图
印度k屋内部实景图
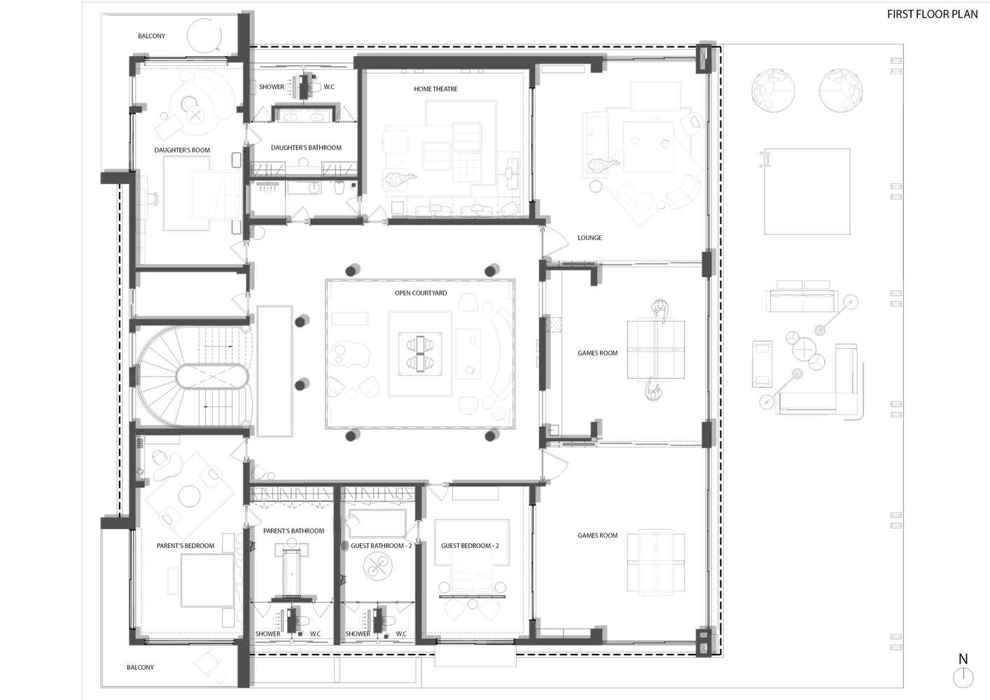
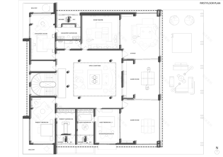
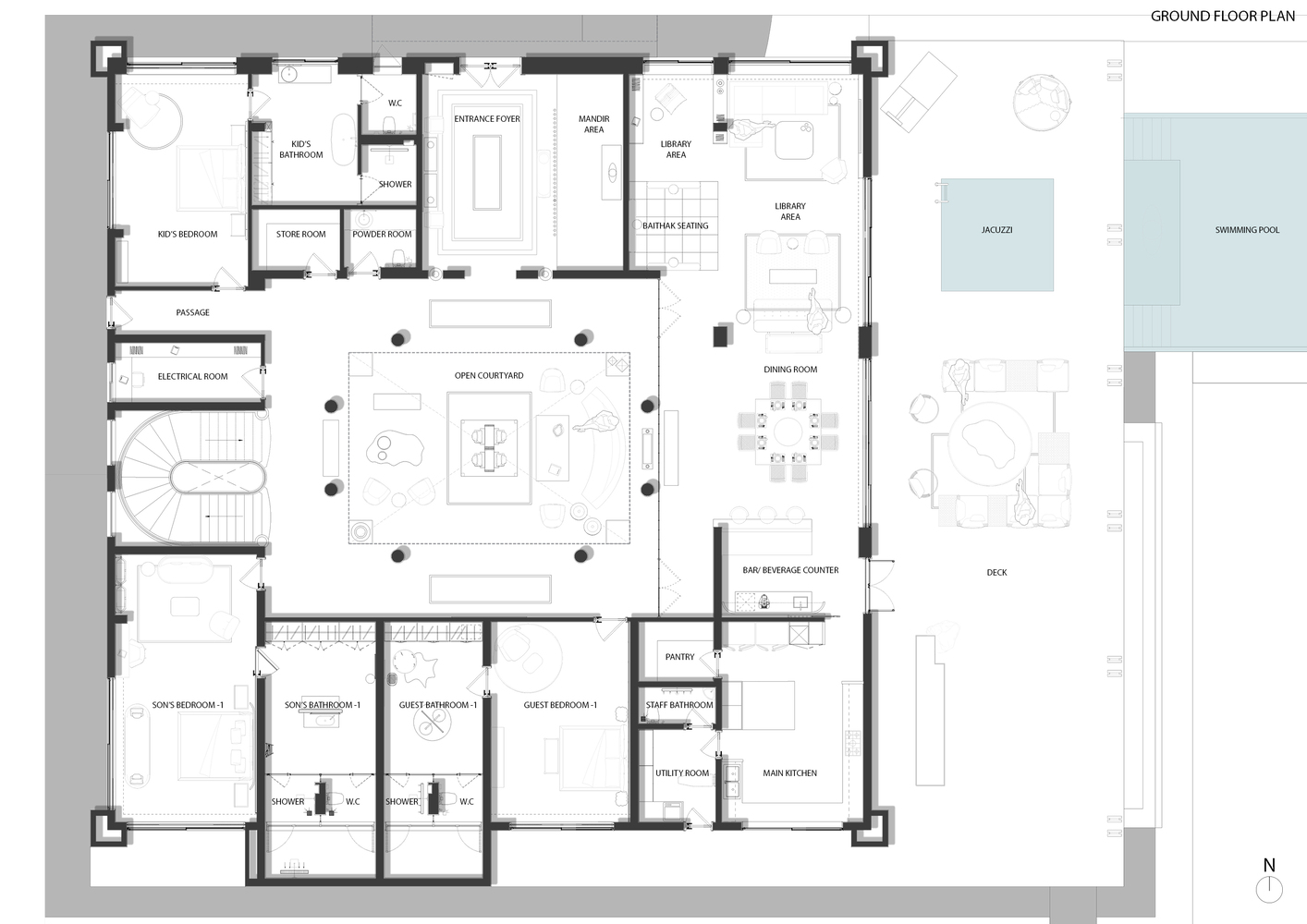
印度k屋平面图
印度k屋平面图
客服
消息
收藏
下载
最近














