查看完整案例

收藏

下载

翻译
Architects:Laurent Troost Architectures
Area:359m²
Year:2022
Photographs:Susan Valentim
Manufacturers:Aço Manaus,Marcos Ruiz,ROCHA Aluminium,SVI,USEMIX
Lead Architects:Laurent Troost, Gabriela Belfort
Architects Of Record:Raquel Brasil, Mitzi Sa Ribeiro, Nicole Dias, Ailyme Bursche
Landscape Desgin:Hana Eto Gall
Structural And Hydraulic Engineering:TECPRO Projetos
Builders:Helena Rabello Daniel Herzson
Program :Co-living
City:Manaus
Country:Brazil
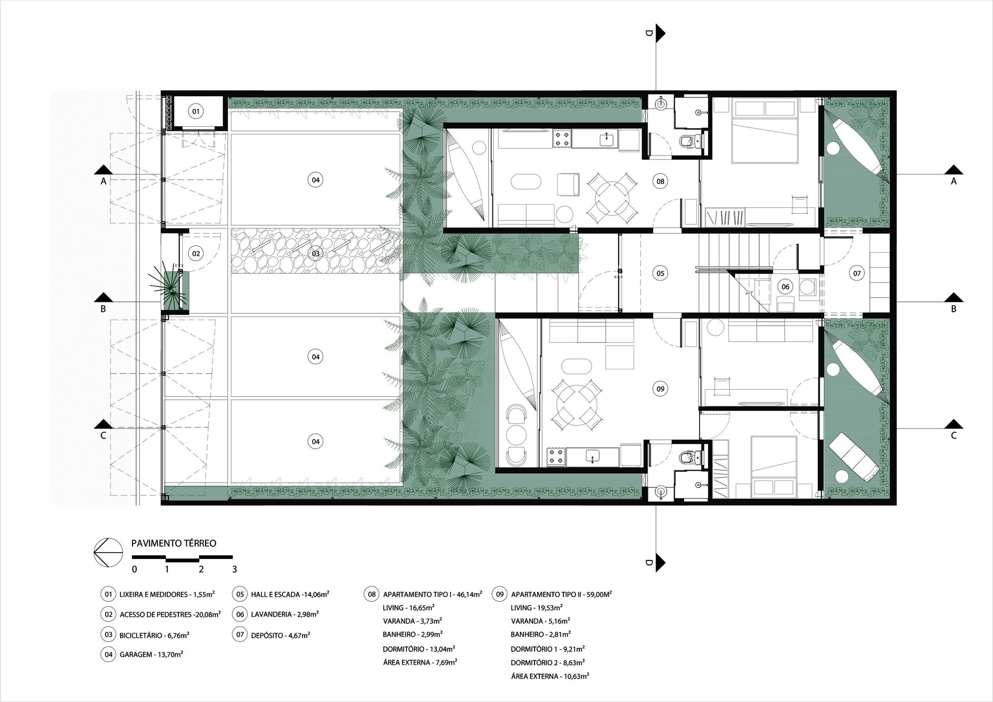
Text description provided by the architects. Located one block from the iconic Teatro Amazonas, in the heart of Manaus' historic center, INGÁ Co-Living space introduces a new community living model integrated with nature. Aimed at encouraging private investment in the city’s Historic Center, this small development, consisting of three one-bedroom apartments (43m²) and three two-bedroom apartments (52m²), was designed to be a living building "enveloped" by native plants and unconventional edible plants (PANCs).
With large sliding glass panels, the apartments are spacious and offer great flexibility of use, accommodating a diverse range of residents. Additionally, all rooms benefit from cross-ventilation and are protected from the sun by the shadows cast by each apartment block on the other. Finally, a sense of community is ensured through shared amenities: a communal laundry, shared storage, a community garden, a barbecue area, and a deck with a shower and views of the Teatro Amazonas. Removing service areas from the residential units ensured a highly compact and optimized floor plan, allowing for high efficiency in the development.
In an urban, under-qualified environment and on a street devoid of trees, the project stands out for its transparent ground floor, engaging with public space and abundant vegetation as a statement in favor of greenery in historic centers. The project's vitality, aiming to enhance a center needing small-scale actions and investments, extended beyond the site's boundaries through improved public lighting and promoting urban art that adorned neighboring walls, featuring invited Amazonian artists Curumiz and Wira Tini.
Project gallery
Project location
Address:Rua Marçal 116, Centro, Manaus, Brazil
客服
消息
收藏
下载
最近










































