查看完整案例

收藏

下载
项目名称:
阿记烧烤
项目地点:
山阳店
项目面积:
750m²
创作时间:
2023年
设计公司:
子然设计
合作内容:
空间设计 · 系列
品牌介绍:
阿记烧烤是一家知名的烧烤品牌,隶属于宝鸡阿记餐饮文化管理有限公司,成立于 2014 年。品牌以烧烤为主打特色,同时提供各类江湖小炒与特色凉菜。其店内的烤疙瘩筋、红柳肥牛、风干牦牛肉、蒜香黑椒牛肉、阿记风琴烤饼、阿记特色烤鱼等菜品深受消费者喜爱。阿记烧烤采用纯木炭烧烤,提供叫卖式服务,有着 23 年烧烤生涯的“阿记烧烤”在秉承优秀烧烤文化的基础上不断创新烧烤制作工艺、秘料配方以及服务方式,形成了自己独有的一套烧烤制作工艺及服务流程。
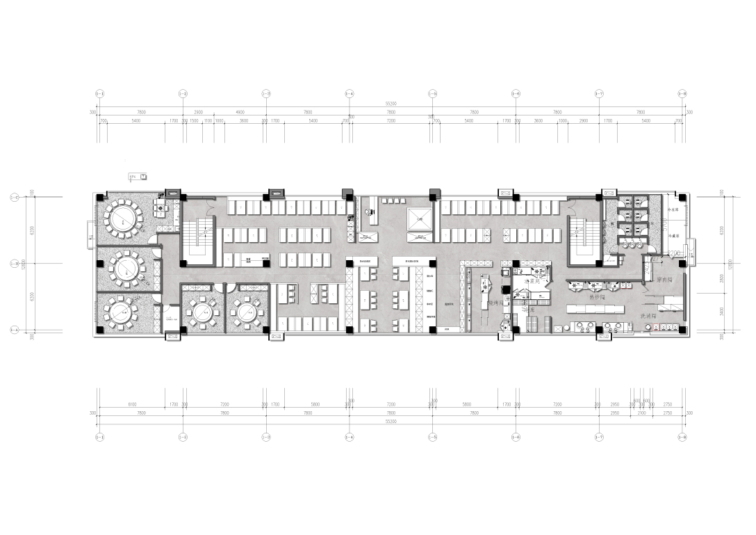
平面图:
顾客从正门踏入,首先映入眼帘的是布局合理的收银区,紧接着便能轻松移步至酒水区挑选心仪的饮品。大厅用餐区分别位于左右两侧,顾客就座极为方便。位于中心位置的厨房采用明厨设计,大大缩短了上菜路径,确保菜品快速送达顾客餐桌。而较为安静的区域设置了包间,为商务聚餐提供了良好的隐私保障。整个平面动线规划流畅自然,充分考虑了顾客的行动便捷性和不同用餐需求,营造出高效舒适的用餐环境。
设计亮点:
阿记烧烤的设计旨在营造现代简约又不失传统新中式韵味的用餐环境。以通透的玻璃外立面展示内部的热闹氛围,通过简洁的灯条和 logo 吸引顾客。内部空间布局合理,明厨设计让顾客放心,酒水区和收银区位置便捷。
效果图展示:
二楼的外立面全为玻璃,未做特殊造型,简约大气。灯条和 logo 的展示在夜晚格外醒目,吸引路人目光,同时让室内空间显得通透明亮。
一踏入阿记烧烤,首先映入眼帘的收银区与酒架展示令人眼前一亮。红色肌理漆的墙面,质感独特,散发出热情而浓郁的氛围,仿佛在热烈地迎接每一位顾客。蓝色背光字的点缀,在红色背景的映衬下,形成了鲜明而迷人的色彩对比,增添了一份时尚与神秘。旁边的酒水展示琳琅满目,在灯光的照耀下,瓶身折射出迷人的光芒,让人瞬间感受到这里丰富的饮品选择。整体环境营造出一种既热情又时尚的氛围,让人对即将开启的美食之旅充满期待。
通透的书架隔断既划分了空间,又不影响视线的延伸,让人感觉宽敞明亮,毫无压抑之感。顶面的镜面不锈钢反射增加了空间的纵深感,矮隔断的冲孔板设计则在水平方向上丰富了层次,使整个用餐环境富有变化。
暖色灯光的点缀,搭配红色的墙面肌理漆,营造出温馨的氛围。老榆木的桌面散发着古朴的韵味,让人仿佛置身于家中,倍感舒适。
包间以硬包为主,暖色中点缀红色,营造出温馨而私密的氛围。精心设计的灯光,使空间光线柔和均匀,为商务聚餐或亲友聚会提供了舒适的环境。内部装饰简洁大方,注重细节处理,提升整体品质感。商务聚餐的包间保证了隐私性,而大厅用餐区又能让人感受到热闹的氛围。这种私密与共享的完美结合,满足了不同顾客的需求。
主要材质介绍:
阿记烧烤店内的材质运用独具匠心,给人留下深刻的印象。墙面的红色肌理漆仿佛跳动的火焰,赋予整个空间无尽的热情与活力,让人心情愉悦。水泥板的展示带来工业风的质朴,增添了一份粗犷与豪放。老榆木桌面那古朴的韵味,使人仿佛能触摸到岁月的痕迹,沉浸在历史的温暖中。顶面的镜面不锈钢巧妙地增加了空间感,让环境更显开阔。而包间的硬包材质,不仅提升了舒适性,还保障了隐私性,让人在其中能安心享受美食与交流。
设计总结:
整体设计融合了现代与传统元素,色彩搭配协调,材质选择注重质感与耐用性。充分考虑顾客的用餐体验和空间的功能性,打造出舒适、美观且具有特色的烧烤餐厅。
本文的设计构思由AI优化处理
· END ·
客服
消息
收藏
下载
最近















