查看完整案例

收藏

下载
01对话湖山
麓隐青竹湖,位于长沙市区北部,地块西北侧整体沿太阳山脚分布,周边被湖泊、林地、山脉包围。项目整体定位为占地逾千亩的定制型私享生态社区。
▲ 麓隐青竹湖项目区位
▲ 麓隐青竹湖控规图
▲ 麓隐青竹湖整体鸟瞰图
02 自然秩序下的低密定制墅区
本次设计范围为逸山组团,三面环景,纵享自然,与景无界。地块地势相对平坦,整体南低北高,场地已经被既有道路切割成若干不规则形状地块。
相较于城市中的高密住区设计,自然环境的独特性让设计必须深度探索与“自然”的关系:如何敬重自然、利用自然、让栖居“复得返自然”,从而建立人与自然关系的沟通介质,是本项目需要解决的设计课题。
一方面,要让建筑契合场地态势,呈现出与自然和谐的秩序感,既不过于跳脱,也不过于呆板;另一方面,需因地制宜地经营每一户的高程关系、入户动线和景观视野,处理好户间的私密性问题,避免不良视线干扰。
▲ 逸山组团基地高程分析
03 复杂用地下的综合平衡开发
山地别墅的产品选型、组团逻辑和整体排布环环相扣,定义了整个项目的基调和品质,而舒适性、用地效率和产品力似乎是一个不可能三角。如何在落地项目中尽可能进行平衡,达到“既要,又要”的效果,是本项目面临的最大课题。设计团队结合案例分析和地块特征,对这个复杂问题进行了研究。
首先是产品选型和模块间距控制。L 型合院和线性联排是别墅单体的主流产品,在确定组团内、组团间建筑间距的基础上,我们对两种单体分别进行线性排布和围合排布,推演出四种组团产品排布模式,梳理出不同模式的特征。
▲ 产品选型和模块间距控制
▲ 四种规划模式横向对比
之后,在对四种模式的强排中,我们发现 L 型合院围合方案在规划形态上优势明显:三面环水的基地形态,让这种布局在滨水沿线将周边景观最大限度进行利用,而公共绿地的形态,也更为接近自然聚落的公共空间。此模式在另外两个维度上的表现也没有明显劣势。
▲ 用地强排方案对比
设计团队进一步结合两种路网布局对该方案进行了深化,更加贴近原始控规条件,归家体验更为顺畅的环形路网方案被最终选定。综合比选而非简单对比规划指标,让方案设计更加契合场地特质,呈现鲜明的在地化属性。
▲ 两种路网模式排列方案
04定制思维下的设计推演
/ 规划定制:错落有致,顺势而为 /
对高差的处理首当其冲,且需要将整个场地切割成若干适合建筑布局的地块。标高设计尽可能地顺应原始地形,减少土方开挖对山体的破坏。因地而生、随山就势分割为多级台地,台地之间通过台阶巷道串联,不同高差的台地也为不同组团提供了宽阔的视野与景观条件。
▲ 逸山组团台地划分
32 种不同面积段的 L 型合院的有机组合,以随机灵动的居住组团嵌入地块,与环境有机共生,组团之间形成更大层级的聚落空间。最终逸山组团呈现出丰富的建筑形态、群组关系及空间体验,是在对无数种可能性进行尝试之后,最契合于这片场地的答案,且自成风景。
▲ 逸山组团 32 个组团排列
▲ 逸山组团总平面图
▲ 逸山组团鸟瞰图
▲ 逸山组团实景鸟瞰
/ 空间定制:起承转合,归家礼序 /
“横街纵巷”的外部空间串联起不同组团,形成连续、流动、贯通的社区内部交通联系与公共空间。进入组团都要经过组团入口,到组团景观,再经过组团步道和景观巷道,最终来到合院院落。五重空间的转换,在自然形态中融入归家礼序。精心组合拼接起来的 “C”型及 “E”型组团,为每户的私家院落带来丰富多样的空间、互不干扰的景观视野;合院组团巷道空间充满趣味性、互动性,提供邻里交往的空间。
▲ 多层级的巷弄空间
▲ 组团模式分析
▲ 组团空间实景
/ 产品定制:多维庭院,妙起自然 /
产品设计融入精细化与情境化体验,使自然不只是可观之“景”,更是可感之“境”。一宅多院的院落形式,通过底层不同标高的多重院落、上层露台、阳台等复合空间,模糊室内外边界、让室内外空间双向延伸,让每户都拥有“有天有地有院子”理想的生活方式,兼具多层次、独立性和度假感受。
▲ 多维立体庭院空间
▲ 院落、露台实景
经典户型超过 6m 的超高挑空,让室内空间通透舒朗;无边景观阳台、超居室星空露台,双层可变地下室,让别墅空间自由百变,提供更多生活的想象。
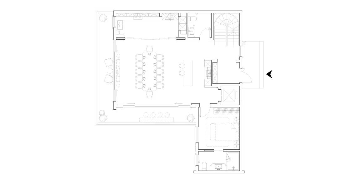
▲ 1F 平面图
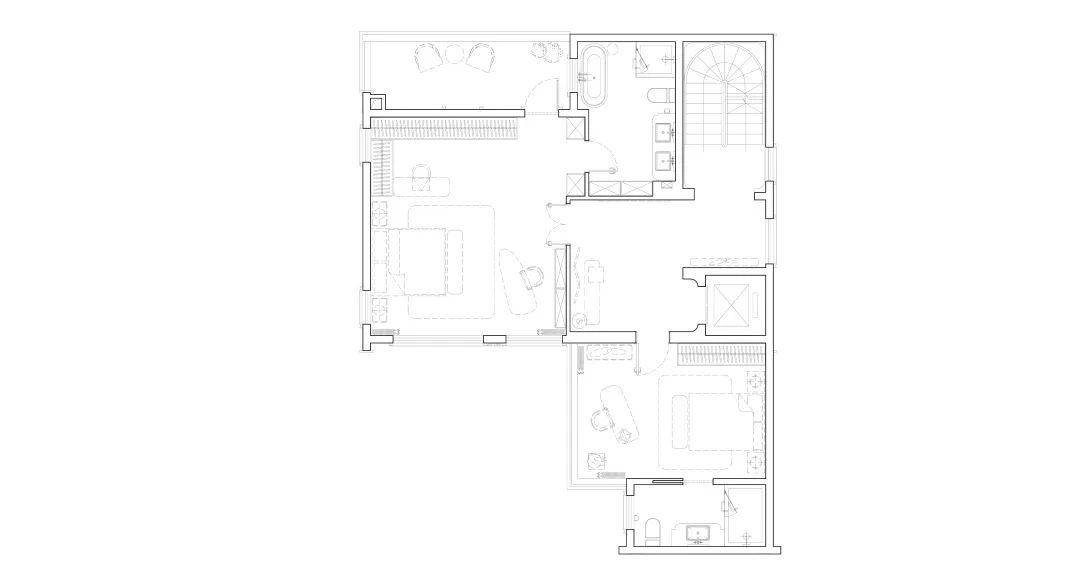
▲ 2F 平面图
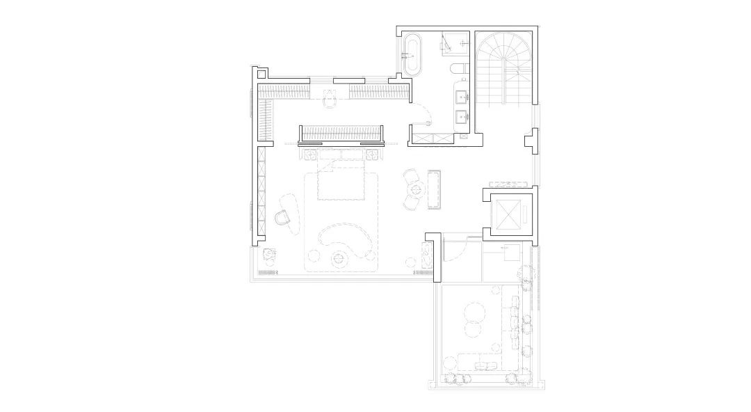
▲ 3F 平面图
▲ 室内空间
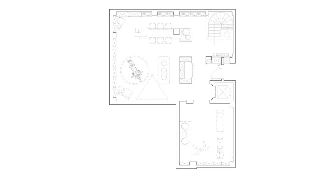
▲ -1F 平面图
▲ -2F 平面图
▲ 地下室内空间
项目档案
开发企业:湖南天景名园置业有限责任公司
建筑设计:PTA 上海柏涛
设计团队:柏尚创作中心·柏尚第九设计部
设计主创:陈凌,梅宇峰,翁金鑫
团队成员:张晶,赵禹,于静,杨毫丰
施工图院:湖南悍马建设工程有限公司
景观设计:上海魏玛景观规划设计有限公司
室内设计:上海汉敦建筑装饰设计工程有限公司
项目地点:中国·湖南·长沙
用地面积:96422㎡
建筑面积:113085㎡
设计时间:2022 年 4 月
摄 影:日野
客服
消息
收藏
下载
最近





































