查看完整案例

收藏

下载
现代空间
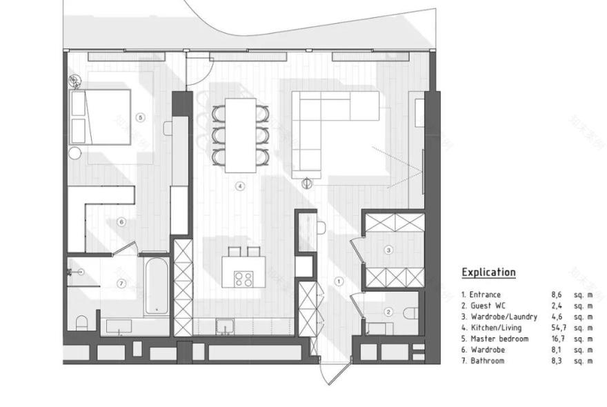
Daria Babii新作,面积104㎡现代家居,位于乌克兰基辅,设计师以现代简约为定位,简洁流畅,融入了自然的元素,大理石的硬朗与木饰面的柔软细腻相结合,丰富的纹理营造了空间的质感,塑造了惬意与舒适的居住空间。
平面图
▽
屋主追求极致的平静与永恒的优雅,设计师“少即是多”的设计理念,结构精简没有过多的修饰,从而打造出一个彰显个性与品位的家。
门厅入口,整个家居空间中极具品味的地方之一,应力求突出表现。设计师充分考虑到其设置的基本功能性,在空间材质的处理上采用了高级灰+深木色的搭配,红色的换鞋凳点缀,给人的感觉要自然而轻松。
客厅与餐厅是家庭休闲娱乐的重心,空间干净澄明,视野一览无余。灰白木的简洁色调让客厅空间看起来赏心悦目,落地透明玻璃将视野完全打开,屋外的美景尽收眼底,采光也更加的充足。
厨房既开放又相对独立,这里聚拢的烟火气,看到的是一个真实、鲜活、充满了人居温度的居家空间。
大圆灯的运用意喻圆满,不同元素的交融汇集,温柔的艺术线条将舒适的生活,完美勾勒出来。
电视背景墙集美观与实用于一体,形式简约、艺术感、人文性,这是空间向我们传达出的意境;将独特的设计风格展现的淋漓尽至,每个细节都是几近完美的设计。
浅灰色卫生间,给人感觉简单、时尚、大气,然而结合居住者的生活习惯及空间的规划布局,悬挑式的台盆设计更美观方便打理,条板的设计又可以增加部分收纳功能。
主卧现代简约风格白灰与木质相搭配整体低调又高级,运用线形几何灯营造柔和的氛围。
在床尾处,结合书柜和卡座,形成一个角落里的安静的阅读和放空的空间。
没有过多的装饰,利用比例、光影、明暗营造空间的质感和氛围,挑动极致的视觉感官。
精致舒适的衣柜,流动的空间结构及构筑,分区合理,让设计与生活完美融合,满足高标准的物质生活和艺术品味。
目前比较风靡的日式四分离把每个功能进行区分,然而结合居住者的生活习惯及空间的规划布局,放弃了纯正的日式四分离设计,将如厕、淋浴、浴缸进行了三式分离,幸福感也直线上升。
设计师
Daria Babii
Daria Babii,非常有才华的设计师,对使用天然材料,不寻常的纹理以及表面触感舒适的现代室内装饰感兴趣,擅长精致优雅的细节设计,注重室内外空间的完美融合,创造美丽舒适的空间。
客服
消息
收藏
下载
最近


















































