查看完整案例

收藏

下载
和其光,同其尘,是谓玄同。和光同尘,表达了不露锋芒,清静无为的哲学态度。
如设计师潘自立对家的理解一样:家是你步入那一刻便卸下周身防备与胜负计较,只愿与家人和乐相处,共享爱与温暖的居所。由此,设计师对于私宅的设计处理,一如“和光“二字一般,收敛锋芒,温润沁人。
01 SPIRAL STAIRCASE 旋转灵动
极具艺术美感的旋转楼梯贯穿四个楼层。明暗交错,光影重叠,空间的层次与联结在洄旋拾级中得以充分感受。
拆除原先的墙体,打破空间的阻断,让视线延申,再延申,最终触及到空间美学的本质。
盘旋而上,流畅弧形,优雅性感的曲线伫立在这个圆形空间,不得不让人钟情于这种弧形的美。好像含苞欲放的花又像斑斓的螺旋贝壳,这是一种平凡的极致之美。
02 LIVING ROOM 光影婆娑,溜进屋内的阳光与艺术气息,轻灵、随意的室内姿态便呈现眼前。客厅和谐统一,整个家居氛围趋于平和闲雅,闲渡浮生半日。艺术是浪漫的,在这里也是令人感动的。
在光影流动的空间意境中,光挥洒在白墙上,流淌在艺术品中,仿佛轻快美妙的旋律在流转,从中得到了自然治愈的力量,感受宇宙的恩赐。
03LEISURE AREA
闲茶禅致
悠远的氛围不仅仅是远方景物,还有万物营造的古朴和谐,模糊了人与自然的真正界限。
院,不被传统定义,有的只是无尽叠进的层次与多维指向,和无限放大的沉浸式感受。
身一处清幽,斟一盏芳名,看过高天云谈,听罢凤鸣鸟啼。观空亦空,观闲亦闲,以这个雅致脱俗的空间为道场,清修一颗温润如玉的心。
生活的形态,在这个空间里呈现出更多的可能。亲密关系,或各有独立,或互相交汇。居者在这个空间能享受到最大程度的身心自由。
生活的场景邂逅初春的生气盎意。大抵又是被随手折下的一抹春绿,这充满设计感的现代极简空间被调和,再稀释,重新糅合,设计力量与生活美学在和光馆实现完美共生。
迂回与敞开,收与放,除色彩的反差之外,空间本身的结构亦是遵循这种反差。透过廊道的暗与房间的明,窄与松,不断地强调空间向外的感受。
04 STUDY BEDROOM 诗和远方 腹有诗书气自华,胸怀文墨怀若谷。或许不是人人都可以拥有远方,但一定可以常伴书旁。世界太过喧嚣,为了安放灵魂,将内心的纯粹衍生进了这个书房空间,沉稳而不张扬,借以对抗凡尘扰扰。
灯光与旭阳,明与暗。通过压暗室内的色调去将视线引领至窗外的景,以及穿透而来的光,物象随时间变换的节奏落于平面,如同一曲静默的乐章。
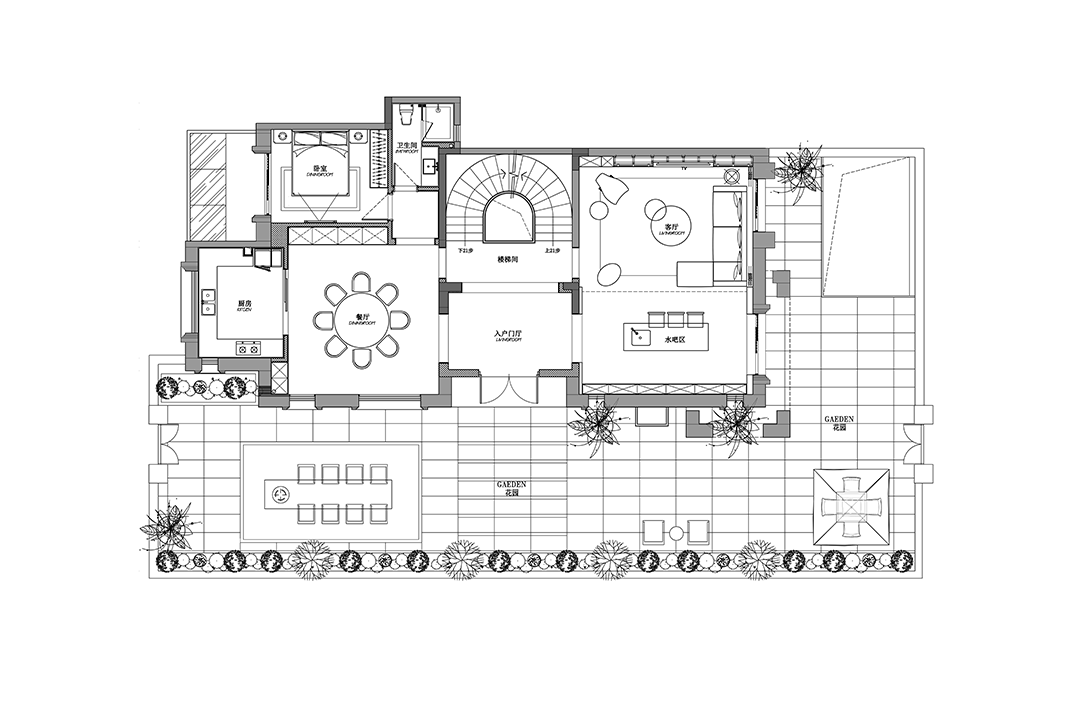
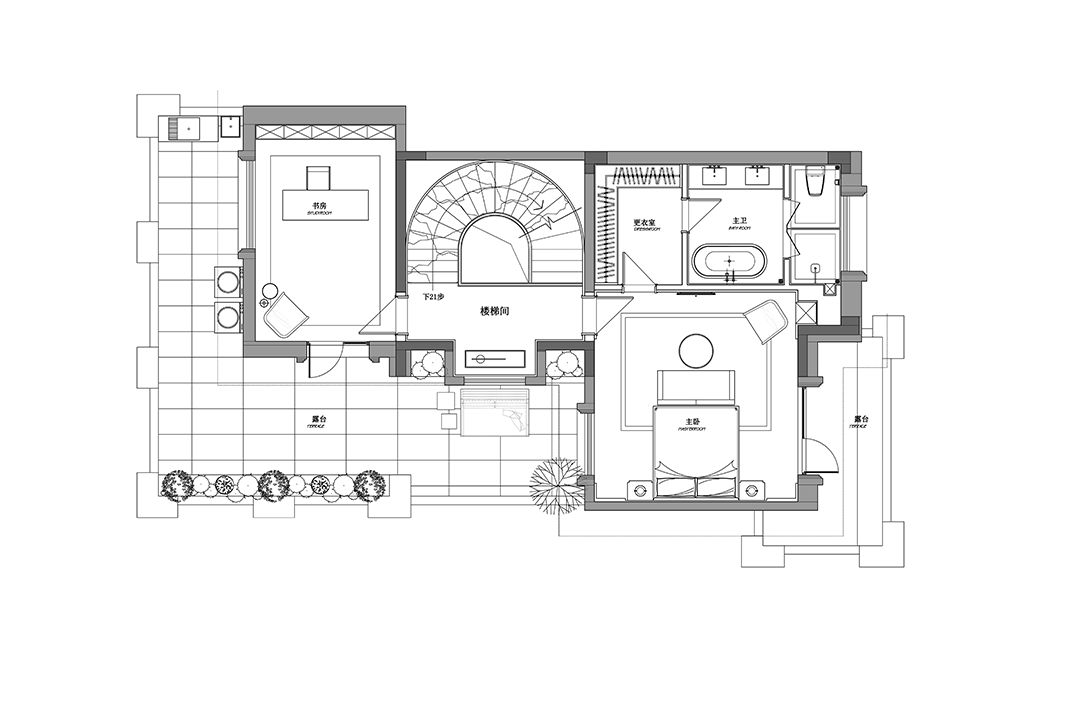
05ANALYSIS DIAGRAM
分析图
-1F 1F 2F 3F 平面图
- 项目名称 - 平潭如意半岛
- 设计机构 - HHD-恒合立创设计
- 设计总监 - 潘自立 林祥棋
- 项目面积 - 900㎡
- 项目地址 - 福建 福州
- 项目摄影 - 周跃东
客服
消息
收藏
下载
最近







































