查看完整案例

收藏

下载
与典型的双住宅不同,该住宅项目包括三栋互相独立的房屋,它们与私人的外部空间相连,旨在保护隐私,使人们能够舒适地享受户外活动。
In a different approach to the typical set of twin dwellings, the proposal presents three isolated houses that favor the connection with the private exterior spaces, in an intention of privacy that allows to enjoy the outdoors comfortably.
▼项目概览,project overview©Ivo Tavares Studio
▼住宅庭院,courtyard©Ivo Tavares Studio
▼街景,streetview ©Ivo Tavares Studio
▼主立面,main facade©Ivo Tavares Studio
▼住宅庭院,courtyard©Ivo Tavares Studio
▼沿街立面,facade facing the street ©Ivo Tavares Studio
这一提案是为了展现传统葡萄牙建筑的原型,并在立面设计上采用现代手法。这种设计方法在楼板的设计中得到了充分体现,在街道的尺度与房屋的尺度之间建造了一种联系,减轻了对周围环境的影响。
The proposals intend to depict the archetype of traditional Portuguese architecture with a contemporary approach in the way the elevations are explored. This approach is notorious in the design of a slab that makes it possible to create a relationship between the scale of the street and the scale of the houses, mitigating the impact on the surroundings.
▼立面上凸出的楼板设计,the design of a slab in the elevation©Ivo Tavares Studio
▼立面上凸出的楼板设计,the design of a slab in the elevation©Ivo Tavares Studio
这种姿态使住宅像景观的一部分一样缓缓升起,而非不和谐的元素,成为整体的一部分。
This gesture allows the houses to rise as a part of the landscape and not as a dissonant element, forming part of a whole.
▼景观与建筑相结合,combination of building and landscape©Ivo Tavares Studio
▼入口,entrance ©Ivo Tavares Studio
▼一层空间,ground floor space ©Ivo Tavares Studio
▼厨房,kitchen ©Ivo Tavares Studio
▼厨房局部,part of the kitchen ©Ivo Tavares Studio
▼楼梯间,staircase ©Ivo Tavares Studio
▼楼梯间局部,staircase ©Ivo Tavares Studio
▼楼梯间,staircase ©Ivo Tavares Studio
▼庭院夜景,courtyard at night©Ivo Tavares Studio
▼夜景,night view©Ivo Tavares Studio
▼地下室平面,basement plan©ESQUISSOS
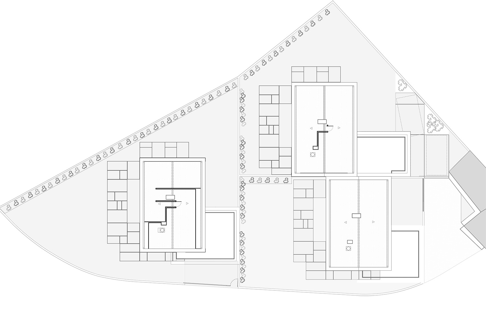
▼一层平面,ground floor plan©ESQUISSOS
▼二层平面,first floor plan©ESQUISSOS
▼露台平面,terrace plan©ESQUISSOS
▼屋顶平面,roof plan©ESQUISSOS
▼剖面,section©ESQUISSOS
Project name: Casas BD / BD Houses
Architecture Office: ESQUISSOS – Arquitectura e Consultoria
Main Architect: Marco Ligeiro
Location: Sintra, Portugal
Year of conclusion : 2022
Total area: 580,25 m2
Builder: Solmetrik, Lda
Inspection: Eng. Alexandre Ferreira
Engineering: Eng. André Pardal
Landscape: Team Garden, Unipessoal, Lda
Structure Contractor: Pictocubo, Lda
Acoustic Design: Eng. André Pardal
Thermal Engineering: Eng. André Pardal
Architectural photographer: Ivo Tavares Studio
客服
消息
收藏
下载
最近































































































