查看完整案例

收藏

下载
麓湖香林堤私宅
LUXELAKES
项目类型 | 住宅空间
-元素的世界-
居住场所是一个生命体在其他生命体上的凭证,比如石头由地质变迁所形成,腐蚀是时间作用在事物上的证据。关于这个场所,我希望你们能用不同的角度来看待,因为在这里发生的事情,是由人类主导的场合。
总之,它只是要我们来重新审视这个世界,与我们正在共同生活的科技世界是如此的不同。重新审视这个由元素所组成的世界。原本黑暗的生命体都是作为参观者,生活在这个由元素所组成的世界里,我想站在空间的外部,重新观察这个我们每个人都熟悉,亲切且主观的环境。
-停顿-
我有一个偏见,要判断一个空间的美学功底,往往要看他对省略、留白和停顿的处理。就像在电影里,每一次被打动,都发生在导演对停顿的处理中。我们似乎总是把超越语言、无法言说的情感,交给了时间的暂停。
为什么设计的初级状态,总容易陷入所谓的“自嗨”?原因在于“错误的认为,空间是一种单项的自我表达”。实际上,当我们把空间抛给居住者,是为了引起反应。而这种反应,只能发生在居住者和空间之间交流通道的往返中。
如果我们的设计,只是如幻灯片一样闪烁在他人面前,那不过是单纯的给视网膜提供了刺激。而停顿,则似乎在诉说“先别往下看了”,“想想吧”。为什么停顿,是我们做设计的人,认为是节奏中最美的成分?那是因为每一次停顿,既是过往的汇聚,又是下一瞬间的预兆;既是前面一系列感受的“果”,又是后面即将感知的“因”。
停顿不是沉默,不是空白,不是死了的心情,而是内心生活中最复杂的情绪。设计常常会出现过度演绎,而我们却希望自己能学会停顿。因为设计即便做的再好,也比不上居住者自身想象力的参与,和多情的加戏。
每一次我们等来了周末,等来了我们可以去远方的节日,让我们在生活中得以停顿,是为了获得喘息。我们在设计一个居所的时候,总是焦虑着别人的不够耐心,而不敢停顿。我们内心的声音总是在告诉自己,“别停下”“停下你就什么都不是了”。
当我们在创作中,敢于构建停顿,那是因为我们相信前面的内容已经建立起了期待,这是停顿得以成立的前提。人们在面对纯粹的虚空,是无法引起任何联想的。只有在时间的张力之下,停顿、省略和留白才有意义。我们在生活中停顿,是为了抓住生命推着我们踉跄向前的命运之手,把世界归还给我们。而我们在设计中的停顿,是为了少说一点、后退一步,把时间的掌控权还给居住者。
美,不是瞬间的光芒,而是沉静的余晖。当我们在停顿中,能发现美的身影,我们便在刹那间,触碰到了永恒。
ABOUT PROJECT
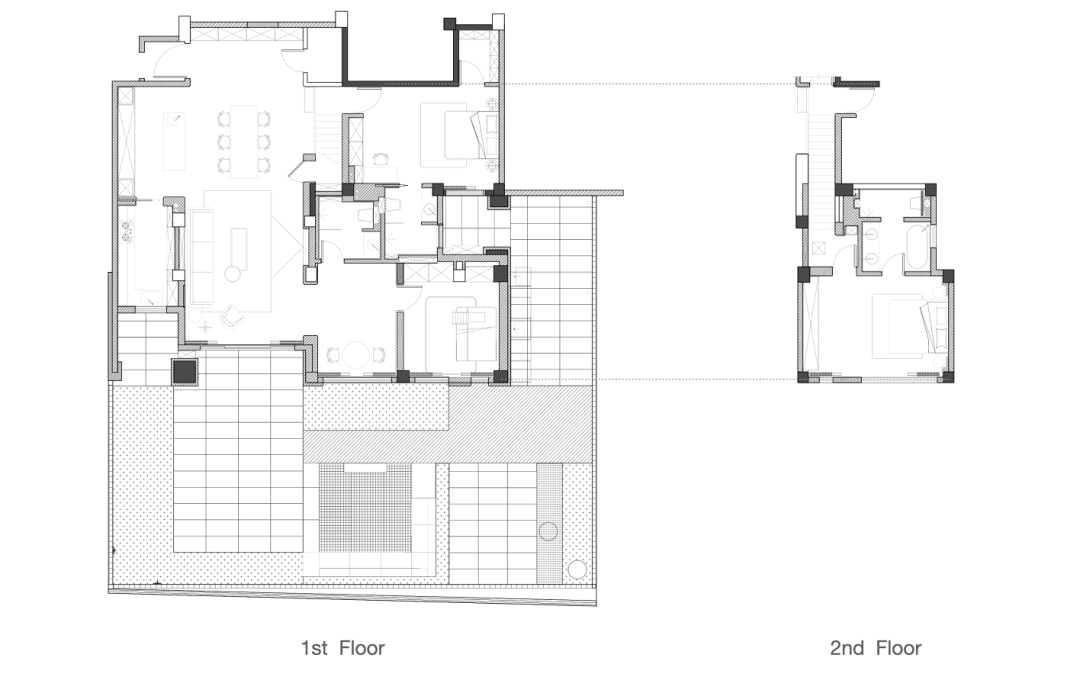
- 平面图 -
项目名称:麓湖香林堤私宅
项目地点:中国|四川|成都
项目面积:234㎡+150㎡(花园)
设计时间:2019年04月
完工时间:2022年06月
设计公司:元太设计
设计总监:Louis 廖晋南
设计团队:康楚云、郑颖、马文骁、余佳露
主要品牌:壹宅装饰,凯高尚汇,B&B Italia,DECOAID 德珂定制,Fnji 梵几,IMOLA 陶瓷,Imondi 集物地板, Minotti,ROMANOR 洛玛诺瓷砖,ROMO 沙织软装,Snaidero 施耐德洛定制,VAN DER ROHE 凡德罗家居,Woy Lighting 卧羊照明,YIJI COLLECTION 壹集,YIKING 逸景窗业,etc.
项目摄影:形在空间摄影 贺川
客服
消息
收藏
下载
最近






























