查看完整案例

收藏

下载
回归质朴,悟道自然
Returning to simplicity, realizing the essence of nature
“晚霁”临海,藏于海东边花园一角,其理念让民宿回归本源。设计师希冀使生活回归情感,将自然引入设计。崇尚“自然主义”,追求绝对的客观性,单纯地描述自然,以自然规律按照事物本来的样子去思考。以自然环境和自然元素为灵感和参考,创造与自然融合的建筑作品。
“Wanji” is nestled by the Erhai Lake, concealed in a corner of garden on the east side of the Lake. Its idea is to bring the “bed-and-breakfast”(B&B) back to its roots, which means to keep it simple, natural, cozy and with local characteristics. Designer Yiping hopes to bring the essence of life back to emotions, integrating nature into the design. The pursuit of “naturalism” emphasizes absolute objectivity, simply describing nature and contemplating things as they are. Drawing inspiration and reference from the natural environment and elements, it creates architectural works that seamlessly blend with nature.
▼酒店外观,Exterior view© 邹锋翰|4U STUDIO
“自然主义”注重使用天然的材料,如木材、石材等,以营造与自然环境相协调的氛围。这些材料不仅能够与自然环境相融合,还具有舒适和温暖的触感。追求最大限度地利用自然光线和通风来提供室内的舒适环境:山峦和云朵投影于水中,水面荡漾如同一幅印象主义的画作,点染着画作的,有微风轻拂、云卷云舒。夜半时分,水波中树影和月亮的残片深情地注视着一旁安静的建筑。四季场景更迭,它岿然不动,悄无声息地融入自然,唯阳光透过树枝丝丝缕缕地垂落素墙,忽高忽低、时隐时现,让人感知时间流转。
“Naturalism” places a focus on using natural materials like wood and stone to create an atmosphere that harmonizes with the natural environment. These materials not only blend with the surroundings but also offer a comfortable and warm touch. The designer seeks to maximize the use of natural light and ventilation to provide a comfortable indoor environment: mountain ranges and clouds are projected on the water, showing an impressionistic painting, colored by a gentle breeze and rolling clouds. The scene changes with the seasons, and the building remains integrated with nature. Only the sunlight through the branches of the trees, projecting onto the plain wall, with its flickering shadow dropping down, people perceive the flow of time.
▼建筑立面,Facade© 邹锋翰|4U STUDIO
▼入口处,Entrance© 邹锋翰|4U STUDIO
▼室外楼梯,Outdoor stairs© 邹锋翰|4U STUDIO
以光为引,以意为境 With light as our guide, let’s create a world of meaning.
光影与空间相生相持,浮光掠影,行皆有境,时空渐生。光,赋予空间以生命和灵魂,勾勒着建筑的边界与线条。设计师突破空间的围墙,将自然山水“装裱”给空间。清晨醒来,从水景看台望出,太阳穿透薄雾,光洒落整个湖面。水景看台的设计,遮挡住了多余的视线,将空间外之景物纳入内部视线范围中,延伸空间的深度与广度,将水景与洱海连成一片,协调相融,虚实相生,尽感空灵、温柔、自在的基调。
Light and shadow coexist with space, creating a sense of place where every movement has its own context, and time and space gradually come alive. Light breathes life and soul into space, outlining the boundaries and lines of the architecture. Breaking through the walls of space, the designer “frames” the natural landscape of mountains and waters into the space. In the morning, looking out from the waterside terrace, you will see the sunlight pierces through thin mist, casting light across the entire lake. The terrace design blocks unnecessary sight, bringing external scenery into the internal view, extending the depth and breadth of space, connecting the water feature with Erhai Lake, blending harmoniously.
▼主要空间概览,Main interior space© 邹锋翰|4U STUDIO
▼廊下空间,Verandah space© 邹锋翰|4U STUDIO
午时,阳光上移,弧形楼梯间的光斑活灵活现,每一束光线,都是对艺术的致敬。楼梯的弧度设计恰到好处,无棱无角的弧线,加入光的指引,给予空间更加包容的意义。素墙上形成节奏块状阵列,分散的空间因序列相连,呈现出空间的趣味性。行至天井,扑面而来一种神秘而敬畏自然的感觉,无限的天空限制于有限的矩形之中,使人们在驻足间不禁开始思考光、空间和时间,连接对现实世界的感知。看阳光将湖水舔瘦,风裹着柔光洒落在木质地板,布艺与光影交叠,空间与建筑的宁静悄然而至。顺着光的指引去探索未知,一日的不同时段、不同天气,感受不同的空间质感,时间流动,营造不同的空间氛围情绪。
At noon, as the sunlight moves upward, light spots come alive in the curved stairwell. Designer pays tribute to art with every beam. The well-designed curvature of the stairs, combined with the guidance of light, adds a more inclusive meaning to the space. Block arrays, a design method form on the plain walls disclosing a sense of rhythm, connecting dispersed spaces in sequence, presenting the spatial charm. Arriving at the courtyard, a feeling of mystery and awe towards nature arises. The infinite sky confined within a limited rectangle makes people ponder light, space, and time, connecting with the perception of the real world. The hot sun evaporated the lake, the wind carrying gentle light onto the wooden floor, fabric and shadows overlapping, a sense of tranquility quietly pervades the space. Following the guidance of light to explore the unknown, different times, different weather, individuals will feel the different spatial texture, the flow of time, to create a different spatial atmosphere emotions.
▼弧形楼梯,The curved stairwellw© 邹锋翰|4U STUDIO
▼楼梯倾泻下来的光影,Light and shadow pouring down the stairs© 邹锋翰|4U STUDIO
慢度日常 心向往之
Slow down to enjoy the daily life that’s what we yearn for
“晚霁”隐匿而规矩,不骄不躁,似乎是为着灿烂时刻而养精蓄锐。设计师采用机刨石,以保留这座建筑的原始质感,粗狂、坚硬但不突兀,如这里的生活般,平淡、质朴,但不潦草。周身是静谧的氛围,肌理流动着不可言说的生命力。在空间秩序和自然秩序之间去寻找平衡。“晚霁”于自然满怀感恩与敬畏,松弛、仪式、氛围、沉浸、情绪,是它想带来的独特体验。
“Wanji” is reclusive and disciplined, seemingly reserved for brilliant moments. The use of planed stones retains the original texture of the building –rough, firm, yet not abrupt–mirroring life here, plain and simple but not careless. The surroundings exude a quiet atmosphere, with texture flowing unspoken vitality. The designer seeks balance between spatial order and the natural order. “Wanji” is filled with gratitude and awe towards nature, embodying relaxation, ceremony, atmosphere, immersion, and emotion, in order to provide a unique experience.
▼酒店客房,Guest room© 邹锋翰|4U STUDIO
▼休闲空间,Relaxation area© 邹锋翰|4U STUDIO
▼露天用餐区,Alfresco dining area© 邹锋翰|4U STUDIO
▼露台空间,Terrace© 邹锋翰|4U STUDIO
▼露台近景,Terrace close view© 邹锋翰|4U STUDIO
日子像箜篌声飘散在海面一样,当我们追忆它时,听到的是弥漫着富有韵律的激溅的浪花捶打礁石的水声,它有自然的力量。“晚霁”设计师易平从空间氛围入手,使用木质、粗陶、棉麻等充满自然气息的材质,唤醒“隐居时代”生活最动情的触点,使目光和心灵都有可栖息的地方。而仪式感之“使某一天与其他日子不同,使某一时刻与其他时刻不同”为平凡的生活增添了三分色彩。“晚霁”柔和的光线、素净的底色,被鲜活的绿意包裹,令人不禁为自然的生命力而感动。
Days pass like the sound of a konghou dispersing over the ocean. When we recall them, we hear the rhythmic crash of waves against the rocks, a natural force that pervades. Designer Yiping, starting with the atmosphere of the space, uses materials such as wood, rough pottery, and cotton linen, awakening emotional trigger in the “age of hermit”, making life more vivid. A sense of ritual adds color to ordinary life by making certain days and moments different from others. “Wanji” with its soft light and beige walls, surrounded by vibrant greenery, invokes a profound sense of appreciation for the vitality of nature.
▼泳池,Swimming pool© 邹锋翰|4U STUDIO
▼材质细部,Material details© 邹锋翰|4U STUDIO
之于“晚霁”,设计师未曾设限于“民宿”或“精品酒店”所设定的条框之间。伊恩·施拉格曾说过“精品酒店仅指那些具有一个鲜明和与众不同文化理念内涵的酒店。”“晚霁”秉承“欢待之道”,在人文、自然、生活方式上用心别致,从餐饮至居住,无一不重视“经历”,重视为人们营造无形的体验与记忆,感知空间情绪,以最真的性情和诚意,留意人们最易被忽视的身体语言所表达的需求与愿望,以细致入微的用心观察保证人们细腻的生活体验。允许故事的发生,对自然常怀感恩。
客人穿过绿荫,见门廊上的拱门,圆弧的线条柔和舒缓,感受与自然相融,沉浸在松弛的空间环境之中。面朝洱海,让人期待在此有美好的情感环绕,享有温存和幸福。
“晚霁”是自然与人的不期而遇,在此看时间指引光的温情,风的照拂,不必回顾尝经的酸甜苦辣,只是心平气和地喝着浓茶,看很老很老的夕阳。
For “Wanji”, the designer did not confine it to the frameworks set by “B&B” or “boutique hotel.” In the words of Ian Schrager, “A boutique hotel refers only to those hotels with a distinct and unique cultural concept.” Upholding the “art of hospitality,” it pays careful attention to uniqueness in humanities, nature, and lifestyle. From dining to residence, it values “experience,” focusing on creating intangible experiences and memories, perceiving emotional space. With the most genuine emotions and sincerity, it observes the often-overlooked body language expressing needs and desires, ensuring people experience nuanced living. “Wanji” welcomes stories coming, always embracing nature. Guests pass through the green shade and see the arch on the porch, with its soft and soothing curved lines, feeling seamlessly integrated with nature, immersed in a relaxed spatial environment. Facing Erhai Lake, people anticipate being surrounded by beautiful emotions, enjoying warmth and happiness. “Wanji” indicates an unexpected encounter between nature and humanity, where one can feel the warmth of time guiding light, the care of the wind, without revisiting the bittersweet experiences of the past but simply enjoying the old sunset while drinking a cup of strong tea.
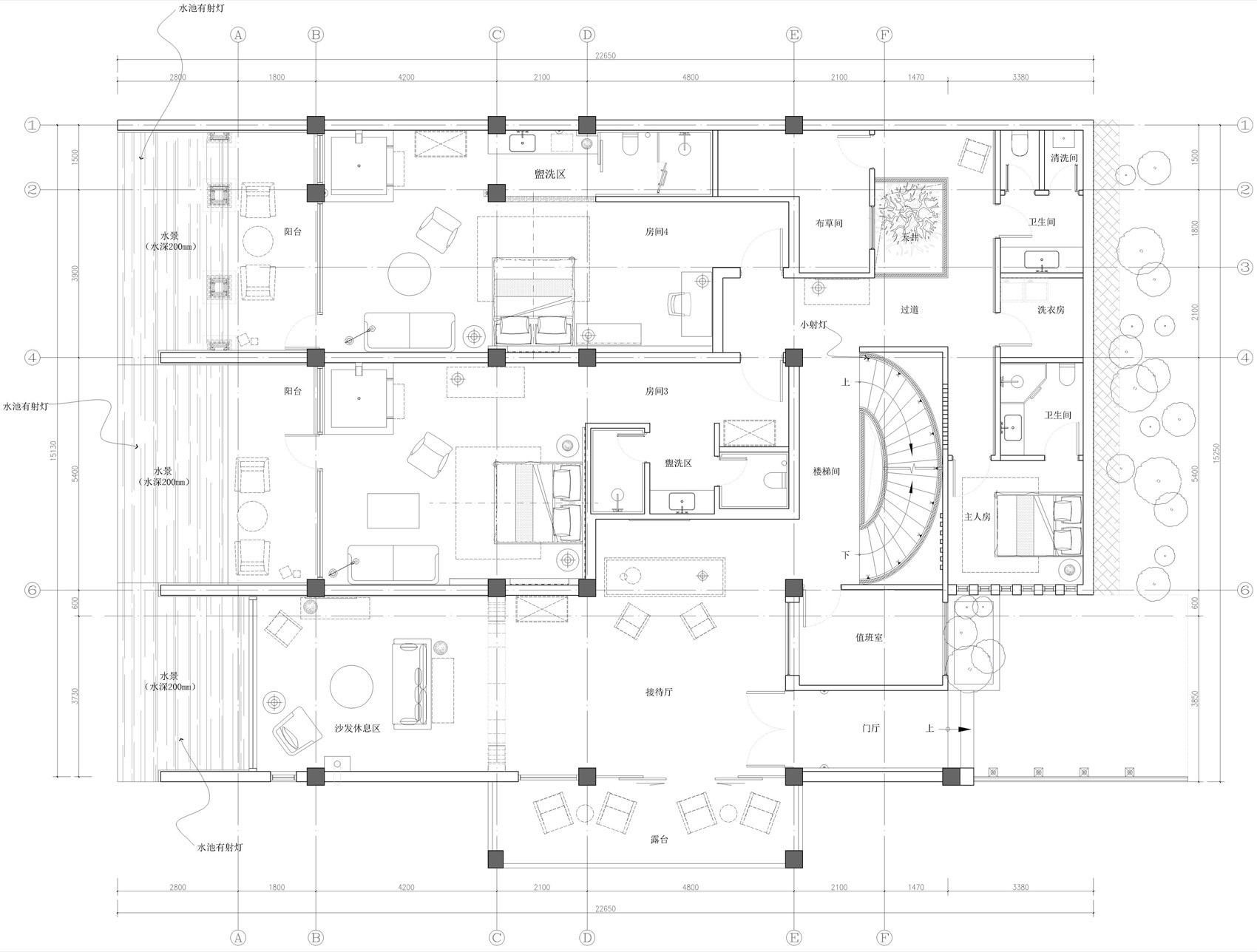
▼1F 平面布置图,1F floor plan© 易禾上品
▼2F 平面布置图,2F floor plan© 易禾上品
▼3F 平面布置图,3F floor plan© 易禾上品
▼立面图,elevation© 易禾上品
项目信息:
Information
项目名称:晚霁海景酒店
Project Name: Wanji
项目地点:云南大理
Project Address: Dali,Yunan
项目面积:约 1000㎡
Project Area: 1000㎡
设计公司:(YID)成都易禾上品室内装饰设计有限公司
Design Company: YID Studio
设计总监:易平
Design Director: Yi Ping
陈设设计:易平&孙洪玥
Furnishing Design: Yi Ping & Sun Hongyue
设计范围:室内&软装&景观
Design Scope: Interior & Furnishing & Landscape
设计时间:2022.10
Design Date: 2022.10
完工时间:2023.10
Completion Date: 2023.10
空间摄影:邹锋翰|4U STUDIO
Space Photography: Zou Fenghan | 4U STUDIO
Video Clip: Huang Ran
撰 稿:周丽佳
Writer: Zhou Lijia
客服
消息
收藏
下载
最近





























































