查看完整案例

收藏

下载

翻译
Firm: Alwathaaeq Consulting Engineers
Type: Residential › Apartment
STATUS: Built
YEAR: 2021
SIZE: 3000 sqft - 5000 sqft
BUDGET: $10M - 50M
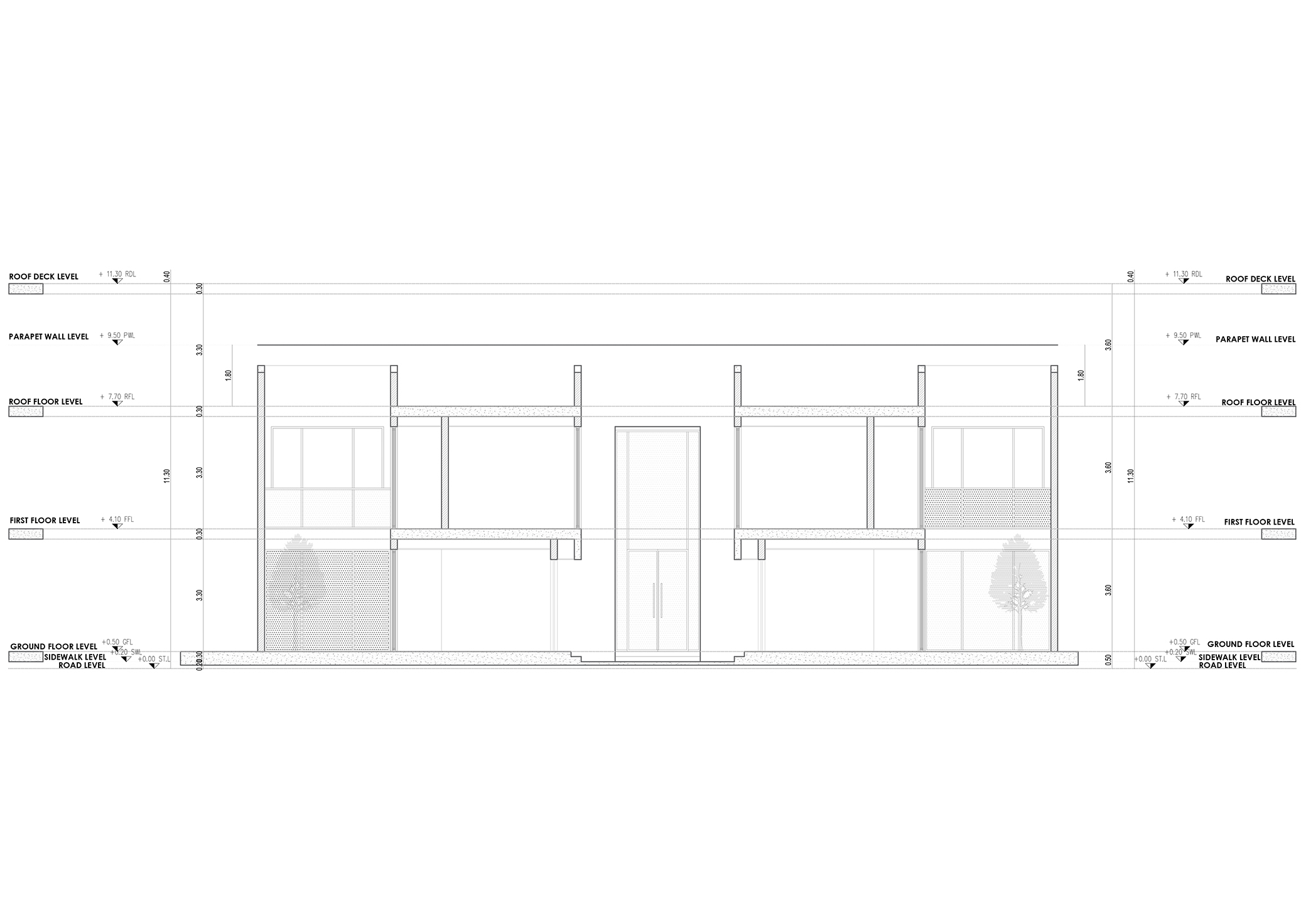
The courtyard houses a new project in the heart of Riyadh. 2 town houses and 6 apartments, every single unit with a very private access.
It is a living concept space, once entered you are just with this of nature light and beautiful view through to the courtyard.
connected to courtyard by a light glass partitions with a hidden structure opening that up to create a family home with circulation. With a movable light partitions, functions were merged together to enjoy the day light & view coming from the central courtyard.
the bedrooms in first floor, makes you embrace the sunlight all day and connects you visually to the courtyard, by a upper terrace, serving the bedrooms as a private extension.
The Kids bedrooms were designed with a high sense of Practicality & functionality to feel like a child.
客服
消息
收藏
下载
最近


























