查看完整案例


收藏

下载

翻译
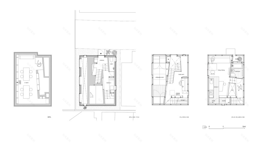
The design of this house is based on two ideas, "Architecture should consist of flow and stagnation" and "Architecture should have Alpha Space" which is relatively public space where people in the neighborhood could drop in. Considering the legal restraints of the site, the composition of the building that can be built here is a house with three floors, including half basement, each of which is about 30m².
First, I thought about how to optimize this whole volume, which naturally led to a first question of where to put the "Alpha Space" mentioned above. We wanted to make Alpha Space a public area to enter with our shoes on (which is unusual in Japan). It will be inconvenient if we place it on the middle floor, so I decided to put it on the bottom floor. And the hall where we can relax should be on the top floor to enjoy plenty of sunlight, which automatically determined the location of our working spaces, my study and calligraphy room for my wife, on the middle floor. The overall composition of the building was set.
What I thought about next was the "flow"planning for this 3-storied house. Stairway is inevitably pushed to the corner in a small house. However, "flow" is an important component of architecture and the movement (flow) of residents (my spouse and I) is a significant element that constitute this house. I came to think that the house gets energized when we move around comfortably and smoothly along the line of flow. I don’t mean we are the heroes of this house. We are one of the most important parts of this architecture. So, it will be nice if we can enjoy ourselves by strolling around inside the house, and it will be nicer if we could take a nap or a break during the stroll.
I wanted to create a chain of spaces where flow from moving around and the stagnation from resting or lying down coexist. Next, I wanted to embed scenery as something to enjoy while taking a walk. In fact, I’m talking about the interior, but let me use the word "scenery" because I wanted to appreciate a sense of distance implied by the word "scenery". I thought that creating a place from which I could see things in the distance inside the house would turn a simple stroll into a more dynamic experience. So I devised particular interior structure that allows our line of sight to extend as far as possible from where we would rest and lie down, providing the distant feeling .
Sitting on a sofa in the basement, I can see my study through a frame (hole) on a diagonal wall and my line of sight continues through to the built-in bookshelf in the back of a void. Standing on the entrance, I can look down at the basement through the stairways connecting the entrance and the basement. Sitting on the stairway leading up to my study from the entrance hall, I can see a house across the street through the entrance door. Walking halfway up the stairs to the second floor, I can look up at the plants in the veranda through the bathroom’s glass door. Just before reaching the second floor, I can look down at the bookshelf over the glass handrail. These are a few examples.
In all cases, views of different distance, from a close view in a frame to a medium view laid beyond the close view and to a distant view further out, make us feel a greater distance than the actual distance. The gaps between the distances in a small house help produce strong architectural expression.
Architectural concepts internalized in me as "flow and stagnation" and "Alpha Space" have been matured to become the concept of “movement and scenery” and materialized as our house on this Kagurazaka building site, where residents enjoy the scenery in between their movements generated in Alpha Space.(Taku Sakaushi)
客服
消息
收藏
下载
最近
































