查看完整案例

收藏

下载

翻译
VOTRE
Proyecto arquitectónico y de interiores para local VOTRE
Proyecto: Arq. Gimena Salvatelli
TCN. Sofía De Césaris
San Jerónimo 2800, Santa Fe, 2024
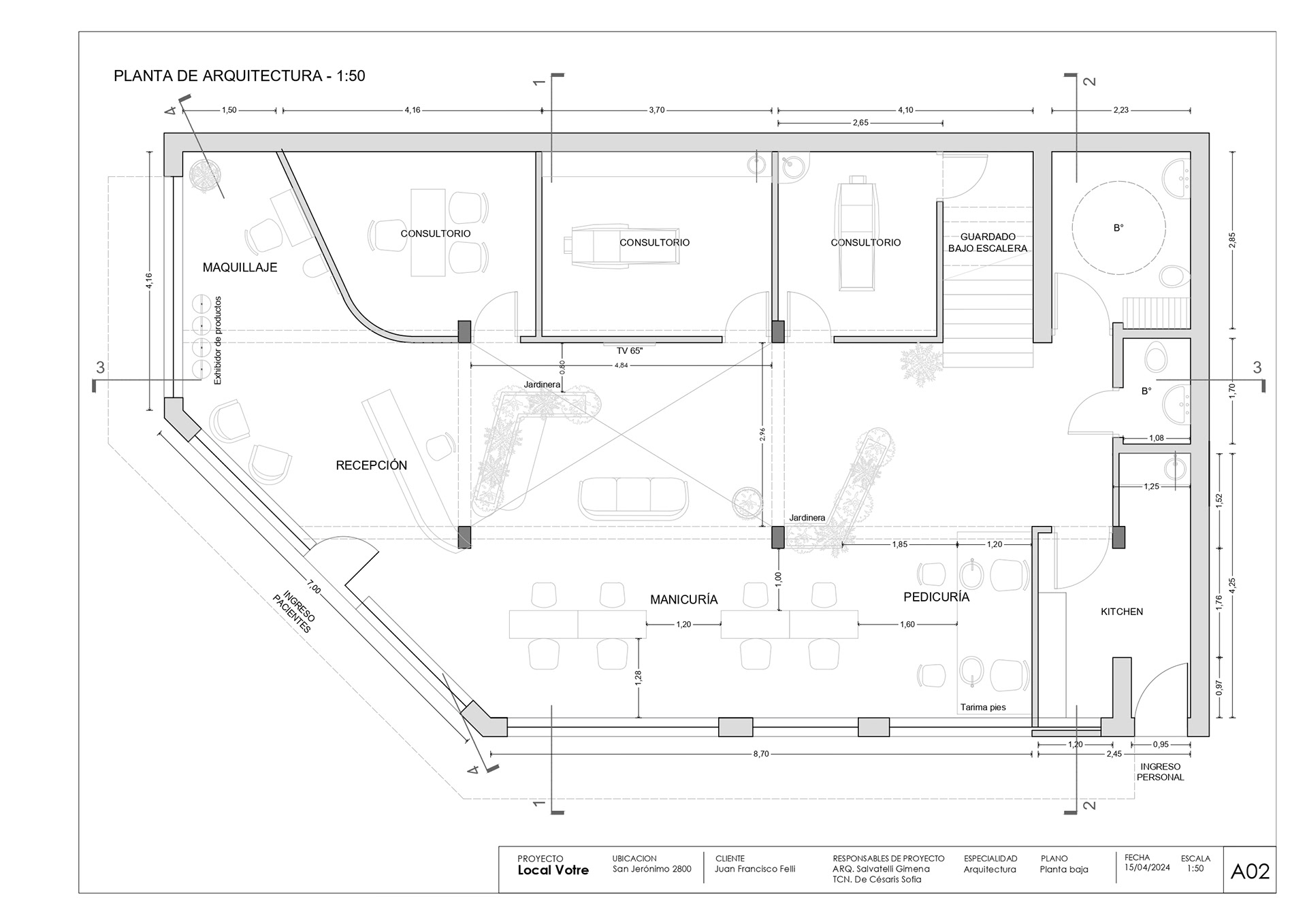
VOTRE es un centro de estética pensado como un espacio para las personas que buscan armonía: Verse bien, estar bien, vivir mejor. El proyecto tiene como propósito brindar en la ciudad de Santa Fe una propuesta de servicios de estética, médico, nutrición, salud mental, bucal, abordaje espiritual y social destinado a alcanzar el bienestar integral de la persona.A partir de esta visión de negocio, este proyecto se centró el concepto de armonía plasmándose a partir de formas fluidas, colores claros, y espacios que propicien la calma y el disfrute.
PROYECTO
MOBILIARIO
RENDERS DE PROYECTO
FOTOS REALES
客服
消息
收藏
下载
最近
























