知末
知末
创作上传
VIP
收藏下载
登录 | 注册有礼

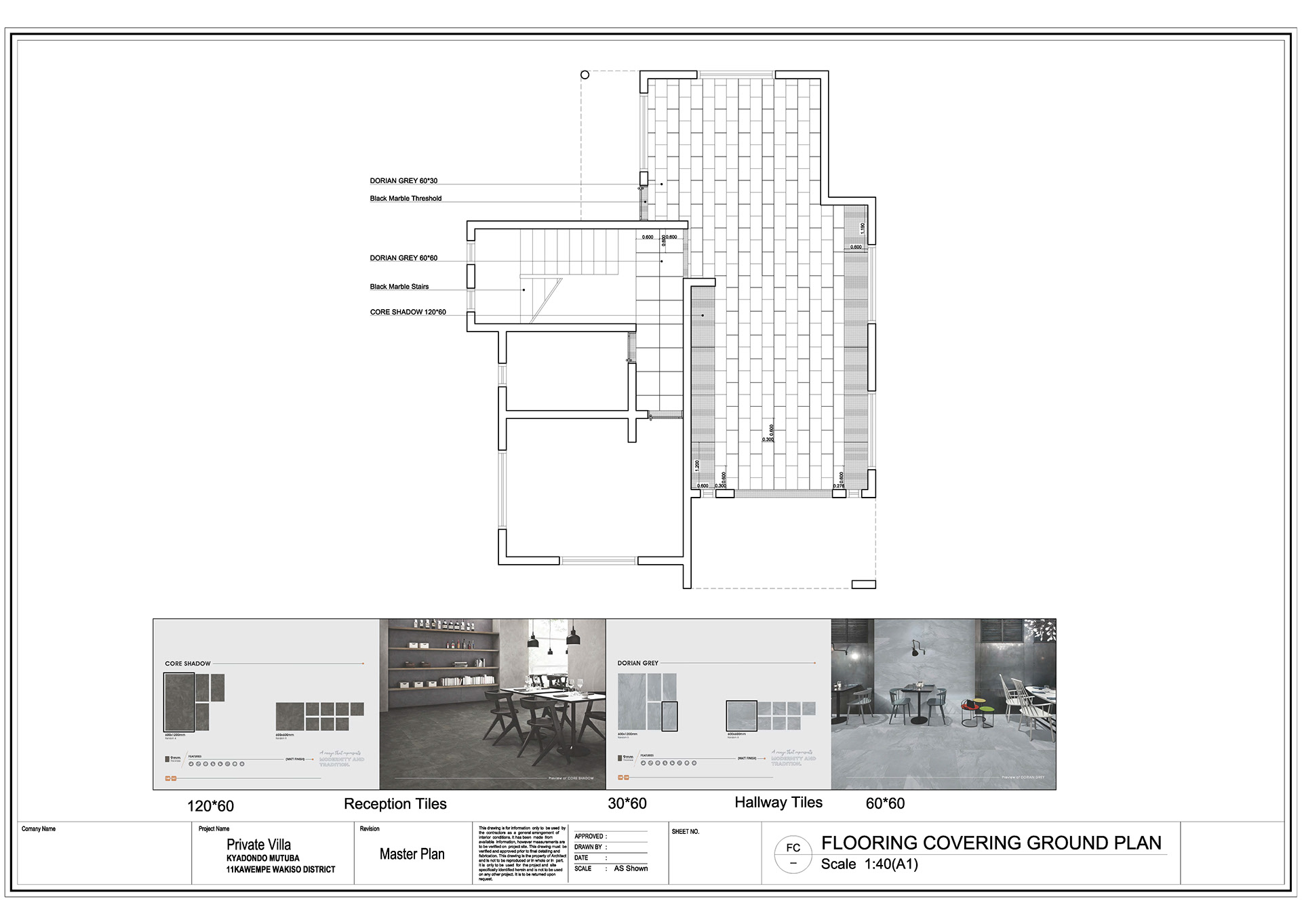
瓦片屋丨乌干达

2024/04/12 04:38:41
查看完整案例
微信扫一扫
收藏
下载
翻译
PROJECT | HOUSE TILES
TYPE | RESIDENTIAL.
LOCATION | UGANDAPROJECT YEAR | 2023
瓦片屋丨乌干达-3
瓦片屋丨乌干达-4
瓦片屋丨乌干达-5
瓦片屋丨乌干达-6
瓦片屋丨乌干达-7
瓦片屋丨乌干达-8
瓦片屋丨乌干达-9
瓦片屋丨乌干达-10
瓦片屋丨乌干达-11
瓦片屋丨乌干达-12
瓦片屋丨乌干达-13
瓦片屋丨乌干达-14
瓦片屋丨乌干达-15
瓦片屋丨乌干达-16
THANK YOU FOR WATCHING
南京喵熊网络科技有限公司 苏ICP备18050492号-4知末 © 2018—2020 . All photos and trademark graphics are copyrighted by their owners.增值电信业务经营许可证(ICP)苏B2-20201444苏公网安备 32011302321234号
客服
消息
收藏
下载
最近