查看完整案例

收藏

下载

翻译
Bus stop - Guadua (Bambú)
Bus stopApproach for the adjacencies of the National Experimental University of Táchira (UNET)
The use of guadua as a Structural and Shelter System is soughtLocation: San Cristóbal - Venezuela
Year: 2022
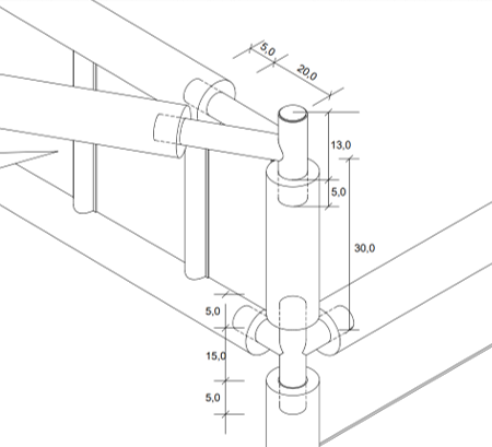
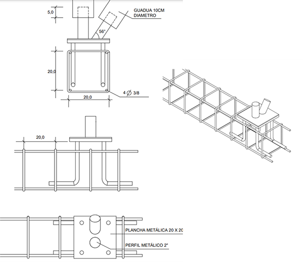
To make the enclosure between the two decks of the stall, guaduas of 5cm in diameter are used, which are joined to the structure of the stall by means of the fishmouth joint every 30 cm, which will allow the provision of glass, These are joined by means of two wooden strips that will be nailed to the guadua, in the middle of which the glass will remain fixed.
The cover is comprised of guadua machimbre which is anchored to the guaduas by means of wooden slats that are nailed to it, and in turn is anchored to the metal profiles that make up the unions of the other guaduas. After this, there is a coating with a waterproofing plastic to finish with asphalt tile.
客服
消息
收藏
下载
最近





















