查看完整案例

收藏

下载

翻译
Proyecto de Vivienda Unifamiliar – Quinta 711
Arquitectura:
Arq. José Alejandro Santana
Arq. Andrés Alemán
Arq. Andys Piñate
Proyecto:
2012
Terminación Obra:
2014
Área del Terreno:
1.136,00 M2
Área de Ubicación:
214,80 M2
Área de Construcción:
456,31 M2
Ubicación:
La Castellana | Caracas | Venezuela
Modelo:
Autocad / Cinema 4D
Video/Render:
3D Studio Max / D5 Render / Adobe Premier / Adobe Photoshop
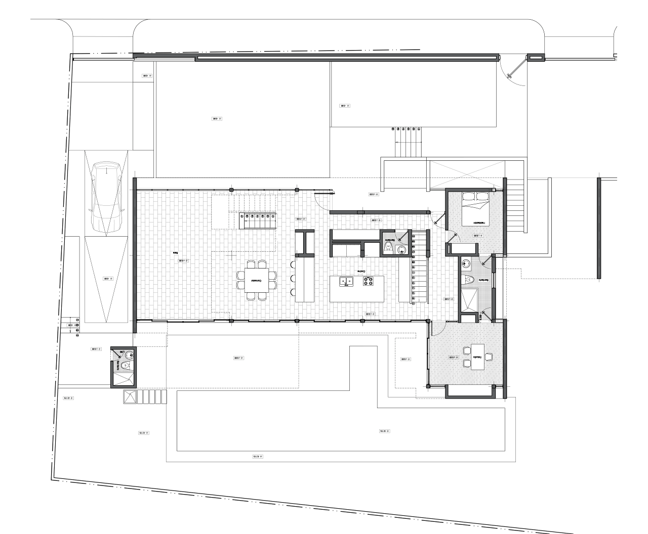
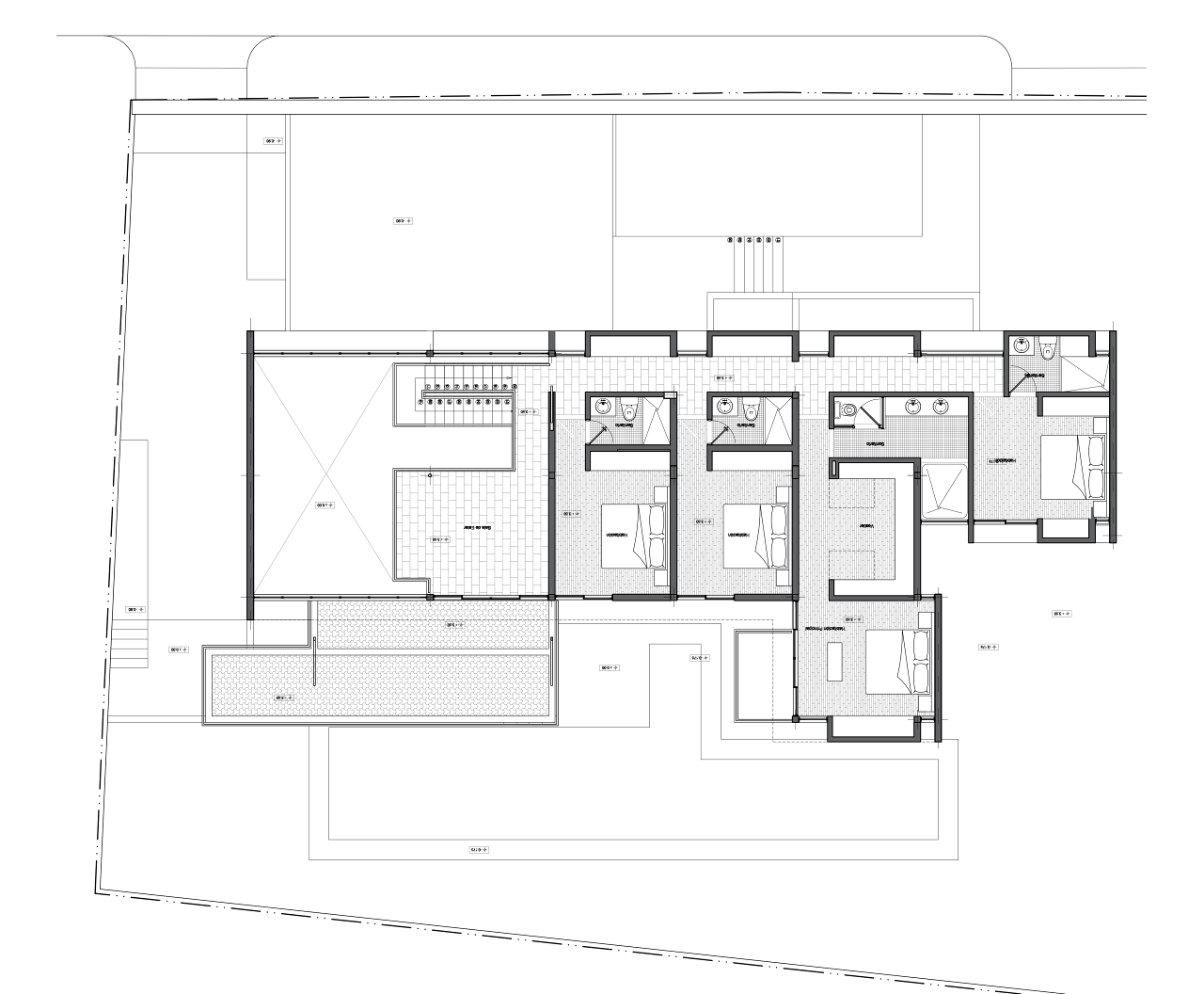
La Vivienda Unifamiliar 711 se presenta como un volumen regular con estructura mixta de concreto y metal, donde la integración de espacios interiores y exteriores, junto al aprovechamiento de la luz natural, son los protagonistas del diseño.
La casa se desarrolla en dos niveles:
Planta baja: Áreas sociales como la cocina, sala y comedor, caracterizadas por su apertura y conexión con los jardines y terrazas exteriores. La sala, a doble altura, permite que la luz natural inunde el espacio, mientras que la piscina se convierte en elemento central del área exterior.
Segundo nivel: Áreas privadas como la habitación principal y dos habitaciones secundarias, con acceso a un balcón que se extiende sobre la sala, favoreciendo la integración visual entre los espacios sociales de ambos niveles. El balcón, a su vez, se abre hacia una terraza con vista panorámica al norte.
客服
消息
收藏
下载
最近










































