查看完整案例

收藏

下载

翻译
Proyecto de Remodelación y Acondicionamiento de la Biblioteca de la Escuela de Enfermería de la Facultad de Medicina de la UCV
Arquitectura:
Arq. José Alejandro Santana
Arq. Andrés Alemán
Arq. Andys Piñate
Proyecto:
2015
Terminación Obra:
2016
Área:
186 M2
Área de Construcción:
210 M2
Ubicación:
Urbanización Sebucán | Estado Miranda
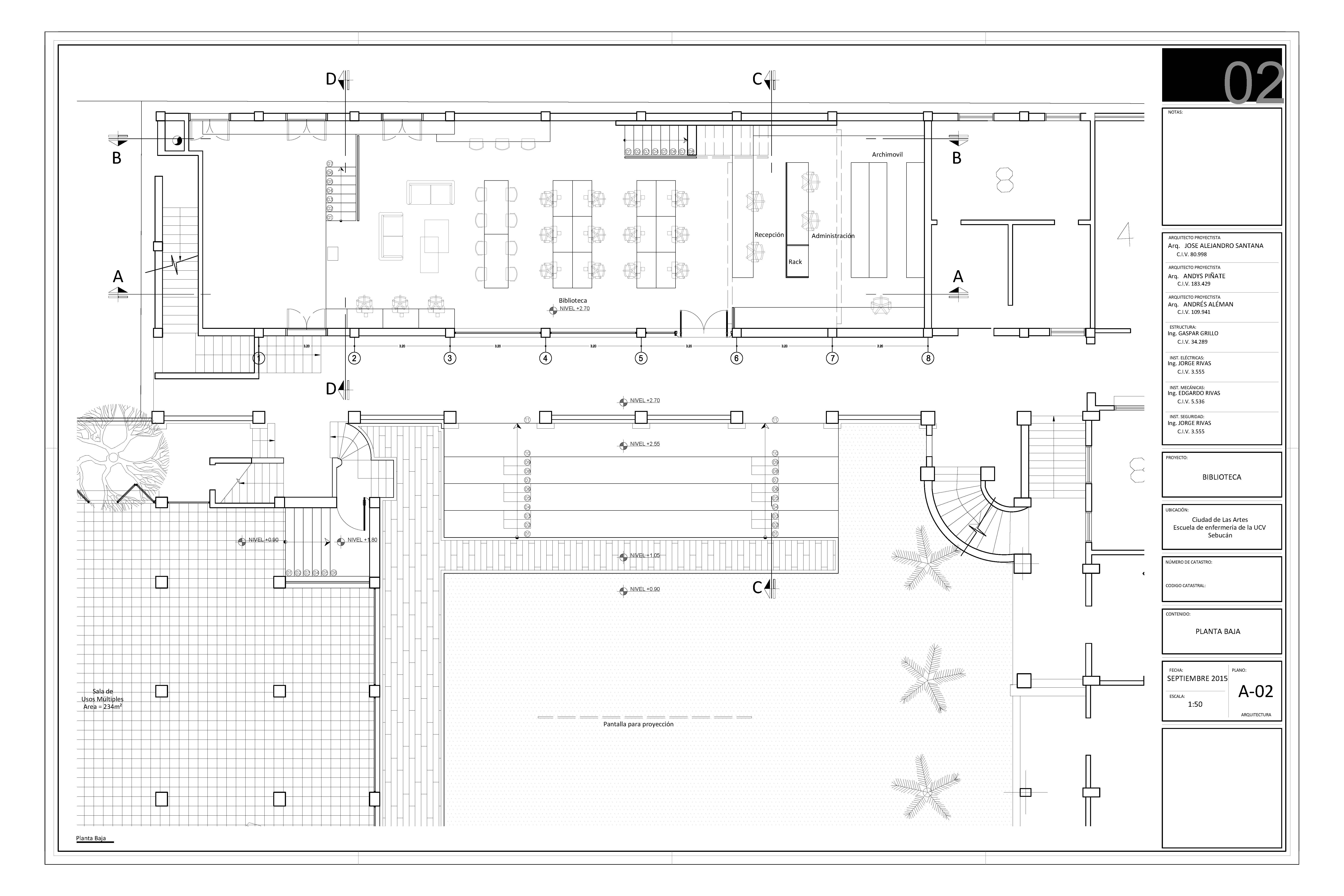
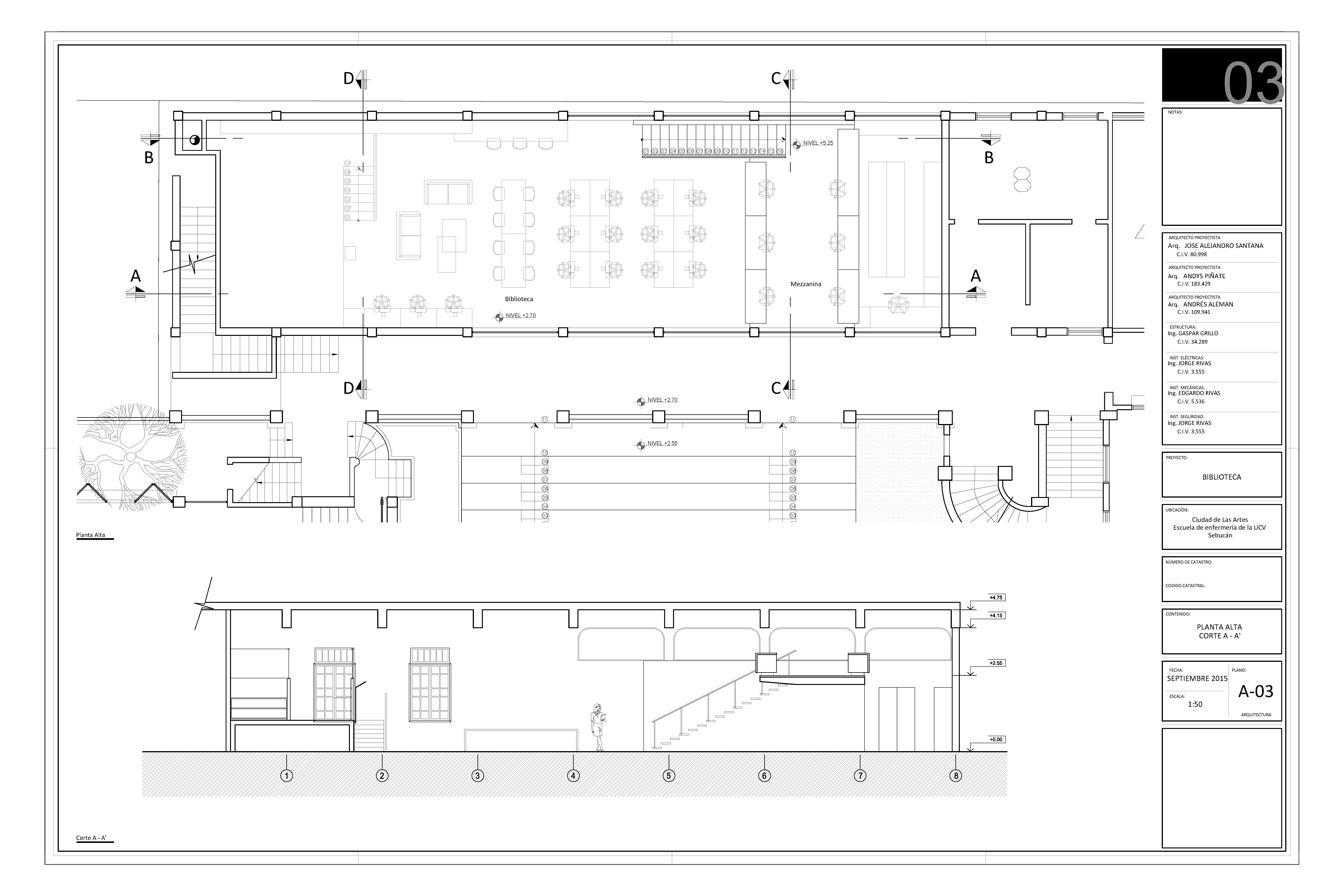
La biblioteca pública está ubicada en un edificio patrimonial. El diseño de la remodelación se centró en respetar la estructura del edificio y aprovechar al máximo la altura del lugar.
El desafío fue reconfigurar el espacio interior. Se propuso una mezzanina de concreto a la vista para un espacio inferior que funciona como depósito de los libros y un espacio superior privado para la investigación.
La fachada principal da a un patio interno del edificio. Considerando la importancia de la luz natural para una biblioteca, se eliminaron las paredes y se colocaron paños de vidrio de piso a techo. Estos cambios permitieron que el espacio se llene de luz natural y desde la biblioteca se tenga una vista al patio con paisajismo.
客服
消息
收藏
下载
最近





















