查看完整案例

收藏

下载

翻译
Proyecto Conjunto de Viviendas Estancia Doña Mariela
Vivienda Principal, 5 viviendas tipo, edificaciones recreativas, áreas comunes y de servicio, espacios exteriores, vialidad y paisajismo.
Arquitectura:
Arq. José Alejandro Santana
Arq. Andrés Alemán
Arq. Andys Piñate
Proyecto: 2021
Área del Terreno: 10.240 M2
Vivienda tipo
Área de Ubicación: 245 M2
Área de Construcción: 470 M2
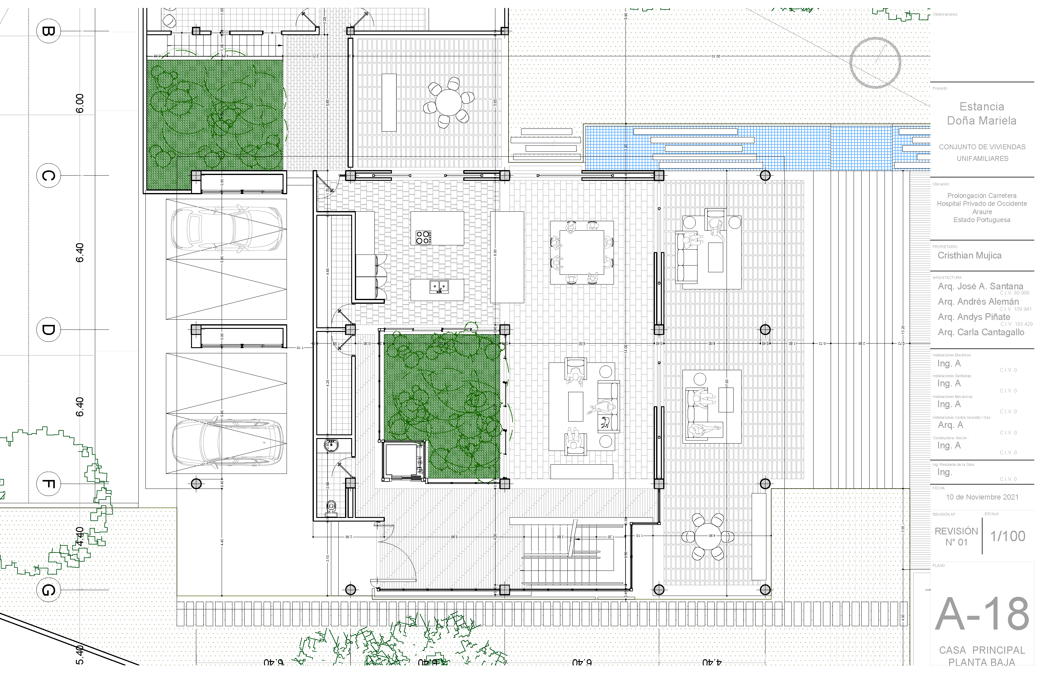
Vivienda Principal
Área de Ubicación: 600 M2
Área de Construcción: 900 M2
Ubicación:
Araure, Estado Guárico
Descripción del Proyecto:
Conjunto de viviendas unifamiliares, edificaciones recreativas, áreas comunes y de servicio, espacios exteriores, vialidad y paisajismo.
Vialidad interna que permite el acceso a las viviendas y áreas recreativas.
Edificaciones recreativas con piscinas, gimnasio y áreas de usos múltiples.
Áreas de servicio con sistemas de bombeo, almacenamiento de agua y generación de electricidad.
Espacios exteriores con vegetación, caminerías, áreas deportivas y estacionamiento para visitantes.
Viviendas:
Vivienda Tipo (5 unidades):
3 niveles: planta baja, primer piso y segundo piso.
Planta baja: cuarto y baño de servicio, lavandero, despensa, cocina, baño de visitas, sala-comedor, terraza exterior techada y 2 puestos de estacionamiento techados.
Primer piso: estar familiar, 2 habitaciones secundarias con baño privado cada una, habitación principal con vestier y baño privado, y balcones en todas las habitaciones.
Segundo piso: habitación auxiliar con baño, baño auxiliar, estudio y área social privada con terraza destechada.
Circulación principal a través de una escalera en un gran vacío interior.
Vivienda Principal:
3 niveles: planta baja, primer piso y segundo piso.
Planta baja: anexo de servicios con 2 cuartos para personal, baño, áreas comunes, lavandero, patio de secado, despensa, cocina, baño de visitas, sala-comedor, terraza exterior techada (con vista a la piscina), área de recreación (cocina, bar, parrillera, vestuarios y terrazas exteriores cubiertas y descubiertas), vestíbulo de acceso y 4 puestos de estacionamiento techados.
Primer piso: estar familiar con balcón interior, 2 habitaciones secundarias con baño privado cada una, habitación principal con vestier y baño privado, y balcones en todas las habitaciones.
Segundo piso: 2 habitaciones auxiliares con baño cada una, baño auxiliar, vestuario y sala de usos múltiples (gimnasio-estudio) con gran terraza destechada.
Circulación principal a través de una escalera en un gran vacío interior.
Patio interior para iluminación y ventilación.
Módulo Recreacional:
2 niveles: planta baja y primer piso.
Planta baja: gimnasio, bar, parrillera, vestuarios, terrazas exteriores techadas, piscina rodeada de áreas exteriores destechadas, cancha deportiva y parque infantil.
Primer piso: sala de usos múltiples acondicionada con terraza exterior destechada y área de parrillera.
Circulación principal a través de una escalera en un gran vacío exterior techado.
客服
消息
收藏
下载
最近





































