查看完整案例

收藏

下载

翻译
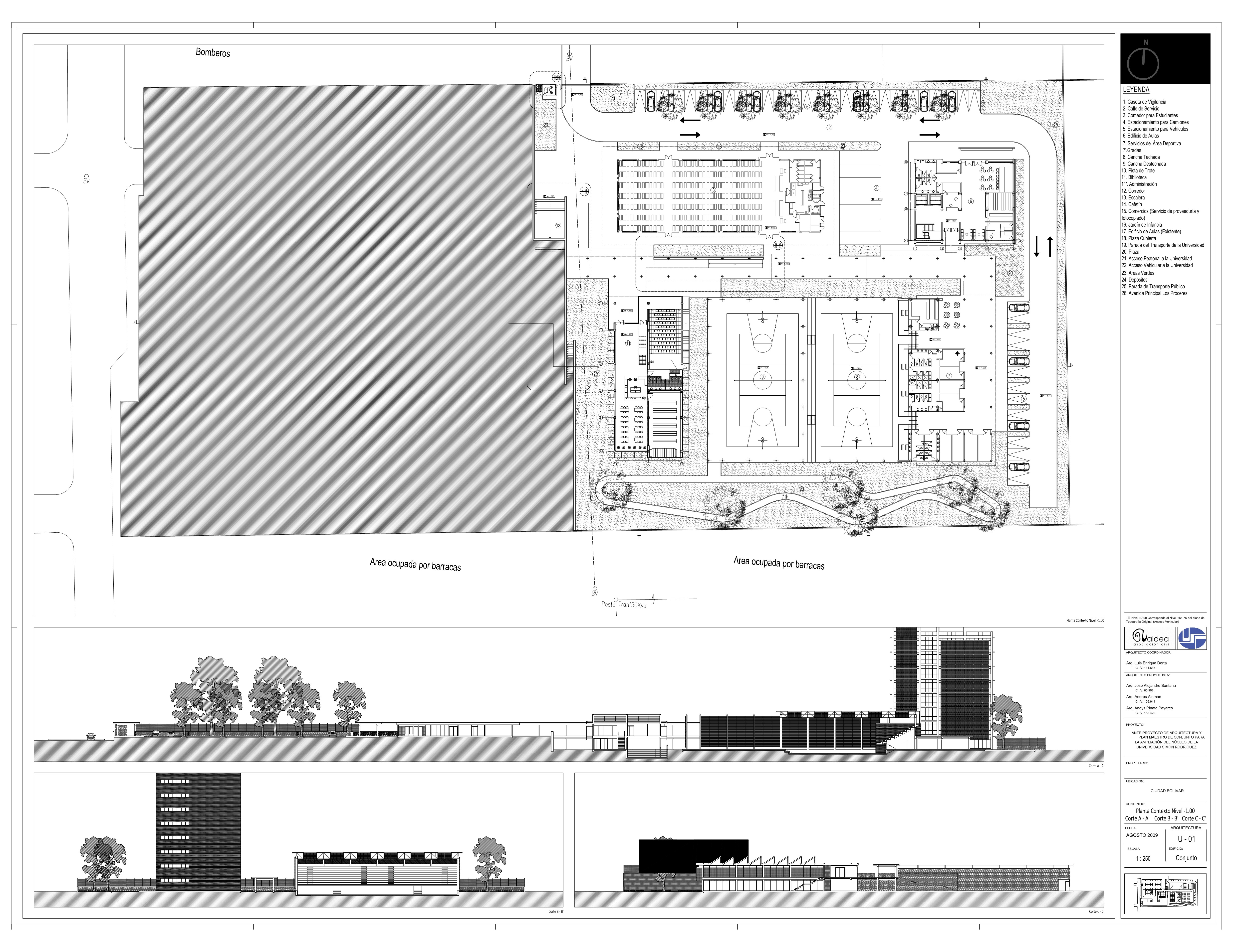
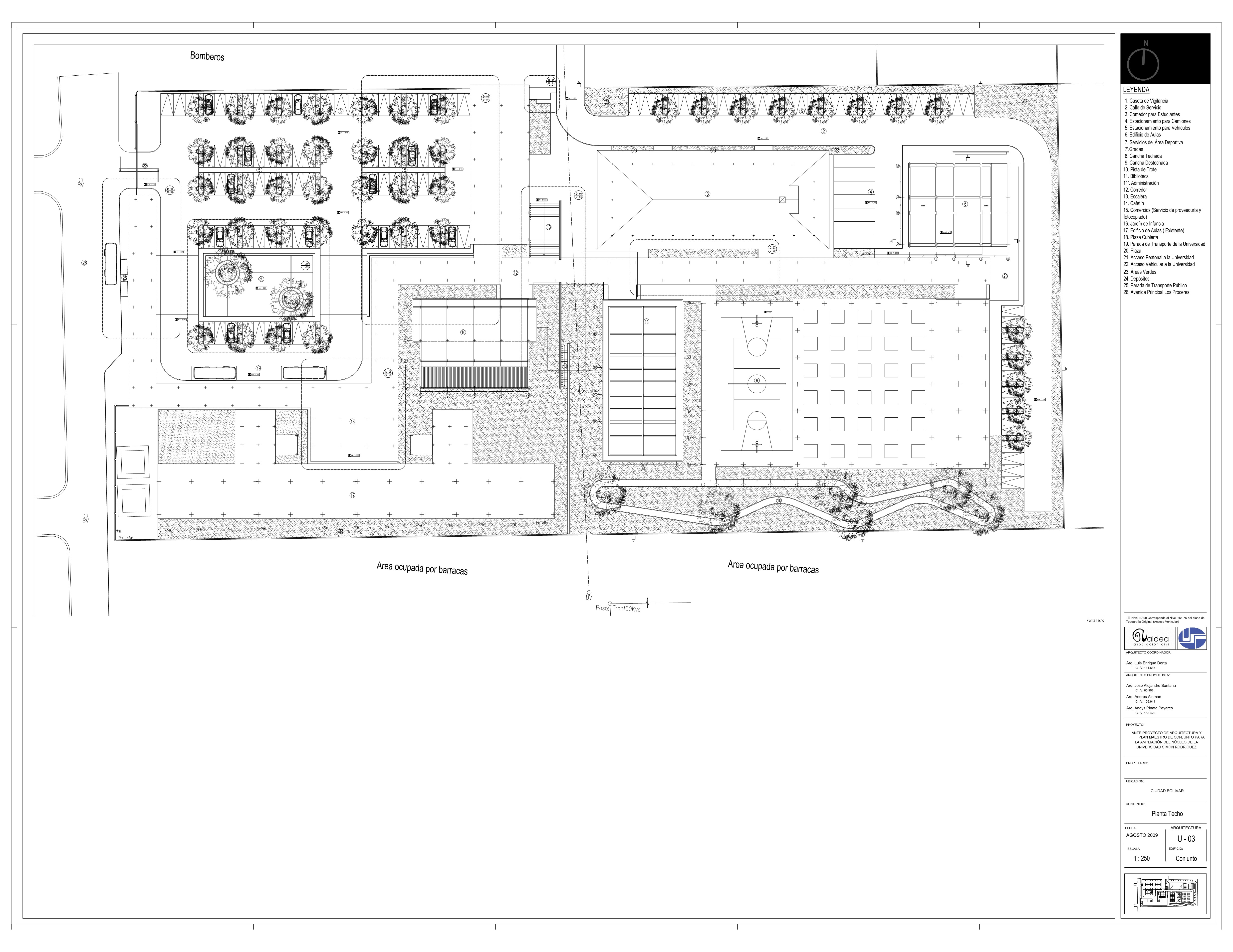
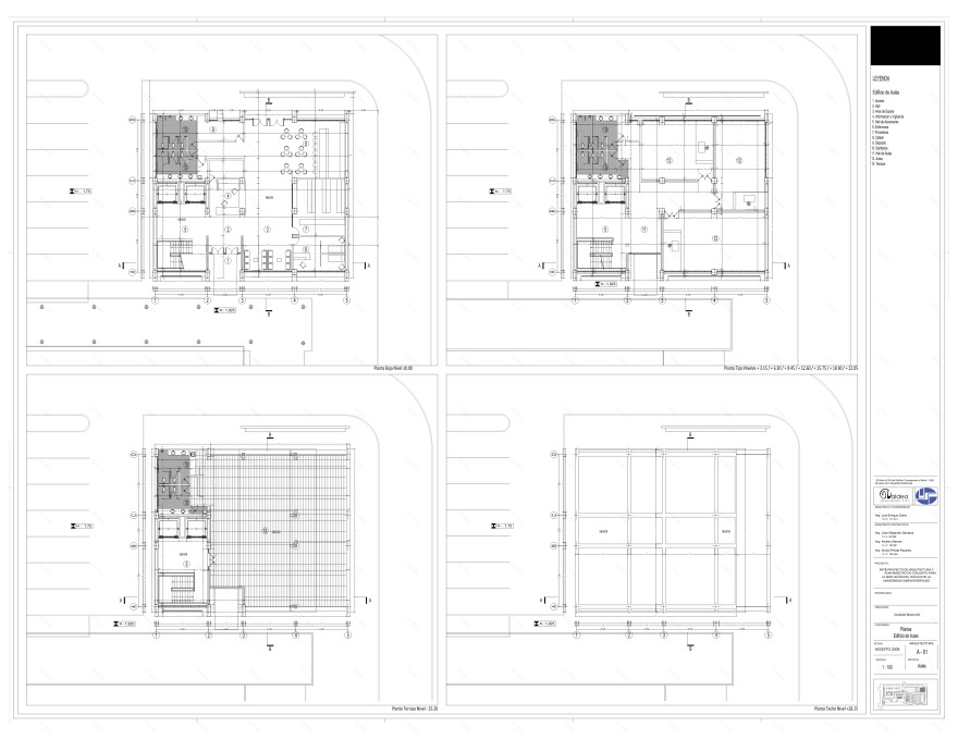
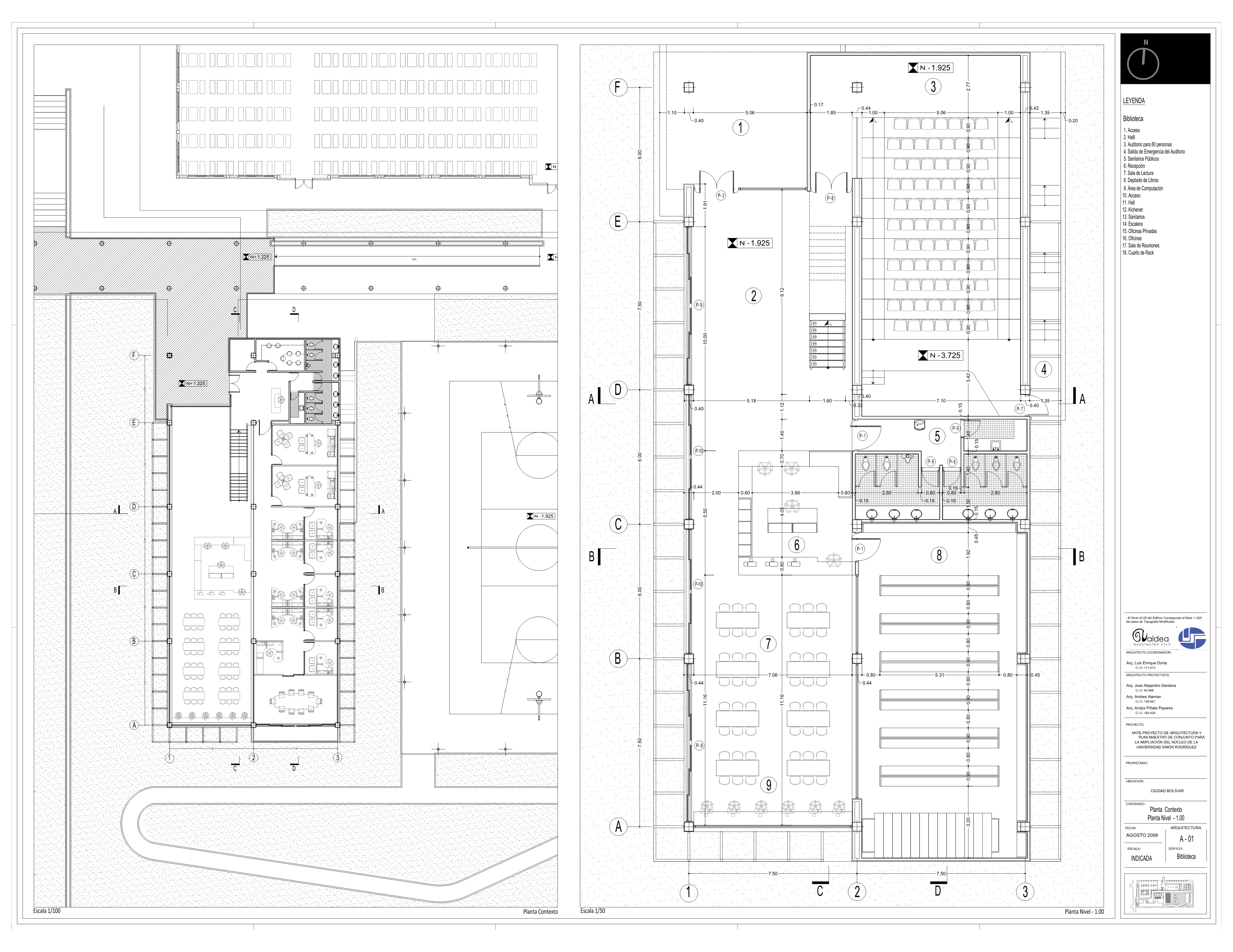
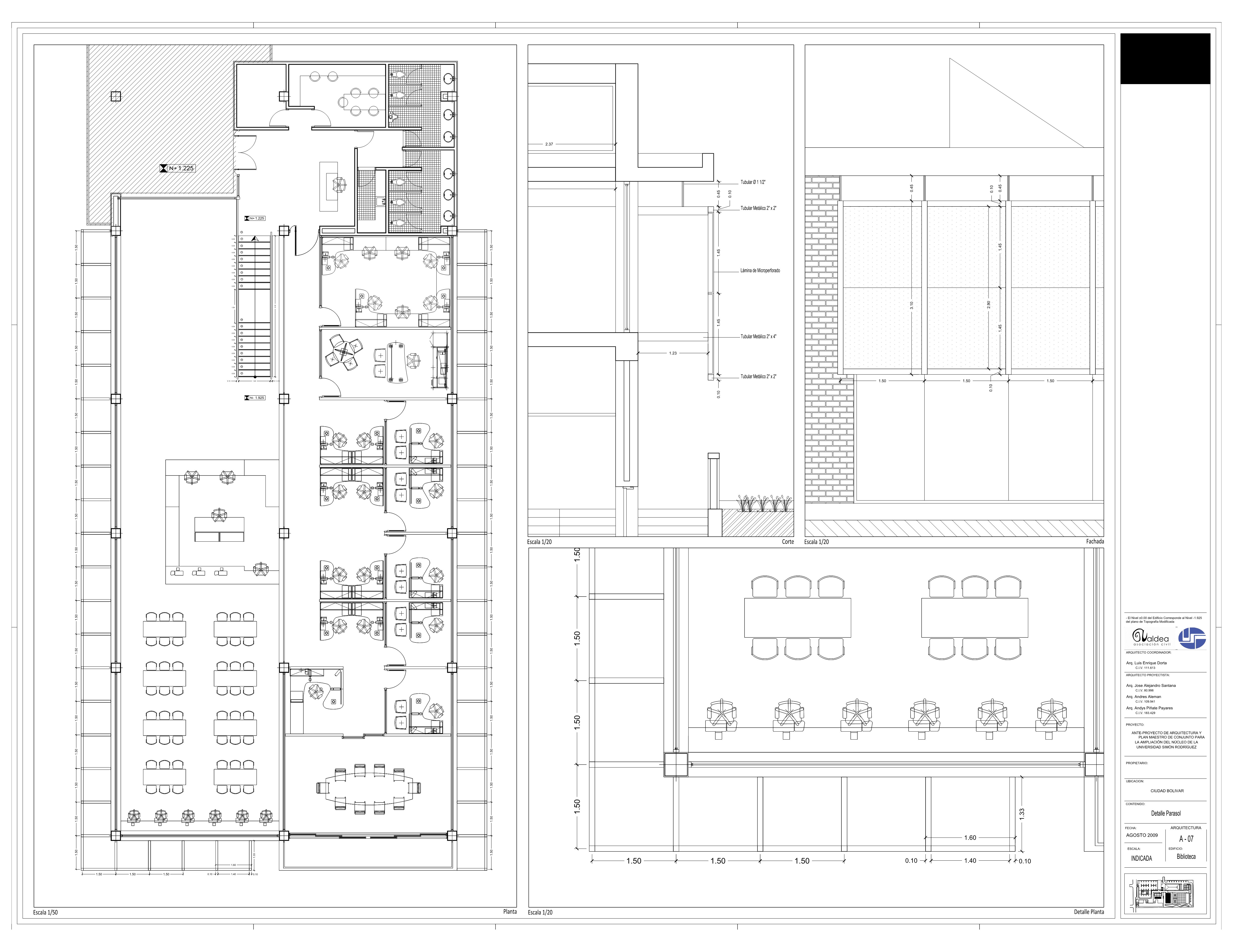
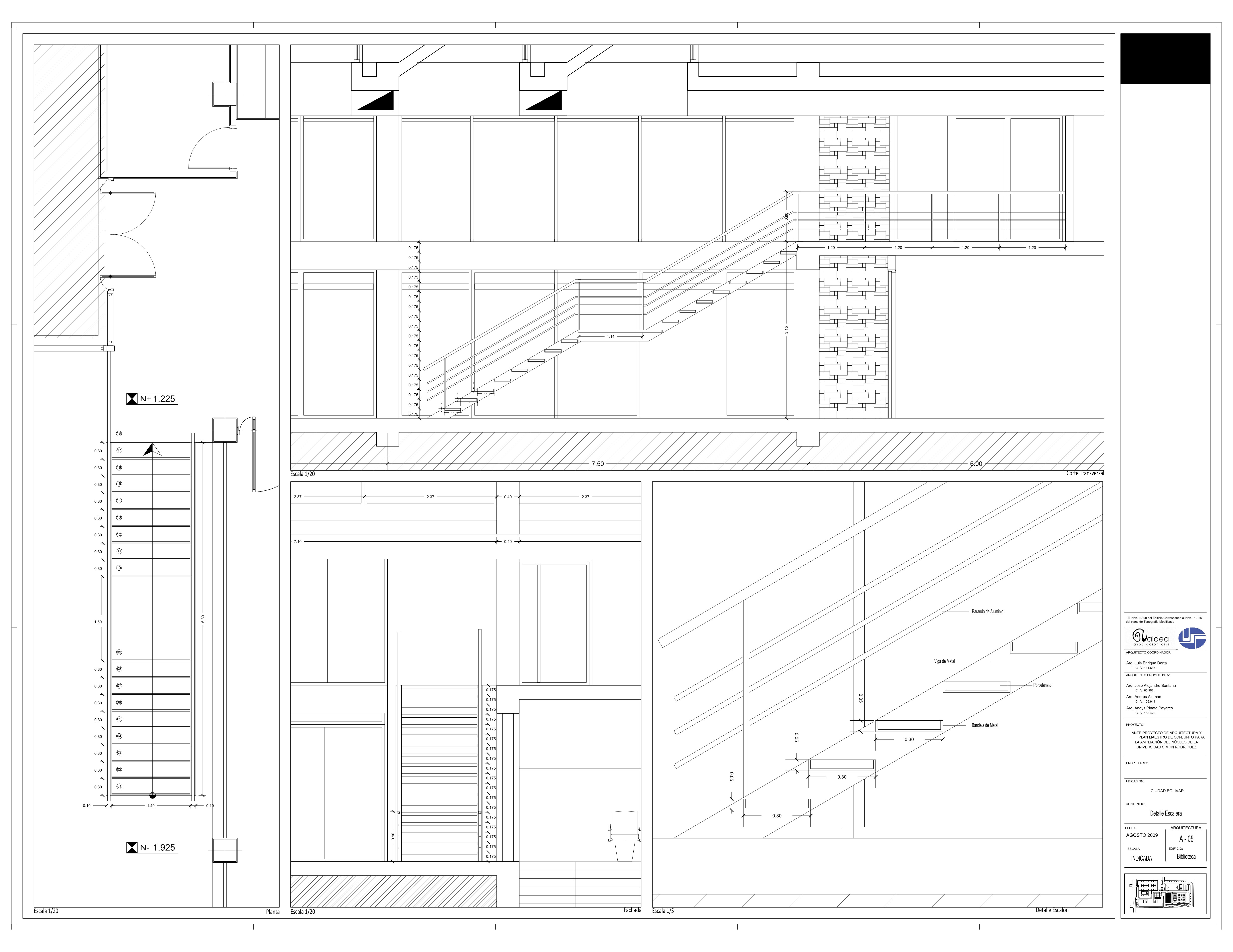
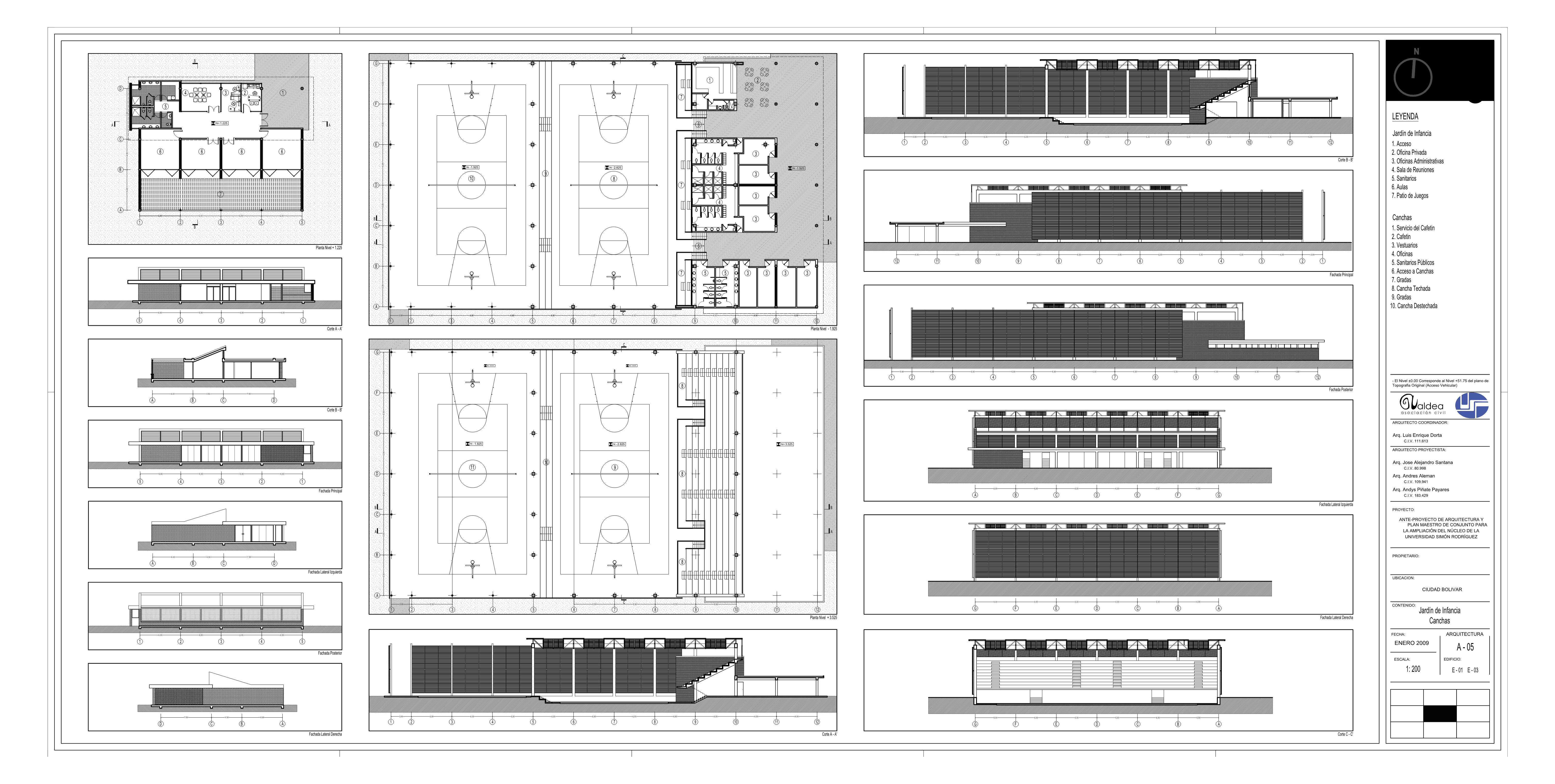
Plan Maestro para la Ampliación del Núcleo de la Universidad Simón Rodríguez
Arquitectura:
Arq. José Alejandro Santana
Arq. Andrés Alemán
Arq. Andys Piñate
Arq. Coordinador Luis Dorta
Proyecto:
2009
Área del Terreno:
20.780 M2
Área de Ubicación:
13.000 M2
Área de Construcción:
14.000 M2
Ubicación:
Ciudad Bolívar , Estado Bolívar
客服
消息
收藏
下载
最近




































