查看完整案例

收藏

下载

翻译
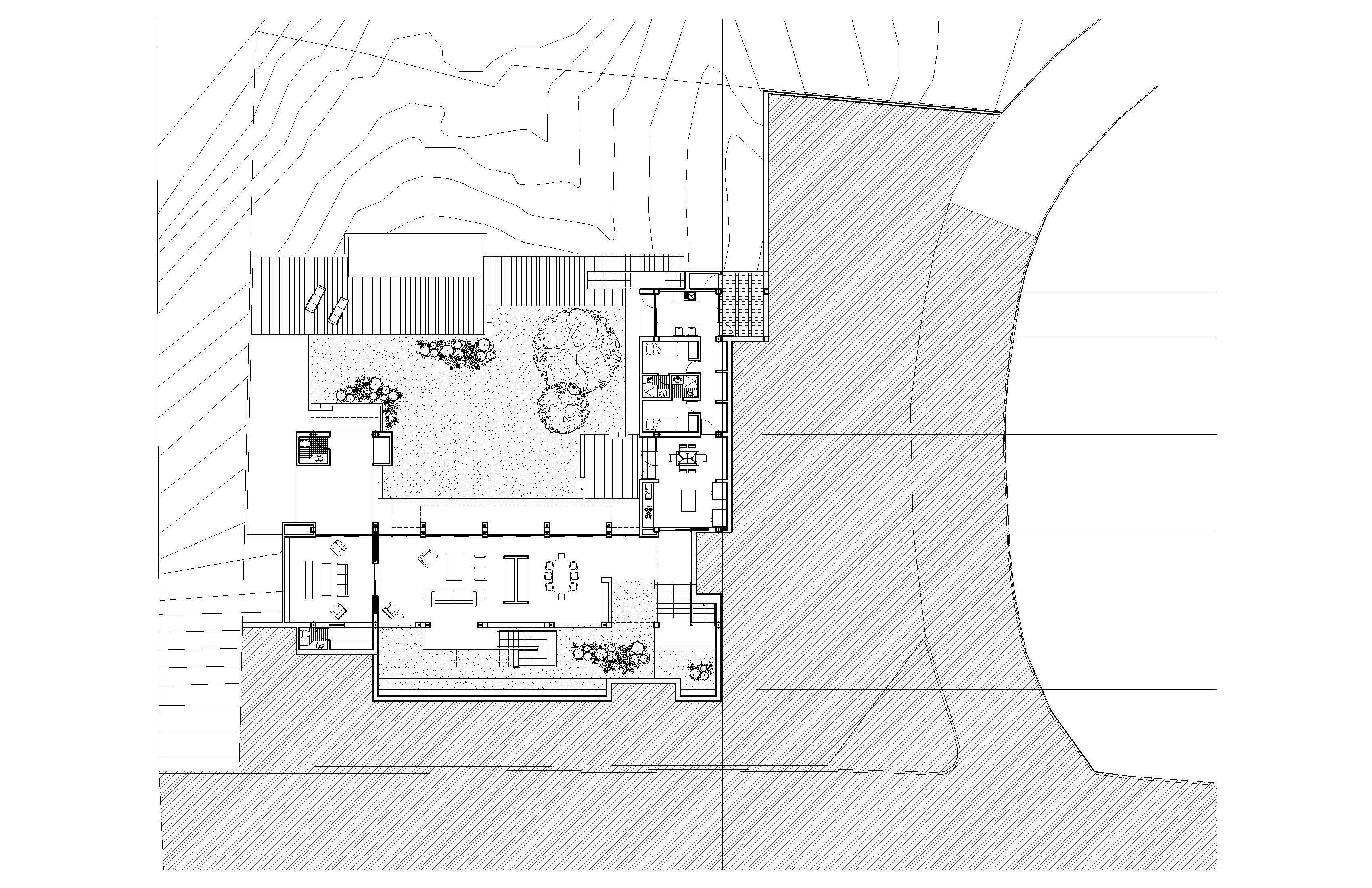
Proyecto de Vivienda Unifamiliar – Casa Zalzman
Arquitectura:
Arq. José Alejandro Santana
Arq. Andrés Alemán
Arq. José Luis Pinto
Proyecto:
2004
Área del Terreno:
1.850 M2
Área de Ubicación:
396 M2
Área de Construcción:
830 M2
Ubicación:
Oripoto, Municipio El Hatillo, DC
客服
消息
收藏
下载
最近









