查看完整案例

收藏

下载
项目名称:韩国电影办公室和商业建筑
位置:韩国
建筑师: 大气环境
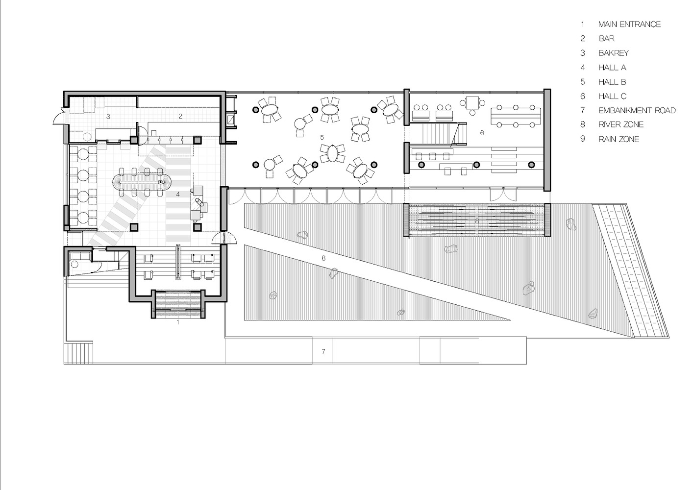
《像电影一样的一天_ INFILM》—开始:像电影一样的综合瞬间这个项目的空间规划是从场地的环境特征引发的情感开始的。与俯瞰金河的壮丽景观相反,这个地方略微凹陷。然而,一列火车沿着河边驶过的景象引起了我们的注意。沿河行驶的火车、沿河行走的人们,以及投射出和平宁静气氛的夕阳,这些场景非常宁静,让人想起电影中的一个场景。这一刻太美了,激发了新的灵感。受到不同场景一起展现的时刻的启发,我们构思了一个像公共汽车一样的项目,围绕一个共同的主题收集独立的短篇故事。因此,我们围绕四个关键词来规划这个项目:地标(沿着金河行驶的火车)、堤岸(沿着堤岸小路漫步的人们)、河流(金河的声音)和日落(夕阳创造的黄昏)。受火车启发的第一个关键词是Landmark。
火车站作为一个里程碑,在那里举行会议和告别,期待承诺。我们的目标是让这个空间成为庆山当地居民和游客的地标。建筑体量的设计具有简单的几何形状,可以从远处辨认出来。弥撒以高高的天花板和高高的垂直窗户为特色,让人联想到火车站的宽敞。我们用各种入口构建了这个空间,在进入时提供新的发现,具有一个让人想起检票口的主酒吧,一个面包店区,一个中央时钟,数字解释为承诺的焦点,以及火车站的典型设计元素。步行-沿着堤路行走的人启发的第二个关键词是堤。我们的目标是让这个空间连接人与人,城市与自然,工作与放松,室内与室外无缝连接,让人们自由行走和循环通过这个空间,使它感觉像一个连续的道路。观察流动的金河得到的灵感的第三个关键词是河。我们设计了一个水空间来捕捉非凡的景色,比如水面上的光线、清晨的河雾和下落的雨滴。
这个水空间不断流动,为游客提供一种类似沉思的感官和宁静的体验。此外,我们在C区规划了一个雨水空间,为游客提供一种无论天气如何都可以在雨中行走的独特体验,增强这些时刻的电影感。时刻之美激发的第四个关键词是日落。让日落更美丽的是它们转瞬即逝的本性,而不是永恒的。为了捕捉这种转瞬即逝的美,体量中的天窗允许全天改变光模式,创建各种墙壁模式。这种灯光展示捕捉了白天和夜晚的美丽,让转瞬即逝的瞬间变得更加特别。C mass中朝西的落地窗旨在生动地捕捉日落之美,自动窗帘打开以增强戏剧性的日落场景,使游客感觉像是在电影中的场景。一天的空间就像一部电影庆山INFILM项目计划通过基于上述四个关键词的综合风格安排来提供一部像一天的电影。我们希望这个网站的访问者会像电影一样度过一天,通过各种空间体验,就像我们最初在这里感受到的情感一样。
韩国电影办公室和商业建筑外部实景图
韩国电影办公室和商业建筑外部实景图
韩国电影办公室和商业建筑外部实景图
韩国电影办公室和商业建筑外部实景图
韩国电影办公室和商业建筑内部实景图
韩国电影办公室和商业建筑内部实景图
韩国电影办公室和商业建筑内部实景图
韩国电影办公室和商业建筑平面图
韩国电影办公室和商业建筑平面图
韩国电影办公室和商业建筑平面图
客服
消息
收藏
下载
最近













