查看完整案例

收藏

下载

翻译
Predio 5 - Cancún, MéxicoCliente: Hotel Blue Star Cancún2024
Fotografía actual del sitio a intervenir: Captura el estado actual de la casa, proporcionando una visión detallada del entorno que será objeto de nuestra intervención arquitectónica.
Imágenes 3D de la casa en la actualidad y proyección futura: Ofrecen una comparativa entre el estado actual y la visión futura de la casa después de nuestra intervención arquitectónica.
Imágenes axonométricas del proyecto:
Planimetría de la casa actual y muros a demoler: Se enfoca en la estructura existente y los muros que se demolerán para dar paso al nuevo proyecto, ofreciendo una visión detallada de la distribución de los espacios actuales.
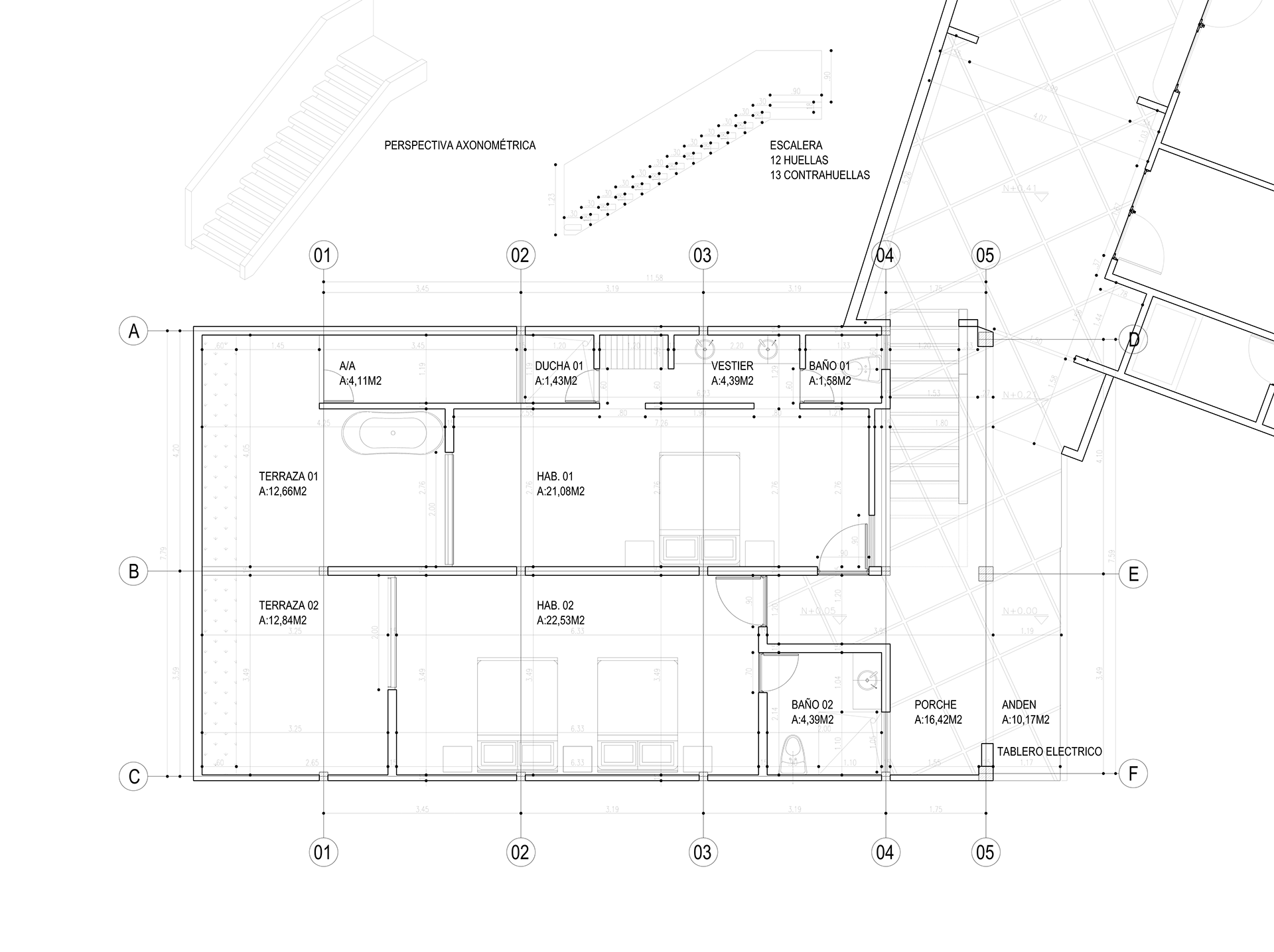
Planimetría arquitectonica del proyecto:
Renders del proyecto:
Descripción del proyecto:
Este proyecto revitaliza una casa adquirida por el Hotel Blue Star Cancún, conectándola con el hotel mediante la demolición de una habitación para dar paso a cuatro nuevas habitaciones adicionales. El objetivo es expandir la oferta de alojamiento del hotel y crear una experiencia integrada para los huéspedes. La integración de la casa con el hotel busca aprovechar al máximo el espacio y ofrecer una experiencia única que refleje la esencia de la hospitalidad caribeña.
客服
消息
收藏
下载
最近



















