查看完整案例

收藏

下载
项目概况
Project Overview
项目位于上海时尚地标新天地,是服装品牌 BlindNoPlan 的首个零售店铺。场地是一个开阔的方形空间,我们希望通过一个简洁并且逻辑清晰的设计语言,为品牌打造出令人印象深刻的视觉形象和充满场域感的购物环境,为品牌的传播和顾客的停留提供一个容器。
The project is located in Shanghai’s fashionable landmark, Xintiandi, and serves as the first retail store for the clothing brand BlindNoPlan. The site is an open square space, and our goal is to create an impressive visual identity and an immersive shopping environment through a simple and coherent design language. This space will act as a vessel for brand promotion and customer engagement.
▼入口处,Entrance© 立明
© 立明
设计构思 Design Concept▼空间轴测,axo© VANISHED Design
The square space is divided into thirds both horizontally and vertically. The horizontal division separates the central display area from the shopping pathways on either side, while the vertical division defines the areas for fitting rooms, cashier, storage, and retail. These divisions are reinforced by a beam-column structural framework, creating an open and free-flowing layout. At the center, a bare-structured rotating wardrobe and a temporary phone booth installation form the most striking visual impression of the space.
▼梁柱框架,Beam-column frame © 立明
▼梁柱框架细部,Beam-column frame details © 立明
视觉形象 Visual Identity 整个店铺像一个微型的工业建筑,由最基础的框架结构意向构建出一个冷峻的工业生产线的形象,反映出当代工业制造体系的高效和冷漠。梁柱上缠绕的金属框架,以及线条灯带,进一步强调了这种结构感和秩序感。当店铺中的陈列挂满,这些衣服就像刚刚从机器里生产出来,在等待质检和出厂,仿佛这些衣服都是“新鲜”的一样。
The entire store resembles a miniature industrial building, constructed with basic framework structures to evoke the image of a stark industrial production line. This design reflects the efficiency and coldness of contemporary industrial manufacturing systems. The metal frames wrapped around the beams and columns, along with strip lighting, further emphasize the sense of structure and order. When the store is fully stocked, the clothes appear as if they have just been produced by machines, awaiting inspection and dispatch, giving an impression of freshness.
▼收银台及监控器,Cashier counter and monitor © 立明
▼镀锌方管收银台,Galvanized square tube cash register © 立明
▼纪念碑式的支撑体块,Monumental supporting blocks © 立明
设计细节 Design Details
▼中央衣柜结构,first floor interior overview© VANISHED Design
Opening the metal grating doors at the entrance reveals a phone booth installation at the center, serving as a branded photo spot. Behind it is a rotating steel structure wardrobe, inspired by gantry cranes in shipbuilding. The central area’s floor uses aircraft skin-like material from the aviation industry to enhance load-bearing capacity and rigidity.
▼中央衣柜,Central wardrobe © 立明
▼中央衣柜细部,Central wardrobe detials© 立明
两侧过道的挂衣杆在构造上使用了不锈钢板作为支撑肋,中间穿插着品牌纪念碑式的支撑体块,顶部通长的悬挑的照明灯带则采用了钢结构拉杆,营造出一体化的视觉连贯性。
The clothes rails along the side aisles are supported by stainless steel plates, interspersed with monumental support blocks bearing the brand’s insignia. The continuous overhanging light strips at the top are supported by steel rods, creating a unified visual flow.
▼试衣间,Fitting room© 立明
▼悬挑的照明灯带,Lighting design© 立明
收银台部分直接采用了最原始的镀锌方管堆叠,就像厂房工地中临时放置的建筑材料一样。上方则是将监控器的画面实时传输呈现,让“工程师们”可以实时查看“生产线”的流程进展。背后的镜面将空间镜像延伸,同时做了一组和入口一样的金属格栅门进行呼应,来暗示工业化流水线结构空间的无限复制和延展,就像一个逃不出去的牢笼。
The cashier area uses raw galvanized square tubes stacked together, reminiscent of construction materials temporarily placed at factory sites. Above, real-time footage from surveillance cameras is displayed, allowing “engineers” to monitor the “production line” process. The mirrored backdrop extends the spatial perception and echoes the metal grating doors at the entrance, suggesting the infinite replication and extension of the industrial assembly line structure, akin to an inescapable cage.
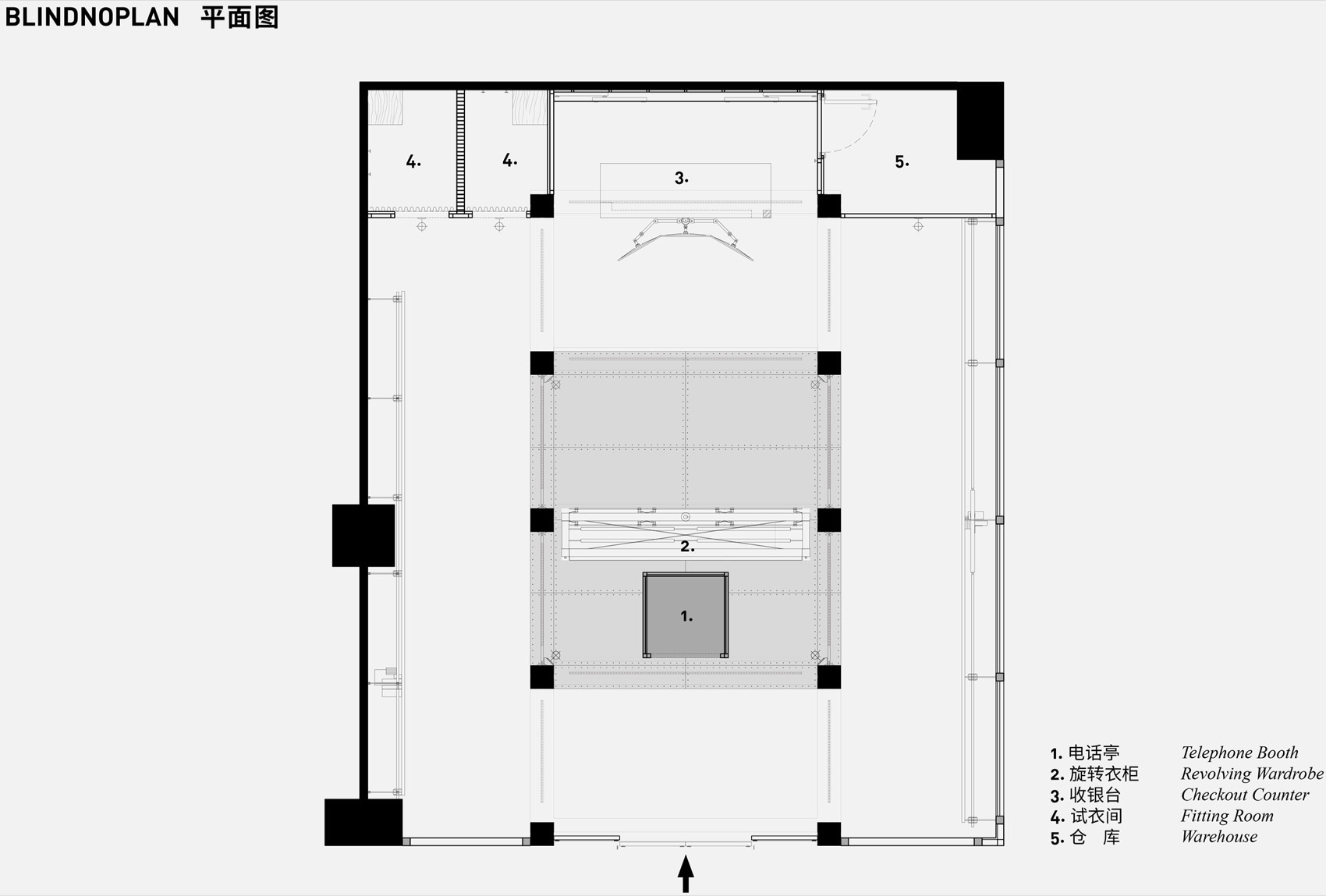
▼平面图,floor plan© VANISHED Design
项目概览
项目名称:BLINDNOPLAN 上海新天地店
项目地点:上海市黄埔区
项目面积:85㎡
设计机构:VANISHED Design
设计师:张家赫
设计时间:2023.11
完工时间:2024.1
项目摄影:立明
文字:张家赫
Project overview
Project name:BLINDNOPLAN Shanghai Xintiandi Store
Project location:Huangpu District, Shanghai
Project area:85㎡
Design agency: VANISHED Design
Designer:Jiahe Zhang
Design time:2023.11
Completion time:2024.1
Photography:Liming
Xiaohongshu:VANISHED Design
Design description: Jiahe Zhang
客服
消息
收藏
下载
最近

























