查看完整案例


收藏

下载

翻译
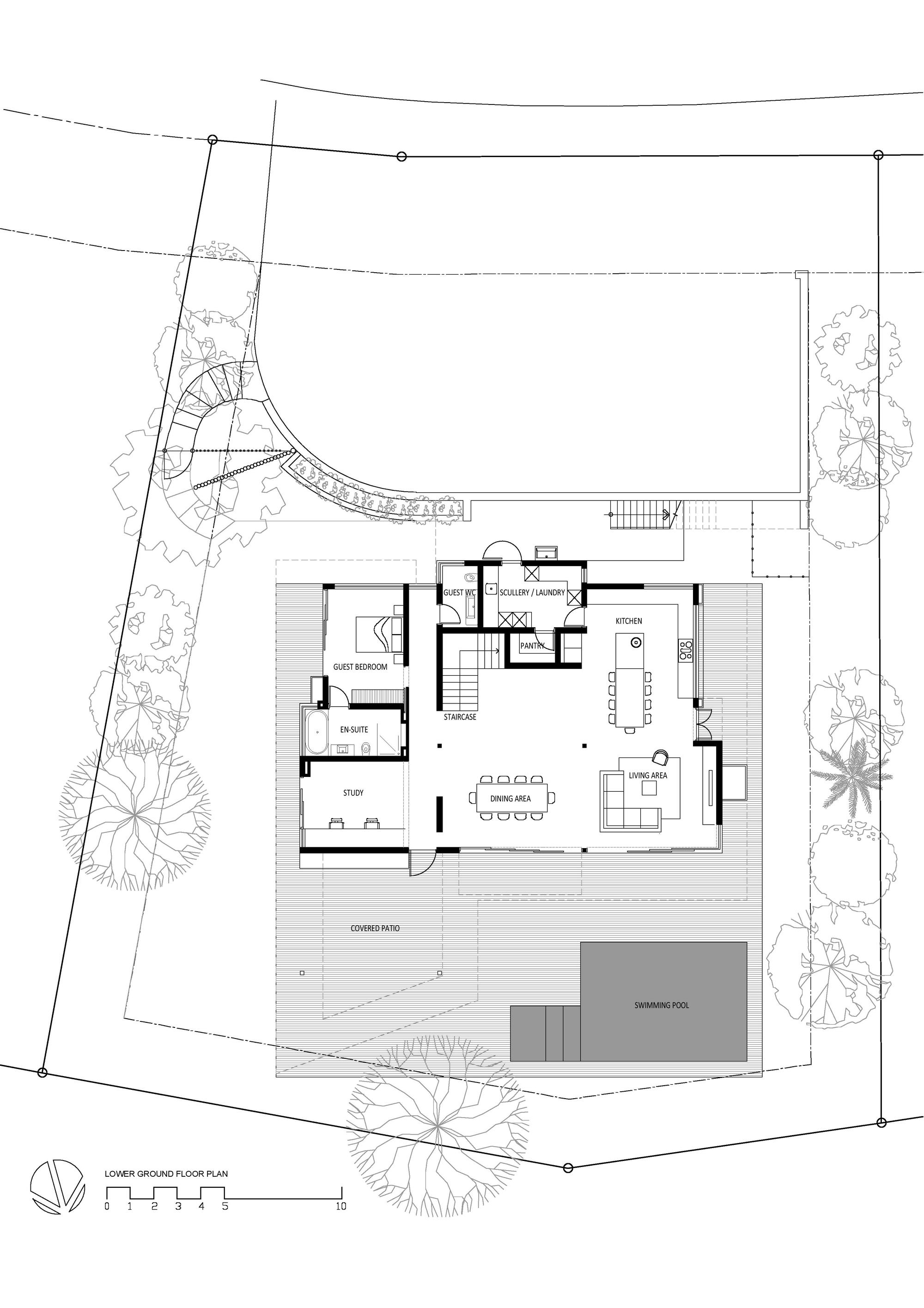
The intent of the design was to really take full advantage of the beautiful "forest" site. With such thick bush encapsulating the house, privacy and direct sunlight were not really issues, so that enabled us to use large amounts of glazing to views and natural light on offer and reinforce the indoor/outdoor lifestyle desired by our clients.
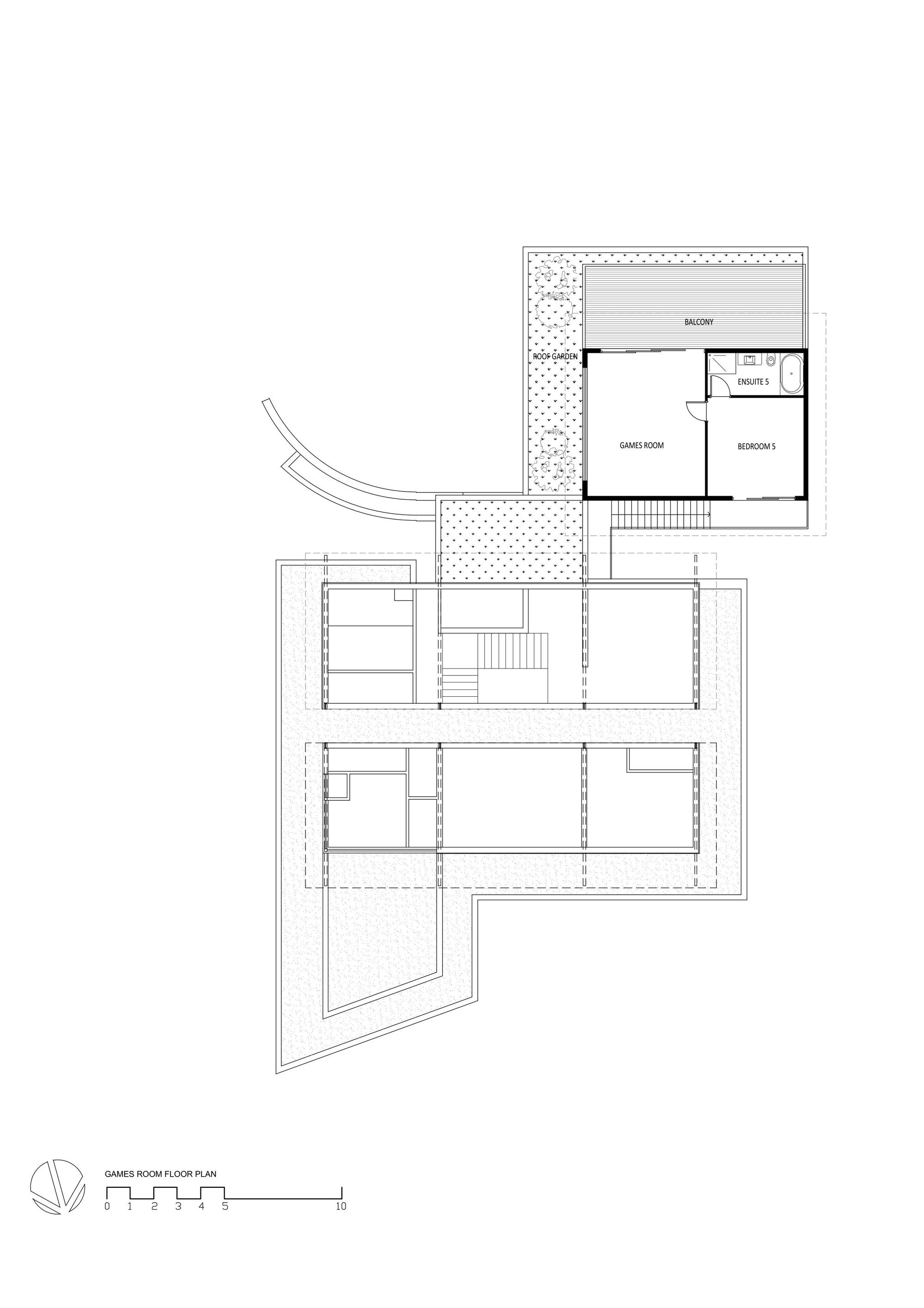
Volumetric play was a theme that was explored with the design, with the double volume staircase area, as well as the high-level glazing and raked ceilings on the top floor, and the generally high ceilings throughout. The main bedroom cantilevers over the covered patio below, and the concept for the splayed form of this feature is to "thrust" the main bedroom out towards the view of Fish Eagle dam, as well as create a sense of movement and drama to the architecture.
The private and tranquil setting within the forest allows the wildlife to get as close as possible to the house. The residents are fortunate to get Giant Kingfishers on the upstairs balcony each morning and frequent visits from the buck and porcupine in the garden below. Extensive use of wood, metals, and stone by the interior designer make the home feel organic. Each room was designed to flow to the outside which accentuates the feeling of space and unity with nature.
客服
消息
收藏
下载
最近







































