查看完整案例

收藏

下载

翻译
ARQT-1507 | (2020-01)
INTRUMENTOS 1
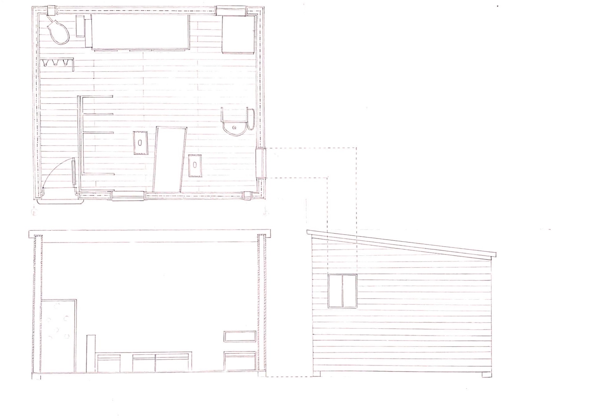
Es un curso introductorio que tiene como objetivo brindar a los estudiantes los fundamentos del dibujo básico arquitectónico. Durante el curso, se utilizan diferentes herramientas y técnicas para el dibujo a mano alzada, como el control de línea y la representación de figuras geométricas básicas.
Además, del dibujo de una casa en planta y axonométrica, este ejercicio también ayuda a comprender las relaciones espaciales entre los diferentes ambientes y elementos de una casa, y a desarrollar su capacidad de visualización espacial.
El enfoque del curso está en el desarrollo de habilidades prácticas y en el fortalecimiento de las destrezas manuales de los estudiantes. Se fomenta el dibujo a mano alzada como una herramienta valiosa para la exploración y el diseño arquitectónico, y se enseña a utilizar la técnica adecuada para cada tipo de dibujo y a trabajar con diferentes escalas.
Módulo 1: Control de línea, Construcciones geométricas básicas
Módulo 2: Proyecciones ortogonales
Módulo 3: Axonometría y Perspectiva
客服
消息
收藏
下载
最近








