查看完整案例

收藏

下载

翻译
MUCE
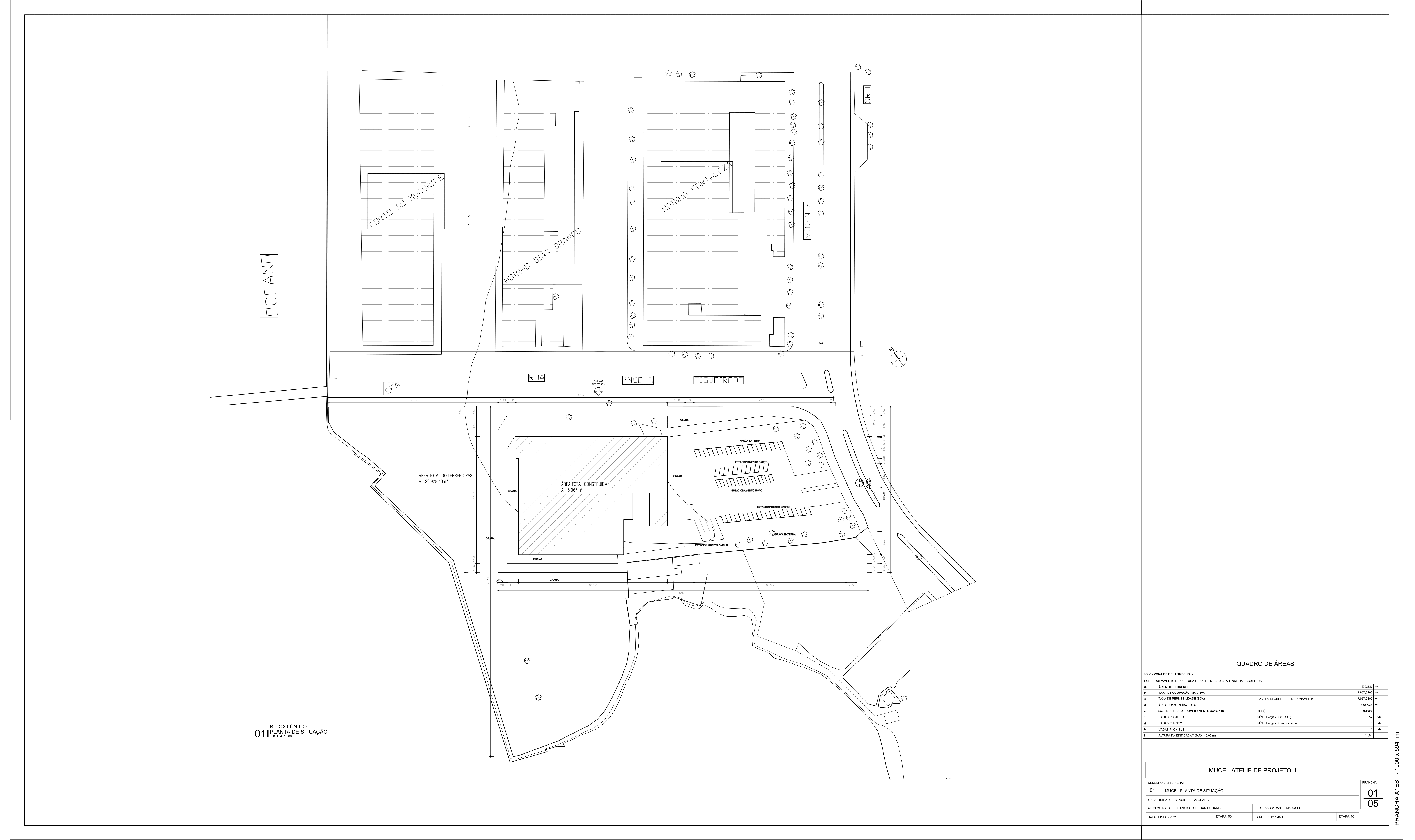
O presente projeto destina-se a instalação do Museu Cearense da Escultura. Edificação com um pavimento possuirá salas de aulas, oficinas de aprendizagem, salas de reunião, salas de administração, uma recepção com hall de acesso, um auditório, instalações sanitárias, além de uma loja, cafeteria e salas de exposições. A obra será implantada na cidade de Fortaleza, CE.
A idéia base foi criar uma linguagem moderna e ao mesmo tempo funcional e confortável. Foram observadas as condições climáticas da região, para o melhor aproveitamento da energia solar, ventos e das águas pluviais. A otimização dos espaços, a forma e o conforto dos ambientes, pretendem contribuir com o desenvolvimento intelectual e produtivo dos usuários. Usufruindo de todos os métodos construtivos atuais.
客服
消息
收藏
下载
最近











