查看完整案例

收藏

下载
探讨城市与建筑的图底关系,不仅仅要研究肌理、边界、空间的组织形式,同时更要关注人的活动路径及行为模式,即行为与空间的交互作用。
Mango Malanshan Cultural Plaza explores the fluid and indistinct figure-ground relationship between the city and architecture. It aims to dissolve the closed boundaries of conventional architectural forms and revitalize daily urban life.
“每个建筑都是城市,而城市是某种规模的建筑”。——雷姆·库哈斯(Rem Koolhaas)
▼北向鸟瞰:“创坊聚落”与城市,Arielview from the north©许昊皓
城市与建筑的主客一体,让我们不禁好奇,是否在互为图底这种二维单一的关系之外,存在双层的图底关系:第一层是建筑与城市之间的图底关系;第二层是建筑单元要素与建筑整体之间的图底关系。
▼架空空间:“创坊聚落”单元要素与整体,elevated space: ‘Settlement as Creative Workshop’ elements and whole entity©许昊皓
调研与背景 Research and background ▼媒体人的行为与空间模式分析,media professionals behavior and space mode analysis©地方工作室
The project is located at the Malanshan Video Cultural and Creative Industry Park. Research has shown that media professionals, the primary users, have significantly irregular working hours, locations, and teams. Media production requires a seamless connection with society, which can be challenging to achieve in enclosed, container-like spaces.
▼开放的城市界面,open city interface©许昊皓
设计试图构建一种“创坊聚落”的空间体系,与作为“底”的城市进行耦合,使其空间生产模式契合媒体的真实行为与模式。
The project attempts to construct a spatial system of ‘Settlement as Creative Workshop’ in its design, and intertwine this system with the city, which serves as the ‘ground.’ This approach makes its spatial production mode align with the real behaviors and patterns of media production.
▼开放的城市界面,open city interface©许昊皓
模糊的图底关系 Blurring Figure-Ground Relations
一般意义上的城市与建筑,图底关系是清晰的,界定是明确的,这亦是其清晰权属关系使然;同时也是我们习惯于建立硬化、刚性的边界,来围合出各自的使用空间。而该项目旨在通过研究聚落组合关系、聚落与城市之间的融贯互通,以及聚落内部的单体构成,来消解和弱化清晰的图底关系,使建筑与城市的图底关系趋于模糊。使两者之间存在图底对位、互换、模糊的可能性,使模糊性的、不可预期的社交生活成为可能。
▼清晰的图底关系 VS 模糊的图底关系(鲁宾杯),clear and blurring Figure-Ground Relations©地方工作室
“创坊聚落”由 12 个混凝土盒子构成,它们以散点透视般的错、动、扭、转,随机自由、互成角度的散落于场地。盒子之外的首层架空处理,“空”于城市,还与市民。区别于传统沿街界面的图底鲜明,它们之间的边界取消、图底模糊。建筑首层也成为了城市公共空间的一部分,而城市公共空间是社交生活的“容器”,社交生活是城市公共空间的内核。
▼模糊的图底与不确定的交往空间,Blurring Figure-Ground Relations and uncertain social space©地方工作室
The ‘Settlement as Creative Workshop’ consists of 12 concrete boxes, distributed randomly and freely across the site, oriented at various angles. These boxes create a dynamic landscape of staggering, movement, wrapping, and rotation in scattered perspectives. The ground floor outside the boxes is elevated to create ‘void space’ for both the city and its citizens. Unlike the clear and distinct figure-ground relationships of traditional streets, this project cancels boundaries and blurs the figure-ground relationship, creating a fluid interaction between the built forms and open spaces.
▼“图-底”图式的构成,’Figure-Ground’ composition©许昊皓
盒子与盒子又形成“间”的关系:夹着隆起的“浅丘”,形成商业功能的“间”;相隔较近的形成狭缝的“间”,如传统民居中的一线天;伴随着下沉台阶、坡道的,又形成了路径的“间”。“间”的关系反哺着建筑的“空”,它丰富着公共空间的社交体验。
▼模型,model©地方工作室
The ‘gap space’ is formed between the boxes: the rising ‘shallow hills’ sandwiched between boxes create a ‘gap space’ for commercial functions; boxes close to each other form narrow ‘gap spaces’ reminiscent of the sky slits seen in traditional dwellings; sunken steps and ramps between boxes form ‘gap spaces’ that act as pathways. These ‘gap spaces’ enrich the ‘void spaces’ and enhance the social experience of public space.
▼东南角:盒子、吊桥、“浅丘”,south-east corner: box, bridge and‘shallow hills’ ©孔锦权
▼“浅丘”之下,under the‘shallow hills’©孔锦权
“空”与“间”的关系处理,回应的是建筑如同聚落般与自然之间边界的融通,“创坊聚落”也与城市相互渗透,彼此共融。
The relationship between ‘void space’ and ‘gap space’ echoes the integrated boundaries between architecture and nature, similar to a settlement. The ‘Settlement as Creative Workshop’ and the city interpenetrate and communicate with each other.
▼互成角度的盒子,Interlocking angled boxes©孔锦权
▼互成角度的盒子,Interlocking angled boxes©许昊皓
多维的图底关系 Multi-dimensional Figure-Ground Relations
“创坊聚落”本身也存在着“图—底”关系,它不局限于二维的常规平面化操作,而是立体多维的,同时更强化了时间维度在空间体验中的感知。
The figure-ground relationship is also evident within the ‘Settlement as Creative Workshop’ itself. The transparent inner receding curtain and the solid fair-faced concrete form the figure-ground pattern of the interface.
▼建筑底部“空”于城市,还与市民,shared ground floor space©孔锦权
▼建筑底部“空”于城市,还与市民,shared ground floor space©许昊皓
架空之上,盒子单元之间的错动,看似随机,实则受制于承载结构、悬挑距离等力的制衡法则。真实的室内围护立面内退,留出了非实用功能的室外平台、景观庭院、空中游廊,与疏密有间的结构柱等共同构建了属于该项目的界面。
通透的内退幕墙,与实体的清水墙面构建了属于界面的“图-底”图式,它不仅形成了视觉的形式,更重要的是提供了活动展开的场所,游廊之上,平台之间,催生着各种未可预知的事件。游廊本身是功能性的,它可联系上下层;亦是漫游式的,它与景观庭院、室外平台一起,成为人们的休憩之所。在此一切的使用都与办公无关,它与低效的得房率一起,抵抗着常规的“效率”,呈现一种熟悉又陌生的“怪诞”。
架空之上亦存在一个诺大的空中共享大堂,旨在提供咖啡、书吧、展览、路演等非办公、非实用的“功能”。我们希望这些非实用的“功能”与办公功能,在有限的容积率内异化重组、彼此交融,或许对应着提供创意的场所,而不是常规的那样崇尚“效率”、单一、机器般的功能空间。
▼空间层次轴测分析图, axonometric©地方工作室
A large shared lobby occupies the elevated space, offering non-office and non-practical functions such as cafes, bookstores, exhibitions, and performances.
▼空中共享大堂,large shared lobby©孔锦权
游廊、庭院、平台、大堂等要素自此形成了属于建筑的“图”,但当行径其间,又感觉它属于城市,因为此刻明显身处室外,犹如微缩的“广场”与“街道”,应该是城市的“底”?或许属于谁的“图”或“底”都已不再重要,在此驻留行径时,光、风、视野与感受才重要。
Thus, elements like verandas, courtyards, platforms, and lobbies create the ‘Figure’ of the architecture. However, as one strolls through it, these elements also feel like parts of the city, resembling miniature squares and streets, which should be considered the ‘Ground’ of the city. Ultimately, distinguishing between ‘Figure’ and ‘Ground’ becomes less important; what matters are the sensations of light, wind, vision, and experience while inhabiting these spaces.
▼外围廊道与路径,verandas and routes©孔锦权
▼天井、廊桥,skylight and corridor©孔锦权
▼柱、墙、人,corridor, wall and people©孔锦权
结语
Conclusion
该项目实现了图底的“活化”理解,通过“创坊聚落”的形式,构建了双层图底关系。模糊了建筑与城市的边界,强调了城市公共空间的社交功能,使实体公共空间更具活力。同时,聚焦建筑自身的多维图底,探讨了“创坊聚落”单元要素与整体、城市及人的行为之间,多向、立体的图底关系。这种双层图底关系,呈现出一种自组织状态的空间结构,以离散结构取代了单一结构的组织特征。
在当下信息媒介时代,人与公共空间的关系已经重构,旧的、基于空间远近的社交逐渐被虚拟的、无视远近的社交媒介取代,实体空间似乎逐步消解,而“创坊聚落”正是对此的一次温柔的抵抗,揭示出建筑与城市空间的“矛盾性”与“复杂性”。
如同保罗·克利(Paul Klee)的“湍流中的鱼”一样:鱼的线条逐渐演化为水纹的线条,二者融合在一起。我们希冀“创坊聚落”、城市与人三者“鱼水交融”,催生着各种“非正式”、“非正规”、“非理性”、多维可能性的交往空间。
▼湍流中的鱼, Fishes in the Torrent©保罗·克利(Paul Klee)
▼夜景鸟瞰图:天井、廊桥、平台与“浅丘”,night view©许昊皓
▼场地区位, site map©地方工作室
▼首层平面图, ground floor plan©地方工作室
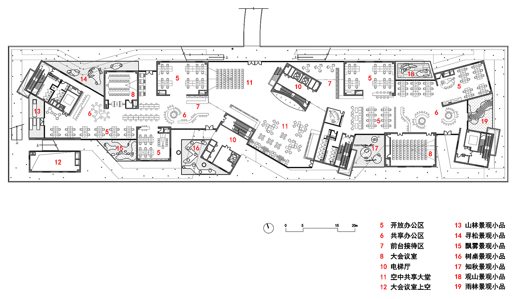
▼二层平面图, first floor plan©地方工作室
▼三层平面图, second floor plan
©地方工作室
▼四层平面图, third floor plan©地方工作室
▼剖面图 1, section 1©地方工作室
▼剖面图 2, section 2©地方工作室
▼剖透视分析图, section-perspective analysis©地方工作室
▼墙身大样, wall detail©地方工作室
项目名称:湖南广电芒果马栏山广场
项目类型:建筑
建成状态:建成
设计时间:2019 年
建设时间:2020-2023 年
用地面积:55358.03㎡(总净用地面积);14258㎡(一期净用地面积)
建筑面积:55016.45㎡
设计单位(中英文):地方工作室/Regional Studio 湖南大学设计研究院有限公司/Hunan University Design and Research Institute Co. Ltd.
主创建筑师:魏春雨
设计团队(项目参与人员):
地方工作室: 刘尔希、蒋康宁、李毅飞、肖倩、欧阳胜、曹开元、裴伟华、任蓉、吉瑞瑞、丁自力、蔡晟霖、刘思雨、刘骞、周欢、张劲草、杨汝艳、曹广、刘星宇、王瑞、陈行、蔡肇奇、张懿、游佑萱、叶宇琦、侯帅东、谢孜菲、雷磊、白喆、任雅倩、马薇茜
湖南大学设计研究院有限公司:罗学农、王欣、朱建华、邓远、刘剑、张宁、罗轶伦、周宏杨、李成、钟鸣、刘付华
结构设计:湖南大学设计研究院有限公司
机电设计:湖南大学设计研究院有限公司设备所
室内设计:长沙视码空间设计有限公司、HMD 空间设计工作室
景观设计:湖南水立方建筑与景观设计有限公司
幕墙设计:湖南大学设计研究院有限公司复杂性结构与幕墙设计研究中心
夜景照明:湖南兰德马克照明设计有限公司
建设单位:湖南马栏山芒果实业有限公司
施工单位:中建五局总承包公司
摄影师:许昊皓、孔锦权
客服
消息
收藏
下载
最近









































