查看完整案例

收藏

下载
项目名称:韩国DADAM商业和办公楼
位置:韩国
三甘洞,麻浦区是巨大而多样的现代建筑的所在地。“达达姆”巧妙地揭示了它的存在。达达姆建筑体现了业主希望“包容所有希望和愿望”的愿望。我们想融入达达姆的身份和价值,这样它的意义可以在建筑中找到。砖块被用来展示这座建筑在现代建筑中的存在。砖创造的色调和深度在幕墙建筑中创造了一种经典和独特的外观。我们通过利用“达达姆”的线性元素,并将其扩展到建筑外墙的框架中,对图像进行了提炼。我们将结构和框架的各个部分叠放在一起,突出了它们的重要性。我们计划让柔和的光线透过砖缝,创造建筑的存在,并让一层阳光渗入室内,照亮空间。
韩国DADAM商业和办公楼外部实景图
韩国DADAM商业和办公楼外部实景图
韩国DADAM商业和办公楼外部实景图
韩国DADAM商业和办公楼外部实景图
韩国DADAM商业和办公楼外部实景图
韩国DADAM商业和办公楼外部实景图
韩国DADAM商业和办公楼内部实景图
韩国DADAM商业和办公楼内部实景图
韩国DADAM商业和办公楼内部实景图
韩国DADAM商业和办公楼平面图
韩国DADAM商业和办公楼平面图
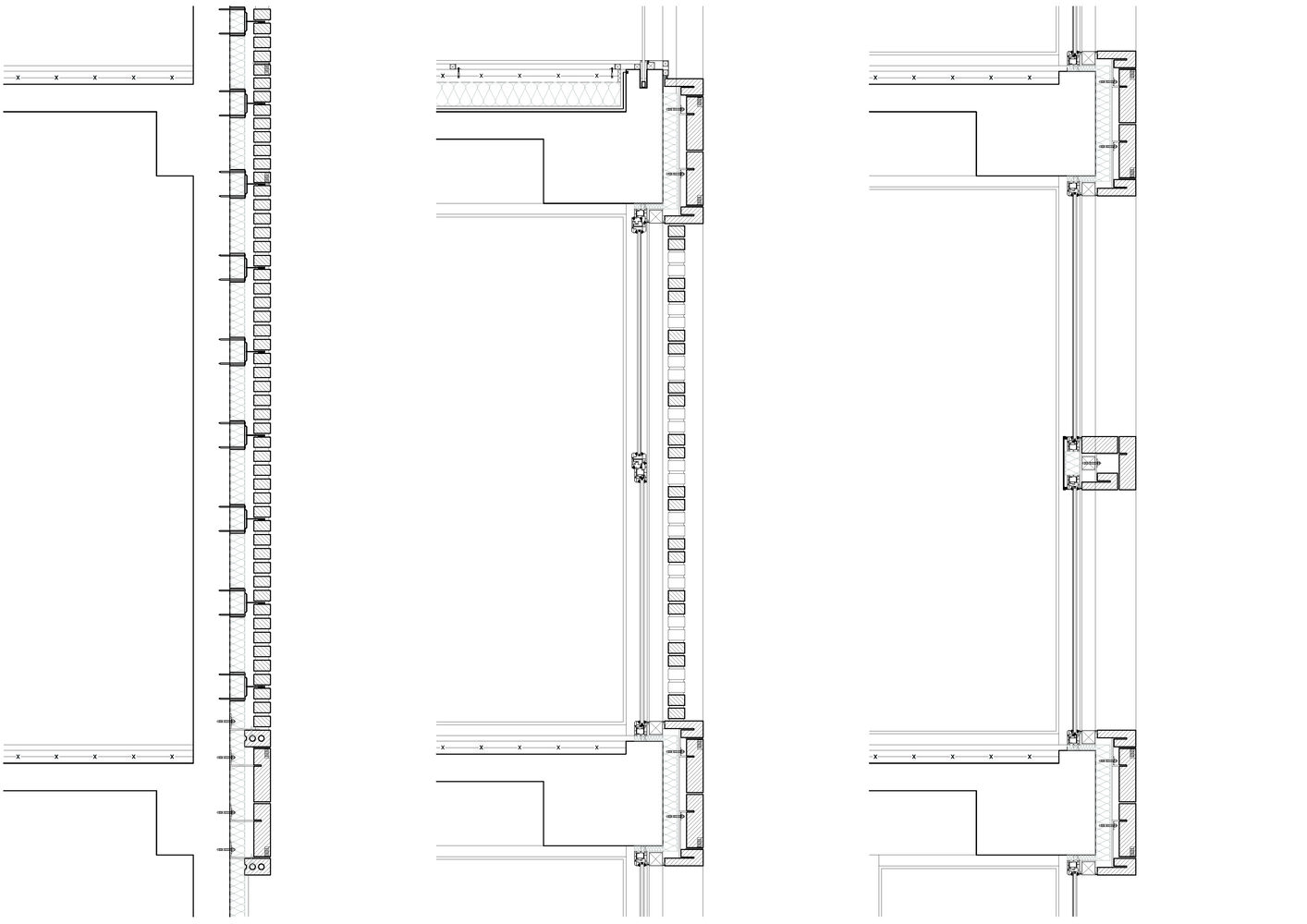
韩国DADAM商业和办公楼剖面图
客服
消息
收藏
下载
最近















