查看完整案例

收藏

下载
项目地址:月亮湾壹号
建筑面积:155㎡
设计风格:现代
软装搭配:艺境·陈设软装
常住人口:3 口之家,2(夫妻俩)+1(男宝)。设计类型:改善型住宅。
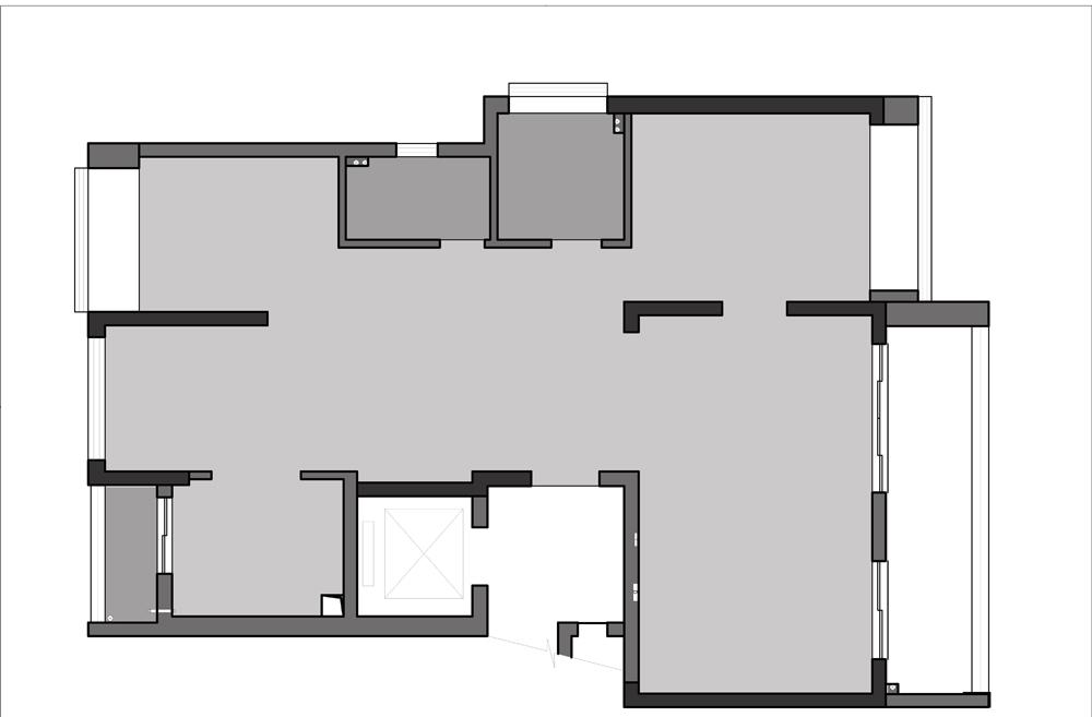
平面布局优化
两处洄游动线,让家宽绰且功能强大。
①横厅。书桌紧靠沙发,以此为中心,观影、洗衣房、满墙收纳等生活功能环绕排布,生活便利的同时,空间依旧开阔,居者入住之后,将会成为寓教于乐的生活场。
②艺术面盆。镜子不对门,不要闭塞过道,如艺术装置般的洗手台就这样诞生了。
更丰盈的生活体验
树屋让孩子拥有专属于自己的玩耍空间,而其本质是空间的垂直运用,让小孩房功能更强大。
收纳空间要很多,才能享受格调生活
利用电梯厅的空间,让居者能换上干净的鞋子后,再进入家中。主卧室在床尾设置满墙衣柜,容量更大,原本衣帽间的位置划分出来,成为家中的杂物间,可以把小孩子的各种玩具车、快递盒子等杂物收纳进去。
玄关背后的杂物间,饰面板由玄关转折过来,增加一条线性灯,空间更具流动性,隐形门让家更简美。
把镜头拉近,光影如纱,似薄烟袅袅,斑驳陆离,美轮美奂。
“淡极始知花更艳”就像流传百世的诗句,越是简短,越能得到世人的传唱,或许设计同样需要「字字珠玑」。镜头拉远,画幅扩大,爽朗的线条,明了的体块,在疏密变换间,材料与形体配比之中,精准的表达出了现代简约的风格形态,当然,也叙述了直白、热烈的生活。
客厅与餐厅通过玄关对望,摊开了整个户型的南北尺寸,空间透过窗户得到延展。雅色素而暖,灯影柔却有力,梁体结构恢弘苍劲,设计无形但有型,构建起空间格调,同时拉高了空间。
收纳功能顺着墙体铺设,隐于四周,中空部分任由一家 3 口自由发挥。
灯下围坐,或品读书籍,或谈天说地,或观影放松,或听雨打窗棂……只要一家人在一起,就有很多事情可做,一切平淡日常,都成为了温情可回味的点点往昔。
横厅的存在,是把更多的家庭空间让渡给了公共区域,以此来促使人在空间中的聚集。
女主人希望这个横厅能促使一家人更多的待在一起,从户型看是舍弃一间房,但从生活来看是获得了更多。
初夏的晚霞揉开了太阳,地板上稍纵即逝的橙红无比动人。在某个傍晚,童稚的读书声与灯光和夜色交融,空气中慢慢氤氲出食物的香气,一家 3 口在绰绰光影里品味生活悠长。
黑色悬挑电视柜划出上下分界线,笔锋由淡转浓,包裹住电视线路,也散发出空灵感。在天花、墙面上,向上、向下或向旁侧出光的线性灯,重构了面与面的关系,为形、体与空间着墨,营造向内庇护的温暖感。
“枕上诗书闲处好,门前风景雨来佳” 阅读本就是件惬意的事,隐于无形,藏在生活常态当中是最好的。边柜、绿植、艺术画组成端景,让视线不自觉的往这面墙上停留,书画缄默不语,墨香已凝练成诗。
洗衣机、烘干机并排放,有窗户通风,也有水池让居者手搓点小衣物,电动晾衣架满足偶尔的晾晒需求,拉上门之后,家政用品全被隐藏,谁能不爱这洗衣房。
餐厅是长条形的,用岛台做了横向切割,空间形体瞬间合理了,关键是补充了茶水台功能。
繁密的线条,凹凸有致,立体的光影,自然而然的形成深浅变换,上下错落连接,在大框架的宏大中,隐匿着精巧的细节,简约而不简单。
① 家电都是嵌入式,提前预定、确认好家电尺寸,才能做到严丝合缝。
② 高低台设计,更符合人体工程学,洗菜、炒菜都能更省力~
③ 看不见的地方用杂砖,看得见的地方用 900*1800 的大砖,省钱美观我都要!
④ 聚脲彩砂美缝剂,抗油抗污更容易打理。
⑤ 无挡水无下挂 12mm 岩板台面,更加极简轻盈。
换种维度来看,设计是与空间使用者共创更多日常体验的生活方式。面盆可以隐藏进卫生间,成为小巧而便利的存在,也可以风采卓然,很出挑的屹立在公区,没必要说哪种更好,主要是让居者多了不同寻常的生活体验。
洄形动线的本质是创造流畅的居家生活动线,让各个功能空间在优良逻辑的基础上融合,双面镜子加强了空间的融合属性,透过镜子,两边的空间(餐厅&客厅)在此处交融。
上图:通过镜子,横厅空间被镜像。
下图左:镜子中的餐厅。
下图右:镜子中的过道。
视觉变换多样,颇有“横看成岭侧成峰,远近高低各不同”的趣味。
宝格丽大理石像是扎染后的纹理,优雅而自由。
用木饰面优化床头背景墙的比例,使其有横向延伸的势态,而其本质是为了免除床靠背,缩短床品整体的纵向长度。在开间 3.37m 的卧室里,设置了超 4m 长的顶天立地衣柜+次净衣挂衣区,储物量直接 next level⤴。
可拆除的飘窗结构全部拆除,墙面凸出的柱子被设计成开放式的收纳区,梳妆台选用了形态轻巧的结构,让空间更有开阔之感。
因墙体穿孔的设计,空间更有通透感,鹅蛋状的艺术镜搭配背光,更灵动优雅,用壁龛充当台面上的储物,也很妥帖。
树屋的本质是空间的垂直运用,上面休息,下面玩耍,还留出了 3 扇门的衣柜,小朋友一个人用足够了。窗边的空间被留出来了,未来可以摆上他的书桌。
客服
消息
收藏
下载
最近















































