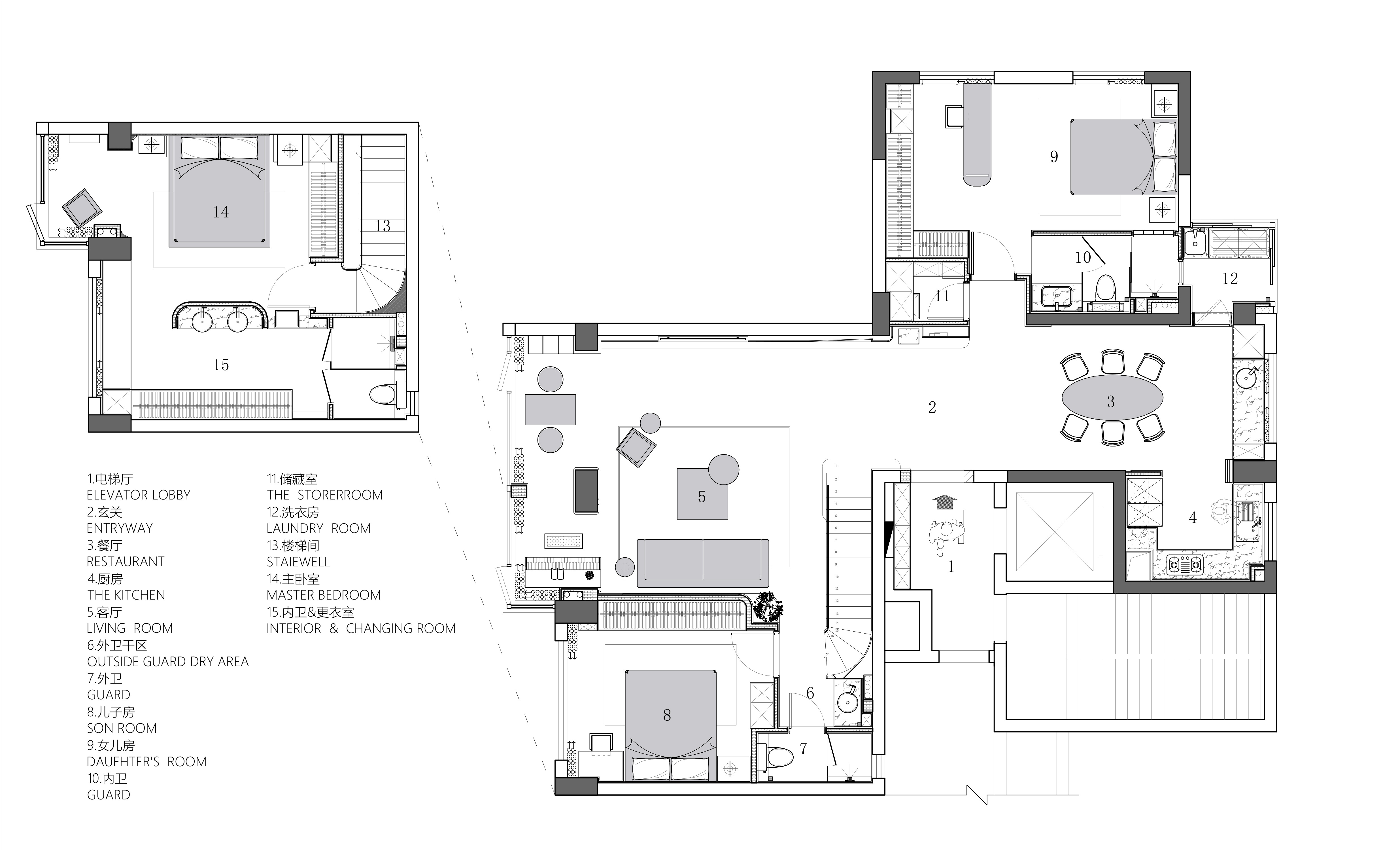
查看完整案例

收藏

下载
一朝繁华流转恍入浮光似梦演绎一幕幕璀璨的人生剧场
01繁花似锦本案借设计之光,引艺术之彩,形影交互间勾勒生活的华实质感。
设计依循自然脉络,在生活与空间的交汇点上刻画光影路径,自由调度场域形态与意境,为这处私享空间搭建精致的复古主义框架,随时光流转,与自然共生。
客厅铺叙暗调氛围,以光束勾勒空间骨架,着明绘暗间穿透物质表面肌理,深刻感知光、线条、材质的和谐对冲,将每一处细节沉浸于对美学的细腻考量中。
沙发背景内嵌金属镂空装置,设计以雕刻手法将像素艺术进行可视化的趣味呈现,为质感复古空间增添现代潮流元素,实现多元灵感的碰撞与交融。
承重柱将客厅与阳台分隔过渡,设计采用大理石包裹柱体,通过“自然破碎”的形态处理,强化体块的存在感。蜿蜒的拼接处与弧形门洞柔和相辅,打造内建筑立体框架,以极致的艺术表现力塑造空间的平衡与游离。
循光在公共区蔓延游走,逐层打开一幅深邃的自然画框。电视机背景墙定制整块绿色大理石,层次纹理如碧波浮动,为公共区释放轻盈呼吸,沉浸于一场生态的质感体验。
临窗而席,沐光栖居,无形之韵在这方天地流转,释放无际生活纵深。灵活的陈设为居者搭建开放共享的公共空间,适时迎合未来生活方式的变化。
02自然和鸣公共区主脉络连接客餐厅始末,视野纵横间仿佛游走于不同的艺术世界。设计以光影画作为灵感,平衡整体暗调氛围,在色彩的张弛演绎中,释放更深刻的情绪感知。
餐边柜作为西厨的延伸,为厨房空间扩容,优化并丰富了烹饪内容。通过隐藏性的置物规划,实现更充分的收纳布局,释放空间功能的多样性。
楼梯作为上下立面的纽带,贴合建筑架构,以悬浮的形态逐层而上。每一级阶梯都是光影的舞台,通过跨立面的沟通感受每一幕生动流转。
楼梯处模拟了原生态栖居环境,观细微之朗华,塑一方灵气隽永的天地,恍若林深见鹿,聆听自然和鸣。原始生命力与生活质感于此形成紧密联动,焕新整个场域。
视野末端以弧形婉转落幕,在丰盈敞阔的实景中沉浸无限的精神世界,方寸间揽尽芳华。
03艺术华彩 设计为家庭成员设置不同的卧室主题,贴合居者内心的真实世界。二楼进入主卧,目之所及演绎另一番美学表达。设计以留白转译空间的现代基因,以恰当的尺度布局内建筑体态,融汇丰富的空间层次。
弧形墙体似隔非断,形成若即若离的适宜尺度,平衡寝居、衣帽间、盥洗室的关系。墙体正反面分别是电视投影与洗手台,不仅满足实用需求与收纳功能,同时增添空间的流动感。
墙面铺贴花型马赛克,复古氛围中尊享低调质感,使优雅日常再度实现升级。
女儿房以淡绿和奶白色,铺展清丽优雅的法式基调,窗户采用拱形复古元素,弱化原始结构的采光缺点,将居住体验聚焦艺术感知,实现浪漫主义的追寻。
书桌铺展温润色泽,萦绕于柔美的框架,营造静谧的阅读学习氛围。设计充分利用空间面积,布局灵动高效的收纳体系,实现功能与美学融合升级。
儿子房以沉稳的墨绿基调,展开层次丰盈的空间感。橙色点亮整体灵动氛围,述说男孩活泼的个性主张。设计读取不同时空下的光影演变,为多元场景切换更丰富的切面,在自然的生长共鸣中,演绎生活诗意。
项目信息 项⽬名称:循光,繁华归序
设计公司:霖社空间设计工作室
项⽬地点:浙江·温州
项⽬⾯积:180m2
主案设计:蒋美霖
内容策划:橙设传媒
项目摄影:居正
设计时间:2021年12月
完⼯时间:2023年9月
主要材料:大理石、木饰面、艺术漆、瓷砖、地板、马赛克、金属
客服
消息
收藏
下载
最近







































