查看完整案例

收藏

下载
Sabino 10是一个住宅项目,设计者通过扩大其视野范围重新塑造了这块狭小地块上的建筑。从外观上看,这是一栋由三个密闭体量组成的建筑,但其内部呈现了完全不同的观感。设计者优化的地块的使用,从而使住宅在视觉上扩大了,呈现出意想不到的宽敞感。
Sabino 10 is a residence that redefines its spatial boundaries on a narrow plot by maximizing its views. While it appears as a solid facade composed of three hermetic volumes from the outside, inside, this concept undergoes a complete transformation. The house visually expands, optimizing the plot area and offering a sense of unexpected spaciousness.
▼项目外观,Exterior © Ariadna Polo
建筑被划分为三个独立的体量,为业主提供了充足的户外活动空间,使他们能够充分享受到当地温和的气候。房屋向中央庭院开放,能够使人联想到Querétaro地区的传统住宅建筑。
The spaces are organized into three independent volumes that encourage outdoor activities, inviting inhabitants to enjoy the temperate climate of the area. The house opens up towards the central patio, evoking the traditional residential architecture of Querétaro.
▼室外庭院,Courtyard © Ariadna Polo
▼庭院中的绿植,Greenery in the courtyard © Ariadna Polo
室内平面采用“L”型布局,布置了客厅、餐厅、厨房、卧室和服务区等空间。设计者还打造了一个工作室,业主可以从庭院中的楼梯直接进入。室内的通高空间也是设计的一大亮点。这些体量围合出了中央庭院,整体体现了一种开放之感。
The floor plan follows an “L” shape layout, encompassing essential areas such as the living room, dining room, kitchen, bedrooms, and services. It also includes a studio with independent access via sculptural stairs in the patio. Additionally, a double-height volume with no specific program adds to the design. The arrangement of the volumes forms the central patio, creating a sense of visual openness throughout the residence.
▼室内空间概览,Interior view © Ariadna Polo
▼餐厨空间,Kitchen and dining area © Ariadna Polo
为了确保墙体的整体性,设计者将储藏空间和浴室都布置了胡桃木护墙板的后侧。朝向露台的部分被打造为悬臂式体量,并布置在墙壁一侧的滑动面板上,这样能够扩大室内的视野,并增强室内外之间的联系。厨房和用餐区是房屋中最具现代化的空间,在这里可进行聚会和家庭活动。
To maintain seamless walls, storage spaces and bathrooms are contained behind walnut wainscoting. Towards the patio, the volumes are perceived as monolithic masses in cantilever, resting on sliding panels within the walls, extending the view and enhancing the connection with the outdoors. The kitchen-dining area serves as the contemporary centerpiece of the house, fostering gatherings and family activities.
▼室内外界限,Indoor and outdoor boundaries © Ariadna Polo
▼悬挑的体量,Cantilevered volume © Ariadna Polo
室内外空间的选择也极为丰富,设计者使用了混凝土、木材和大理石材质,营造出凝聚力之美;地板的铺设也是连续的;中央露台中的银杨树也为项目增添了温暖的氛围。
The indoor-outdoor experience is enriched by a thoughtful selection of materials, where concrete, wood, and marble harmonize to create a cohesive aesthetic. Even the flooring maintains continuity, while the silver poplar in the central patio adds a touch of natural warmth.
▼较高层室内空间,Upper floor © Ariadna Polo
▼夜览,Night view © Ariadna Polo
设计团队在本项目中强调了空间流通性和小型体量的重要性,他们最大限度地对场地进行开发,为业主提供宽敞和舒适的居住体验。
Sabino 10 emphasizes the importance of circulation and slender volumes to maximize space on its plot, providing a sense of spaciousness and comfort for its inhabitants.
▼首层平面图,ground floor plan © Editorial
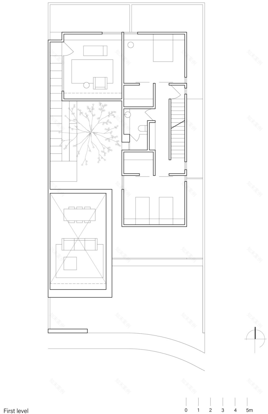
▼二层平面图,first floor plan © Editorial
▼三层平面图,second floor plan © Editorial
▼屋顶层平面图,roof plan © Editorial
▼剖面图,section © Editorial
Project name: Sabino 10
Location: Zibatá, Querétaro
Area
Built: 330 m2
Plot: 300m2
Firm
Editorial
Directors
Galileo Zuart, Santiago Martínez
Sitio web
Social networks
@arq.editorial
Photography
Ariadna Polo | @ ariadnapolo.foto
Collaborators
Structural engineering: Andrés Casal (@casalandres)
客服
消息
收藏
下载
最近





























