查看完整案例

收藏

下载
〝光线创造了一个地方的氛围和感觉,以及一种结构的表现。〞—— 勒·柯布西耶
室内面积 / 600㎡
室外景观面积 / 400㎡
空间性质 / 独栋别墅
合作模式 / 全案设计 全程托管
项目设计 / 观享际 SKH 室内设计
部分品牌 / BOSCH、VIFA、KNG、Listone Giordano、U+、Wulff、LENS、CasaDesus
Natuzzi、Minotti、Cattelan、Ditre Italia、Pianca、Kartell、Hothing、La Creation、Maxmarko、Weimo、Roche Bobois…
01.
Hallway
GuanXiangJi SKH Design
门厅(1F)
打破传统 布局重构
墙体圆柱包裹 柔化空间转角 赋予温情
开阔通透之余 透露直抒胸臆的利落
将时间还给居者
注入 生活仪式感
02.
Living Room
GuanXiangJi SKH Design
客厅
客厅外扩,格局方正。完全打通的流畅,一览无余。自然选材,柔和色彩,奢适性能。曲与直,交相呼应,以本真缔造纯净。
奶咖灰调质感。天花弧线柔化黑白灰的生硬沉稳。拱形落地窗融入,将室外景框映成画。留白处透彻感知,曲线承接变化空间的慵懒盈润。
自然色彩展开叙事 材质碰撞出节制与温润
木作 石材借由巧妙节奏 演绎大道至简
理性与浪漫交织 相伴而生 相续而存
03.
Dining Room
GuanXiangJi SKH Design
餐厨
▼ 餐厅
落地窗重置,以无拘束形态将光引入。环窗光线汇聚,倾泻而下,通透明朗。
▼ 厨房图片
厨房扩容 中西厨功能兼备
圆形餐桌 方形岛台遥相呼应 方与圆有机结合
模拟生活动线 区域连贯共存
采光玻璃 补足楼梯间光线
功能 收纳合理 多种材质相互碰撞
04.
Bathroom
GuanXiangJi SKH Design
楼梯间
走廊半弧形拱墙,趣味层次,梦幻呼应。巧设天窗,引入光线。空隙留白,秩序下自由呼吸。空间量体,透过层迭形塑变化。任光影自如流转,赋予自上而下的灵动。
05.
Guest Room
GuanXiangJi SKH Design
次卧套房一
▼ 女儿房
▼ 卫生间
阳台纳入卧室,完善生活功能。弧形玻璃隔断向外延展,空间柔性划分。将女儿品位喜好充分体现,艺术的天分加入,不乏浪漫而精致的考究。06.Master Room GuanXiangJi SKH Design 主卧套房(2F)
私属区域合理划分。男女双衣帽间,功能化舒适感漫延。玻璃隔断,联结空间情感。流线型的立体感,在灯光的映衬下,尽显浪漫。
休闲露台是一层外扩后的惊喜。
将自然作生活的底色。
寻常午后,一杯咖啡,一盏清茶。
谧境环绕,惬意安然。
07.
Guest Room
GuanXiangJi SKH Design
次卧套房二
▼ 儿子房
▼ 卫生间
卧室合并 化零为整 套房式布局
合理规划休息与学习功能区
探索 思考 成长
创造专属于小儿子的一方天地
……
08.
Tea Room
GuanXiangJi SKH Design
品茶区(-1F)
拓展空间,品茶区依下沉庭院的通透而设。内与外、界面与景植,透窗遥望。光影绰绰,释放自然气韵。09. Video-visual Room GuanXiangJi SKH Design 多功能影音室。
▼ 吧台
消解框架 合理布局
线性灯光交叉 通透亚克力 任光线自由舞动
生活场域于己有私 于友可聚
▼ 楼梯间
对空间的把握源于对光影的留驻,对自然光线的引入。于结构间制造通透感,与空间深度对话。
10. Courtyard GuanXiangJi SKH Design 庭院
每一个人都像是一座两层楼。一楼有客厅、餐厅,二楼有卧室、书房。大多数人都在这两层楼间活动。实际上,人生还应该有一个地下室,那里是人的灵魂所在地。——村上春树
▼ 与客户合影留念
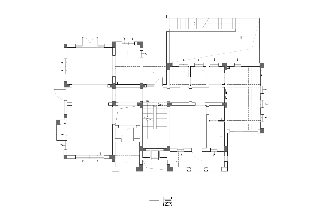
11.
Floor Plan
GuanXiangJi SKH Design
设计图
▼ 原始结构图
▼ 平面方案图
客服
消息
收藏
下载
最近

























































