查看完整案例


收藏

下载
你以为的集装箱是这样的
接下来出现的也是集装箱的话
低端的集装箱真的能够变成高端售楼办公空间吗?
那么看看创思是如何超高效、短周期内做到的。
低廉、低品质是集装箱一贯给人的印象。然而因其能快速、省钱地灵活搭建售楼中心,近年来备受地产开发商欢迎。而本次创思团队以现代、简约的手法,将低端的集装箱内部改造成精致、高品格的石家庄富力中心售楼处。
石家庄富力中心为富力集团打造的全国第45座超甲级写字楼,是石家庄市第三高建筑。地处城市轴心,总占地面积2.89万m2,为城市形象新地标。
为符合石家庄富力中心超甲级写字楼高端品牌形象,设计团队在集装箱售楼处内构筑了一个现代简约商务办公体验空间,令身处于该空间中的人们深入体验到超甲级写字楼高级办公氛围,而忘记此刻身处的是一个集装箱售楼处。
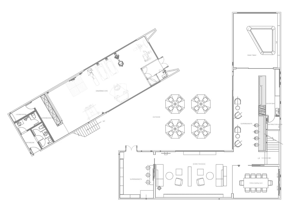
☜ 滑 动 查 看 一、二层平面图
/ Rational Space / 理 性 純 粹 的 空 間 體 驗 高 端 現 代 辦 公
不锈钢、亚克力材质表面干净、线条利落、质感冰冷。结合蓝、白两色,营造出严谨、理性有序的办公空间体验氛围。沉浸其中,不自觉地纷乱的思绪会平静,进行理性思考。
△ 原木材质家具为空间注入“温度“
运用具有干练、理性特点的蓝色作为空间主题色,搭配纯白与高级灰,加重了干净利落、高端格调的空间体验感。简练纯粹的空间,包容无边思维肆意奔放。
/ Shared Office / 模 擬 共 享 辦 公 空 間
體 驗 共 享 辦 公 生 活
共享书吧、水吧等共享办公空间为人们提供体验共享办公的机会。共享空间延续了简洁的的设计手法,让身处该空间的人们能够放松紧绷的神经,尽情地分享与交流。
/ Modern Architecture / 無 處 不 在 的 現 代 建 築 元 素
提 升 現 代 簡 約 氛 圍
设计团队对各地富力中心建筑外立面图进行创新利用,制作而成的原创挂画让超甲级写字楼品牌形象无处不在,彰显品牌实力。
△ 从该项目建筑外立面抽象出线条元素
△ 现代建筑挂画在空间营造现代氛围感
创思利用软装设计将低廉的集装箱改投换脸成高端上档次的售楼办公展示空间,为售楼接待中心设计提供新思路。
项目名称:石家庄富力中心集装箱售楼接待中心
项目面积:室内面积425㎡ ,室外面积115㎡ ,总共540㎡
委托单位:河北滨江房地产开发有限公司
项目地址:中国 . 河北省 . 石家庄市
项目设计:TCDI创思国际建筑师事务所
软装主案:丁刘慧、刘荣贞、张雯欣
软装参与:吴丹霞、林佳燕
关于TCDI创思国际建筑师事务所
TCDI创思国际建筑师事务所于1998年在澳门创立,由世界各国的资深建筑师组成。近年来,TCDI在中国內地相继成立分支机构,包括:“广州创与思”及“广东维美广州分公司”,其中广东维美具备建筑甲级资质。公司业务遍及全国各地,主要从事城市规划设计、建筑设计、室內设计、软装设计等。TCDI创思国际以“业精、心诚、优质服务”为经营理念,为客户提供个性化、一站式、高标准的产品与服务。以高标准的设计与服务建立起市场的知名度和信誉度。
客服
消息
收藏
下载
最近

































